Eladó családi ház Heréd 15 800 000 Ft

Leírás

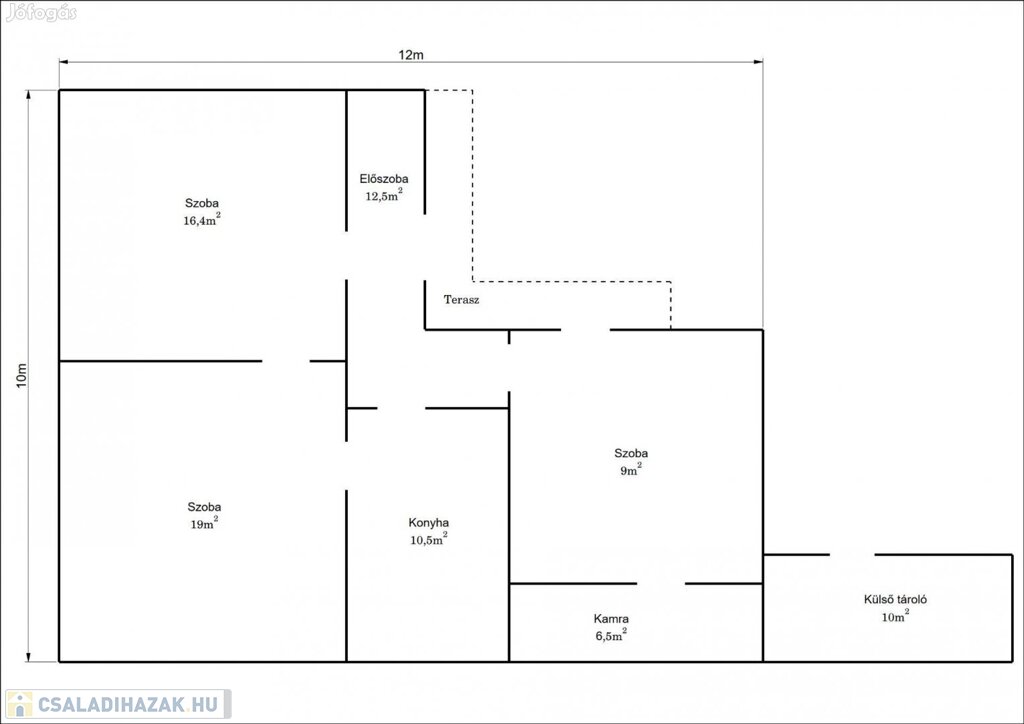
Eladó tulajdonostól Heréd egyik csendes utcájában egy 100 m2 alapterületű, vályog építésű, felújítást igénylő családi ház. Az épület egy része alatt pince, a ház mögött több melléképület található. A házhoz tartozik még egy 25 m2 alapterületű, szerelőaknával rendelkező garázs is (telek: 700m2). További részletes információkért és megtekintéssel kapcsolatosan kérem, érdeklődjön telefonon! Ingatlanosok kíméljenek! Az ár irányár.

Családi ház részletei

Ár: 15 800 000 Ft
Méret: 100 négyzetméter
Azonosító: 11152534
Cím: Köztársaság utca 18.
Telek: 680 négyzetméter
Ingatlan állapota: Felújítandó
Jelleg: családi ház
Építőanyag: Vályog
Fűtés jellege: Egyedi
Fűtés módja: Gáz
Kor: 21-50 éves
Szintek száma: Földszintes
Bútorozott: Nem bútorozott
Egész szobák: 3

Egyéb jellemzők

  • Garázs
  • Melléképület
  • Padlás
  • Pince
  • Terasz

Térkép


Így keressen családi házat négy egyszerű lépésben. Csupán 2 perc, kötelezettségek nélkül!

Szűkítse a családi házak
listáját
Válassza ki a megfelelő
családi házat
Írjon a hirdetőnek
Várjon a visszahívásra