Eladó családi ház Helvécia 63 500 000 Ft

Leírás

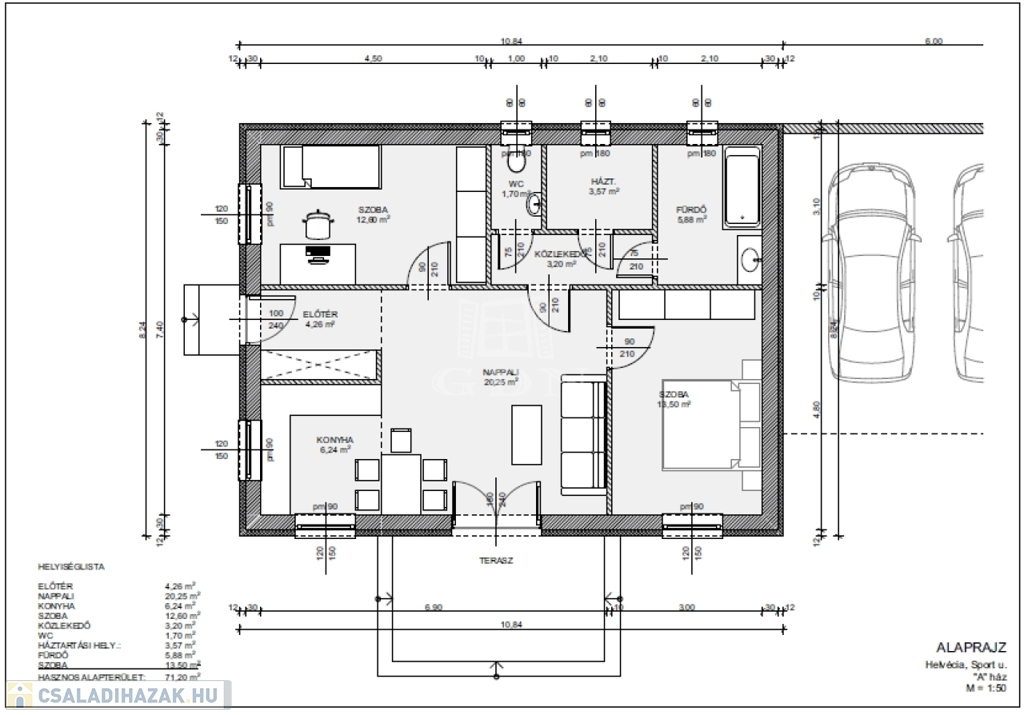
Helvécián, saját 420 nm telken 71 nm hasznos alapterületű könnyűszerkezetes ikerház, fedett gépkocsibeállóval eladó.
A praktikus elosztású, két kényelmes szoba, tágas étkező-nappali-konyha, külön WC és fürdő. Ideális választás pároknak, kis családoknak, de akár befektetésként is remek döntés. A könnyűszerkezetes technológiának köszönhetően a kivitelezés gyors, a fenntartás pedig energiatakarékos – így nemcsak időt, de hosszú távon pénzt is spórolhat.
Nem kell telket keresni, nem kell éveket várni – csak dönteni. Fotókon a kivitelező referencia munkái láthat.

Családi ház részletei

Ár: 63 500 000 Ft
Méret: 72 négyzetméter
Azonosító: 11583431
Irodai azonosító: 390316
Cím: Helvécia
Telek: 400 négyzetméter
Ingatlan állapota: Kitűnő
Jelleg: ikerház
Építőanyag: Könnyűszerkezetes
Fűtés jellege: Cirkó
Fűtés módja: Gáz
Komfort fokozat: Összkomfort
Kor: Új építésű
Szintek száma: Földszintes
Egész szobák: 3

Egyéb jellemzők

  • Csatorna
  • Garázs
  • Pince
  • Terasz

Térkép


Így keressen családi házat négy egyszerű lépésben. Csupán 2 perc, kötelezettségek nélkül!

Szűkítse a családi házak
listáját
Válassza ki a megfelelő
családi házat
Írjon a hirdetőnek
Várjon a visszahívásra