Eladó családi ház Hegykő 139 000 000 Ft

Leírás

A JÖVŐ OTTHONA, AHOL A REZSI CSAK EGY FOGALOM
OKOSOTTHON ELADÓ!
Szeretne egy olyan házat, ami Ön helyett gondolkodik, vigyáz a biztonságra és a pénztárcájára is?
Eladásra kínálunk egy minden igényt kielégítő, prémium műszaki tartalommal felszerelt új családi házat, ahol a modern technológia találkozik a kertvárosi nyugalommal. Itt nem kell a felújítással bajlódnia, minden vadonat új, mire elkészül, a belső terek burkoltak, az ajtók a helyükön – már csak a bútorait kell hoznia!
Soprontől mindössze 17 km-re Hegykőn, a Fertőpart talán legfelkapottabb településén épül ez a családi ház, melynek kulcsrakész átadása 2026 augusztus.

✨ MIÉRT EZ AZ INGATLAN A LEGJOBB VÁLASZTÁS?

1. INTELLIGENS KÉNYELEM
Felejtse el a kapcsolók keresgélését! Az okosvezérléssel a telefonjáról vagy táblagépéről irányíthatja:
- Az összes alumínium redőnyt,
- A teljes világítást,
- És a fűtési rendszert is.

2. MAXIMÁLIS ENERGIAHATÉKONYSÁG.
A rezsiszámla itt nem fog fejfájást okozni.
A ház motorja egy modern AUX hőszivattyú padlófűtéssel, a hőmérsékletet pedig 2 db AUX klíma finomhangolja.

A különlegesség: A helyiségenként kiépített hővisszanyerős SZELLŐZTETŐRENDSZER biztosítja a folyamatos friss levegőt ablaknyitás nélkül is, így a pollenek kint maradnak, a meleg pedig bent!

3. BIZTONSÁG ÉS ESZTÉTIKA
Biztonság: Az udvart kamerarendszer figyeli, a riasztórendszer pedig már elő van készítve.
Első benyomás: Az utcafronton elegáns Friedl kerítés fogadja majd, az udvar pedig minőségi térkövet és frissen füvesített kertet kap.

4. KÉNYELEM, ELRENDEZÉS
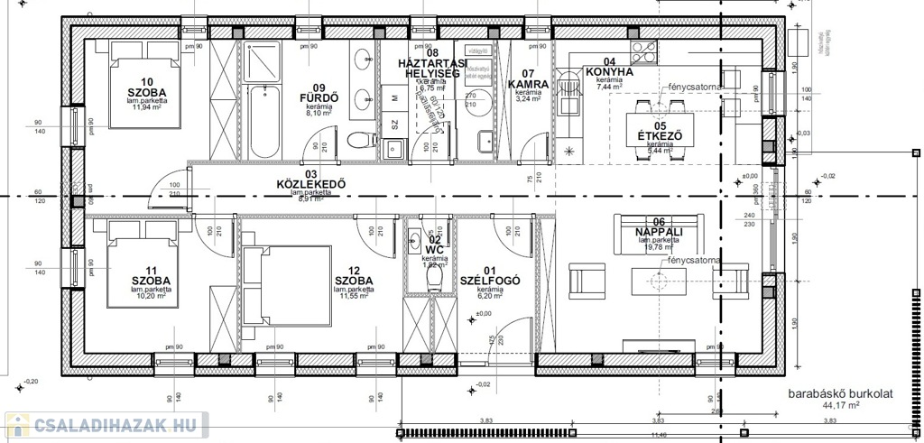
- A ház lelke a 33 nm-es konyha-nappali, ahol kényelmesen elfér az egész család.
- 3 hálószoba
- háztartási helyiség
- fürdőszoba káddal, zuhanyzóval
- 2 WC
- Nappalihoz kapcsolódó terasz

MŰSZAKI PARAMÉTEREK ÖSSZEFOGLALVA:
- 30 cm porotherm tégla + 20 cm dryvit hőszigetelés
- 3 rétegű üvegezésű műanyag ablakok + aluminium redőny
- Fűtés/Hűtés: AUX Hőszivattyú + 2 db klíma
- OkosotthonTaphome (redőny, fény, fűtés)
- Hővisszanyerős szellőztetés minden szobában

Állapot:
- Burkolt helyiségek,
- Beépített beltéri ajtók
- Kert/udvar térkövezett, füvesített,
- Friedl kerítéssel

KINEK AJÁNLJUK?
Annak a tudatos vásárlónak, aki nem akar kompromisszumot kötni a minőségben. Aki értékeli a 21. századi kényelmet, és egy olyan fenntartható otthont keres, amely hosszú távon is értékálló marad.Ne maradjon le a környék egyik legmodernebb házáról!
Keressen bizalommal a hét bármely napján, és nézzük meg együtt leendő otthonát!

Hitelre van szüksége?
Az Otthon Centrum az ország egyik legnagyobb és legmegbízhatóbb hitelközvetítőjeként, teljes körű és díjmentes hitelügyintézéssel, biztosításkötéssel áll rendelkezésére!
Kérje személyre szabott ajánlatunkat Kollégáinktól!

Családi ház részletei

Ár: 139 000 000 Ft
Méret: 102 négyzetméter
Azonosító: 11614828
Irodai azonosító: U0049652
Telek: 840 négyzetméter
Ingatlan állapota: Kitűnő
Jelleg: családi ház
Építőanyag: Tégla
Fűtés jellege: Hőszivattyú
Fűtés módja: Hőszivattyú
Komfort fokozat: Dupla komfort
Kor: Új építésű
Elhelyezkedés: Utcafronti
Szintek száma: Földszintes
Egész szobák: 4
Nappalik: 1

Egyéb jellemzők

  • Beépíthető tetőtér
  • Csatorna
  • Garázs
  • Kábel TV
  • Padlás
  • Pince
  • Terasz

Így keressen családi házat négy egyszerű lépésben. Csupán 2 perc, kötelezettségek nélkül!

Szűkítse a családi házak
listáját
Válassza ki a megfelelő
családi házat
Írjon a hirdetőnek
Várjon a visszahívásra