Eladó családi ház Hatvan 86 890 000 Ft

Leírás

Panorámás új ikerház Hatvanban, a Repce utcában – Válasszon még most, alakítsa saját ízlése szerint!

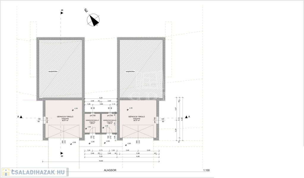
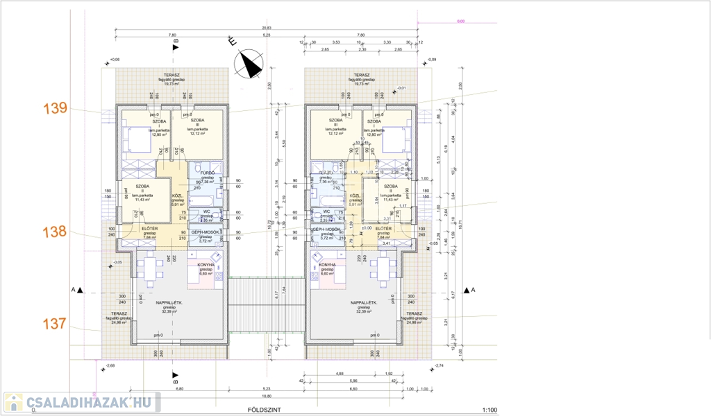
Hatvan kedvelt részén, a Repce utcában kínálunk megvételre két, újonnan épült, panorámás ikerházfelet, amelyek egy 1462 m²-es telken helyezkednek el. A bal oldali 662 m²-es, a jobb oldali pedig 800 m²-es kizárólagos használatú telekrésszel rendelkezik.

Az igényesen kivitelezett épületek nettó 113,95 m² hasznos lakóteret, továbbá 36,47 m²-es garázst és 7,68 m²-es tárolót kínálnak.

Főbb műszaki jellemzők:

Tartószerkezet: 30 cm-es Ytong falazat

Födém: garázs felett monolit vasbeton

Szigetelés: 10 cm grafitos homlokzati, 10 cm padlószigetelés, 25 cm födémszigetelés ásványgyapottal

Nyílászárók: antracit fóliás, 6 légkamrás, 3 rétegű üvegezéssel

Fűtés és HMV: energiatakarékos monoblockos hőszivattyú, padlófűtéssel

Riasztó- és kapumozgató előkészítés

Műszaki tartalom szabadon választható az alábbi keretek között:

Hidegburkolat: 6.000 Ft/m²-ig

Melegburkolat: 5.000 Ft/m²-ig

Csaptelepek: 15.000 Ft/db

Kád vagy zuhany: 50.000 Ft

Beltéri ajtók: 50.000 Ft/db

WC Geberit falsík mögötti rendszer + csésze: 50.000 Ft/db

Mosdó: 40.000 Ft/db

Természetesen magasabb árkategóriájú anyagok is választhatók a különbözet megtérítésével.

Extra szolgáltatásaink:

✅ INGYENES hitelügyintézés, CSOK Plusz tanácsadás
✅ BANKFÜGGETLEN hitelcentrum – az összes bank ajánlatát versenyeztetjük Önért
✅ Egyedi, bankfiókban nem elérhető kedvezmények
✅ Teljes körű ügyintézés idő- és költséghatékonysággal

Kérésre részletes tervdokumentációt és műszaki leírást is szívesen küldünk.

Ha a hirdetés felkeltette érdeklődését, hívjon bizalommal!
Ne maradjon le a lehetőségről, még most beleszólhat a végleges kialakításba!

Családi ház részletei

Ár: 86 890 000 Ft
Méret: 150 négyzetméter
Azonosító: 11544271
Irodai azonosító: 383888
Cím: Repce utca
Telek: 800 négyzetméter
Ingatlan állapota: Kitűnő
Jelleg: ikerház
Építőanyag: Kérdezzen rá a hirdetőtől »
Fűtés jellege: Geotermikus
Fűtés módja: Hőszivattyú
Komfort fokozat: Összkomfort
Kor: Új építésű
Szintek száma: 1 szint
Egész szobák: 4

Egyéb jellemzők

  • Csatorna
  • Garázs
  • Pince
  • Terasz

Térkép


Így keressen családi házat négy egyszerű lépésben. Csupán 2 perc, kötelezettségek nélkül!

Szűkítse a családi házak
listáját
Válassza ki a megfelelő
családi házat
Írjon a hirdetőnek
Várjon a visszahívásra