Eladó családi ház Hárskút 99 000 000 Ft

Leírás

Képzeld el, hogy egy olyan helyen ébredsz minden reggel, ahol a friss levegő és a madárcsicsergés természetes része az életednek!

Hárskút egyik legújabb utcájának utolsó, szomszédoktól védett családi házában minden adott, hogy kiteljesedhess: panorámás kilátás, zavartalan, zöldövezeti környezet, közel 1,500m²-es telek, ahol gyerekek, kedvencek vagy barátok is szabadon élvezhetik a teret.

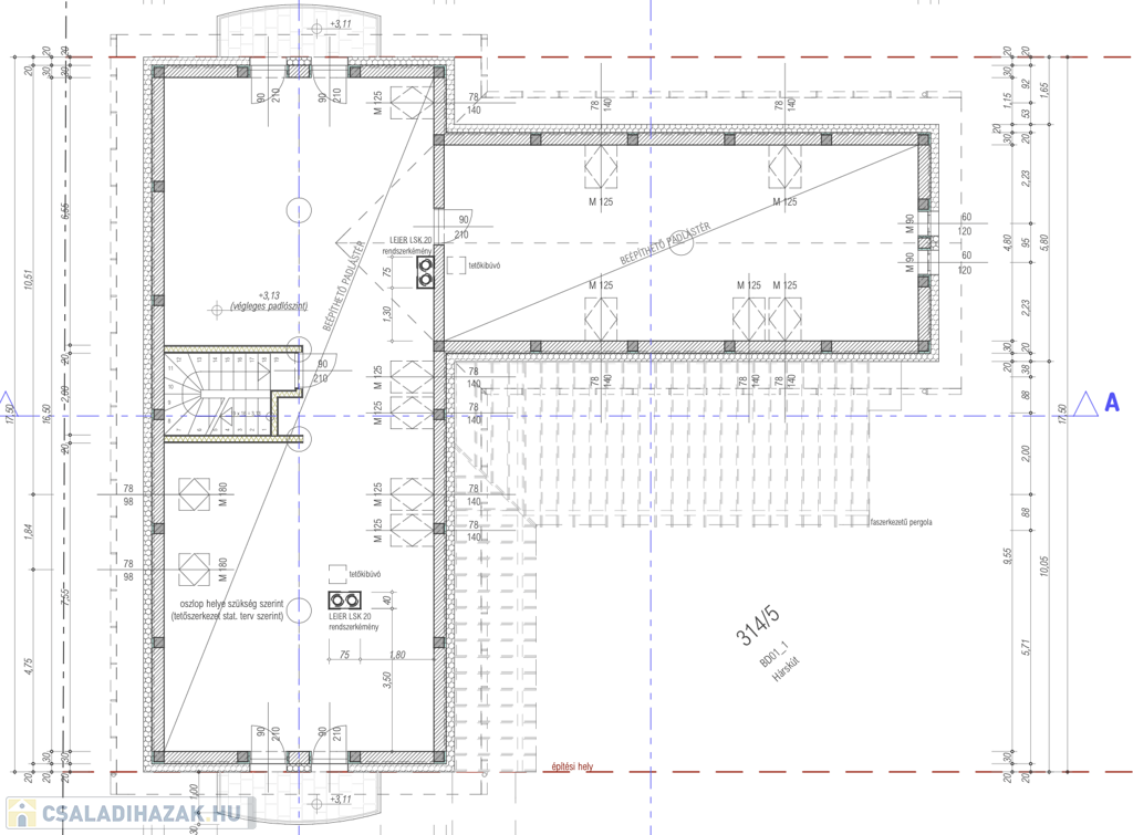
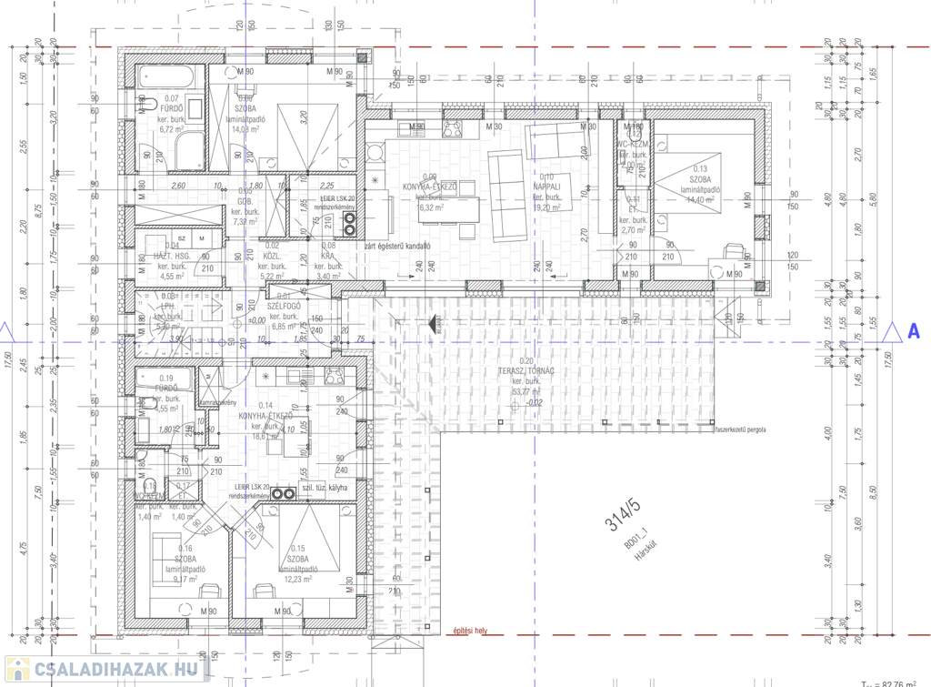
A ház 260m²-en, két szinten biztosítja a rugalmasságot – az alsó szint már kialakítás alatt van, a felső pedig teljesen a Te elképzeléseidhez igazítható. A 65%-os készültség lehetőséget ad, hogy saját álmaid otthonát valósítsd meg minőségi alapanyagokból, melyek jelentős része már a rendelkezésedre áll.

A tágas, 56m²-es terasz tökéletes lesz baráti összejövetelekhez vagy csak a természet csendes élvezetéhez.

Hárskút egy kedves, csendes település, ahol minden lassabb, nyugodtabb; közel találod a túraútvonalakat, Zircet vagy Veszprémet is.
Akár nagycsaládos otthonra, akár különleges befektetésre—például szálláshelyre—vágysz, ez a ház egy valódi, inspiráló kezdet lehet.
Itt nem csak házat kapsz, hanem szabadságot, hogy egy teljesen új életet teremts magadnak – a lehetőségek csak rád várnak!

Hívj, és beszéljünk a részletekről: +36 20 428 5095

Dream-Ing. Álomból Otthont!

Családi ház részletei

Ár: 99 000 000 Ft
Méret: 260 négyzetméter
Azonosító: 11554109
Irodai azonosító: 339400
Cím: Veszprémi
Telek: 1440 négyzetméter
Ingatlan állapota: Kitűnő
Jelleg: családi ház
Építőanyag: Tégla
Fűtés jellege: Cirkó
Fűtés módja: Gáz
Komfort fokozat: Összkomfort
Kor: Új építésű
Egész szobák: 6

Egyéb jellemzők

  • Terasz

Így keressen családi házat négy egyszerű lépésben. Csupán 2 perc, kötelezettségek nélkül!

Szűkítse a családi házak
listáját
Válassza ki a megfelelő
családi házat
Írjon a hirdetőnek
Várjon a visszahívásra