Eladó családi ház Hárskút 95 000 000 Ft

Leírás

Modern elegancia a Bakony szívében – új építésű családi ház Hárskúton!

A természet ölelésében, Veszprémtől mindössze 13 kilométerre, a Bakony egyik legszebb részén, Hárskúton kínáljuk megvételre ezt az új építésű, 105 m²-es családi házat.
Az ingatlan egy csendes, zöldövezeti, folyamatosan fejlődő, új építésű lakókörnyezetben található, ahol a friss levegő, a nyugalom és a modern életforma tökéletes összhangban van egymással.

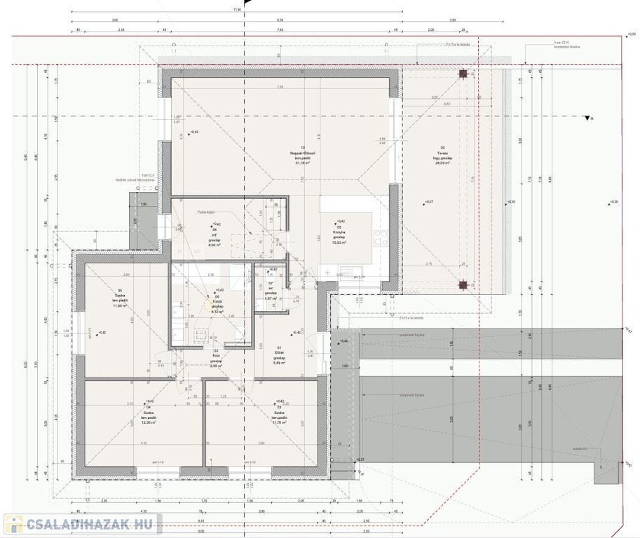
Az otthon középpontja a lenyűgöző, 40 m²-es amerikai konyhás nappali, amely a tágas térélményt és a természetes fény áradását ötvözi, tökéletes színtere lehet családi együttléteknek és baráti vacsoráknak.
Három hálószoba biztosít kényelmet és privát szférát, míg a fürdőszoba, a külön vendég-WC, az előtér és a közlekedő a praktikusságot szolgálják.

A nappaliból egy 28 m²-es teraszra léphetünk ki, ahonnan élvezhető a bakonyi dombvidék friss, nyugodt hangulata. Az autóbeálló szintén a mindennapi kényelem kiegészítője.

Az épület emelt szerkezetkész állapotban vásárolható meg, így lehetőséget biztosít arra, hogy a belső terek kialakítása a leendő tulajdonos ízlését tükrözze.

A kivitelezés során kiemelt figyelmet kapott az energiahatékonyság és a hosszú távú értékállóság:
*fő falai Porotherm 30 N+F neo, a válaszfalak 10N+F téglafalak
*kiváló hőszigetelés (12 cm XPS a lábazaton, 15 cm a homlokzaton, 30 cm a födémen) *valamint 3 rétegű, hőszigetelt műanyag nyílászárók gondoskodnak a kellemes belső hőmérsékletről télen-nyáron

Ez az ingatlan ideális választás mindazok számára, akik szeretnének elvonulni a város zajától, mégis elérhető távolságra maradnának a városi infrastruktúrától.

Ajánljuk természetkedvelő családoknak, fiatal pároknak, illetve mindazoknak, akik egy modern, időtálló otthont keresnek a Bakony ölelésében — akár állandó lakhatásra, akár hétvégi visszavonulásként.
A környéket változatos túraútvonalak, természetközeli kikapcsolódási lehetőségek veszik körül. A Balaton mindössze 15 perc autóval, míg Budapest egy óra alatt kényelmesen elérhető.

Irányár: 95 millió Ft
Hívjon, győződjön meg erről személyesen is!
+36 30 140 3328
Dream-Ing
Álomból Otthont!

Családi ház részletei

Ár: 95 000 000 Ft
Méret: 105 négyzetméter
Azonosító: 11537517
Irodai azonosító: 335805
Telek: 500 négyzetméter
Ingatlan állapota: Kitűnő
Jelleg: családi ház
Építőanyag: Tégla
Fűtés jellege: Egyéb
Komfort fokozat: Összkomfort
Kor: Új építésű
Egész szobák: 2
Fél szobák: 2

Egyéb jellemzők

  • Terasz

Így keressen családi házat négy egyszerű lépésben. Csupán 2 perc, kötelezettségek nélkül!

Szűkítse a családi házak
listáját
Válassza ki a megfelelő
családi házat
Írjon a hirdetőnek
Várjon a visszahívásra