Eladó családi ház Hajdúszoboszló 97 990 000 Ft

Leírás


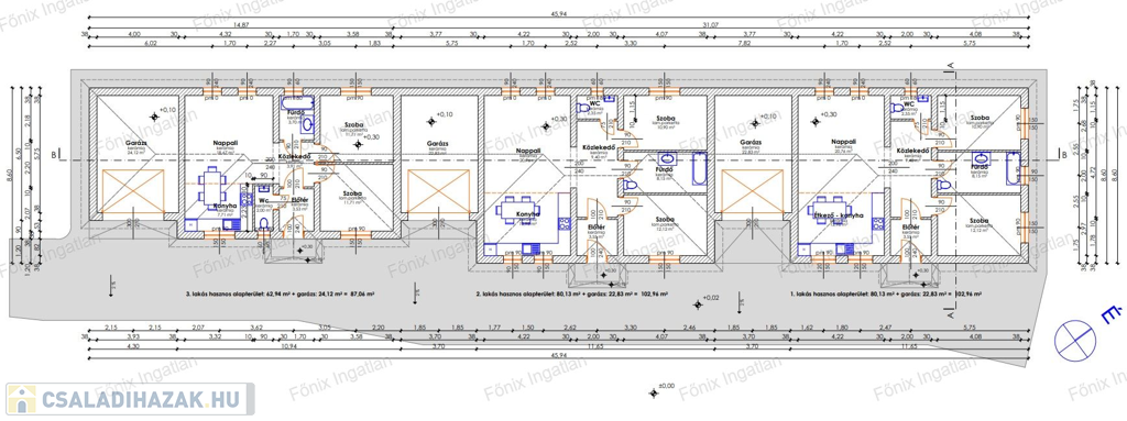
Eladó egy lakóingatlan egy új építésű sorházban Hajdúszoboszló központjában, csendes utcában.

87,06 m² hasznos alapterület, ebből 62,94 m² lakótér – nappali amerikai konyhával, 2 hálószoba, 2 WC/fürdő, garázs és nagy méretű saját kert.

 

- Ideális családoknak – játszótér, pihenőkert, grillező kialakítható!

- Ytong tégla, hővisszaverős nyílászárók

- Hőszivattyú, padlófűtés, klíma

- Családbarát kialakítás, tágas terek

- Csendes környék, mégis központi elhelyezkedés

- Prémium kivitelezés és rugalmas fizetés

 

Költözzön álmai otthonába kompromisszumok nélkül!

 

Keressen bizalommal!

Családi ház részletei

Ár: 97 990 000 Ft
Méret: 87 négyzetméter
Azonosító: 11540675
Irodai azonosító: 705100287
Telek: 240 négyzetméter
Ingatlan állapota: Kitűnő
Jelleg: sorház
Építőanyag: Kérdezzen rá a hirdetőtől »
Komfort fokozat: Összkomfort
Kor: Új építésű
Egész szobák: 3

Így keressen családi házat négy egyszerű lépésben. Csupán 2 perc, kötelezettségek nélkül!

Szűkítse a családi házak
listáját
Válassza ki a megfelelő
családi házat
Írjon a hirdetőnek
Várjon a visszahívásra