Eladó családi ház Hajdúszoboszló 99 900 000 Ft

Leírás

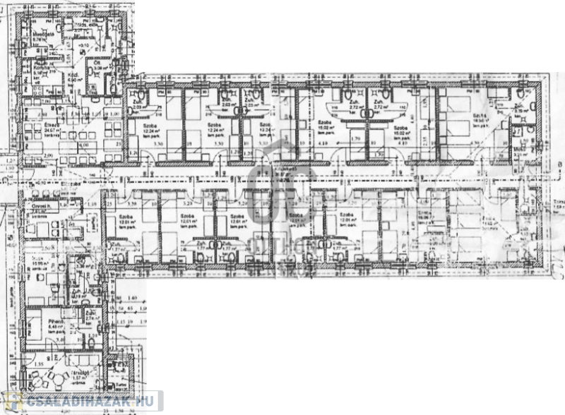
Épülő lakóparkban eredetileg idősek otthonának tervezett 420 nm-es most épülő ingatlan 1400 nm-es telken eladó.
Az épület kiválóan hasznosítható panziónak, apartman háznak, de akár 6 - 8 lakásos társaházzá is alakítható.

jelenlegi állapot:
- 13 apartman, (szoba + fürdőszoba)
- kiszolgáló helyiségek, konyha, étkező, társalkodó, stb, mely még bármi más funkcióra is átalakítható
- villamos hálózat kiépítve
- víz és fűtés csövek részben kiépítve
- belső vakolt falak
- kűlső műanyag nyílászárók, fa beltéri ajtók
- külső szigetelés 80%-ban befejezve
- lindab lemeztető
- összes közmű bekötve

Az épület mostani formájában még sokcélú hasznosítási tevékenységgel fejezhető be, elhelyezkedése miatt rendkívűl jó befektetési lehetőség,

Családi ház részletei

Ár: 99 900 000 Ft
Méret: 420 négyzetméter
Azonosító: 11131838
Telek: 1420 négyzetméter
Ingatlan állapota: Kitűnő
Jelleg: családi ház
Építőanyag: Kérdezzen rá a hirdetőtől »
Fűtés jellege: Cirkó
Egész szobák: 13

Egyéb jellemzők

  • Csatorna
  • Garázs
  • Kábel TV
  • Melléképület
  • Parketta
  • Pince
  • Terasz

Így keressen családi házat négy egyszerű lépésben. Csupán 2 perc, kötelezettségek nélkül!

Szűkítse a családi házak
listáját
Válassza ki a megfelelő
családi házat
Írjon a hirdetőnek
Várjon a visszahívásra