Eladó családi ház Hajdúsámson 71 900 000 Ft

Leírás

FIGYELEM! ÚJ ÉPÍTÉSŰ, DÉLI FEKVÉSŰ IKERHÁZ ELADÓ – GARÁZZSAL, SAJÁT TELEKKEL, KIEMELKEDŐ ÁRON!

Debrecen vonzáskörzetében, Hajdúsámson - Sámsonkert fejlődő részén, 108 m²-es, egyszintes ikerház, 457 m² saját telekrésszel eladó. Az ikerház déli fekvésű, így a lakótér egész nap világos és kellemesen benapozott. A két lakás közül már csak a jobb oldali lakás érhető el!
Kulcsrakész, modern otthon garázzsal, 59 millió Ft. – a négyzetméterár mindössze 546.000 Ft,
A 24 méteres utcafronttal rendelkező telekrész külön is kiemelkedő értékű, mindössze 12,9 millió Ft.
A vételár 71.9 millió Ft ( ház+telek)

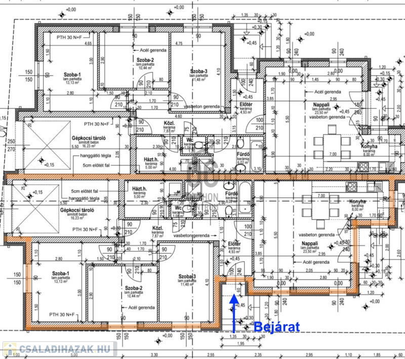
Helyiségek
-Előszoba
-3 külön nyíló szoba
-Tágas, 38 m²-es nappali – étkező – konyha egy légtérben
-Fürdőszoba sarokkáddal, zuhannyal és WC-vel
-Külön WC
-Háztartási helyiség / mosókonyha
-Nappaliból nyíló terasz
-Garázs

Műszaki tartalom
-Porotherm 30 NF tégla falazat
-15 cm külső hőszigetelés
-30 cm födémszigetelés
-12 cm aljzatszigetelés
-5 légkamrás, 3 rétegű műanyag nyílászárók
-Hőszivattyús fűtési rendszer padlófűtéssel

Az ár tartalmazza a hátsó és oldalsó kerítést, valamint 1 db klímaberendezést.

Átadás
Az ingatlan kulcsrakész állapotban, legkésőbb 2026.12.30-ig elkészül.
Debrecenben egy 70 m²-es panel lakás ára gyakran eléri ezt az összeget – garázs és saját telek nélkül.

Finanszírozás
Az ingatlanra banki hitel és CSOK is igényelhető.
Ne maradjon le róla – már csak az egyik ikerház elérhető!

További információért, alaprajzokért vagy megtekintésért hívjon bizalommal!

Családi ház részletei

Ár: 71 900 000 Ft
Méret: 108 négyzetméter
Azonosító: 11613630
Telek: 457 négyzetméter
Ingatlan állapota: Kitűnő
Jelleg: ikerház
Építőanyag: Kérdezzen rá a hirdetőtől »
Egész szobák: 4

Egyéb jellemzők

  • Csatorna
  • Garázs
  • Kábel TV
  • Melléképület
  • Parketta
  • Pince
  • Terasz

Így keressen családi házat négy egyszerű lépésben. Csupán 2 perc, kötelezettségek nélkül!

Szűkítse a családi házak
listáját
Válassza ki a megfelelő
családi házat
Írjon a hirdetőnek
Várjon a visszahívásra