Eladó családi ház Hajdúsámson 63 900 000 Ft

Leírás

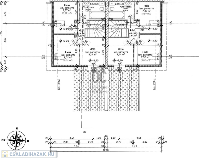
Most egy igazán különleges lehetőséget kínálunk számodra Sámsonkert városrészben. Ez az új építésű ház nem csupán egy ingatlan, hanem egy életstílus, amely tökéletesen illeszkedik a modern fiatalok igényeihez. Az ingatlan alapterülete 85 négyzetméter, amelyben négy tágas szoba és két fürdőszoba található. A terasz mérete 13,52 négyzetméter, ahol a reggeli kávédat vagy a barátaiddal eltöltött estéidet élvezheted a friss levegőn. A megújuló hőszivattyús fűtési rendszernek köszönhetően nemcsak gazdaságos, hanem környezetbarát megoldást is kínál. A klímaberendezés pedig biztosítja, hogy a nyári hónapokban is kellemes hőmérsékletet varázsolhass otthonodba. Az ingatlan környezete csendes és biztonságos, ideális helyszín a nyugodt hétköznapokhoz és a baráti összejövetelekhez. A tömegközlekedés is jól kiépített, buszmegálló 5 perc sétára található Debrecen a 4405-ös járattal érhető el!

A lakás jellemzői:
- fémszerekezet teherhordó falakkal és hanggátló elválasztó téglafalakkal épült
- nettó lakótér 76 m2, mely magában foglal 4 lakószobát, 2 fürdőszobát és nappalit külön
- a lakásokhoz osztatlan közös megosztással került kialakításra a saját telekrész, ezen ingatlanhoz okirat szerint 317 m2 csatlakozik
- a lakások külön mérő órákkal felszereltek (Villany óra, külön hőszivattyú, fúrt kút külön szivattyúval, lakásonként 10m3-es zárt szennyvíz tározó és klíma berendezés 3,5 kW kapacitással)
- a lakásokban mindenütt padlófűtés van kiépítve
- nyílászárók 3 rétegű üvegezéssel ellátott műanyag ablakok, a tetőtérben fa nyílászárók
- padlástérben 30 cm szigetlés, a homloztaon 15 cm hőszegetelés készült.
- átadás: 2026 március
- alapterület 76 m2 + 3.45 m2 kazánház+ 13,52 m2-es terasz

Az ingatlan babaváróval és CSOK+-al vásárolható!
Az Otthon Start hitel feltételeinek a városrész nem felel meg.

AKCIÓ: december 15-ig megkötött adásvételi szerződésnél érvényes!


Ha szeretnél többet megtudni erről a kivételes ingatlanról, vagy kérdéseid lennének a vásárlással kapcsolatban, bátran keresd fel a hirdetésünket! Bizalommal állunk rendelkezésedre, hogy segítsünk megtalálni álmaid otthonát vagy befektetési lehetőségedet. Ne hagyd ki ezt a páratlan ajánlatot, hiszen ez a lehetőség gyorsan el fog tűnni a piacon!

Családi ház részletei

Ár: 63 900 000 Ft
Méret: 76 négyzetméter
Azonosító: 11575351
Telek: 317 négyzetméter
Ingatlan állapota: Kitűnő
Jelleg: ikerház
Építőanyag: Kérdezzen rá a hirdetőtől »
Egész szobák: 4

Egyéb jellemzők

  • Garázs
  • Kábel TV
  • Melléképület
  • Parketta
  • Pince
  • Terasz

Így keressen családi házat négy egyszerű lépésben. Csupán 2 perc, kötelezettségek nélkül!

Szűkítse a családi házak
listáját
Válassza ki a megfelelő
családi házat
Írjon a hirdetőnek
Várjon a visszahívásra