Eladó családi ház Hajdúsámson 59 900 000 Ft

Leírás

Sámsonkertben építés alatt – új, tágas 4 szobás ház várja Önt!
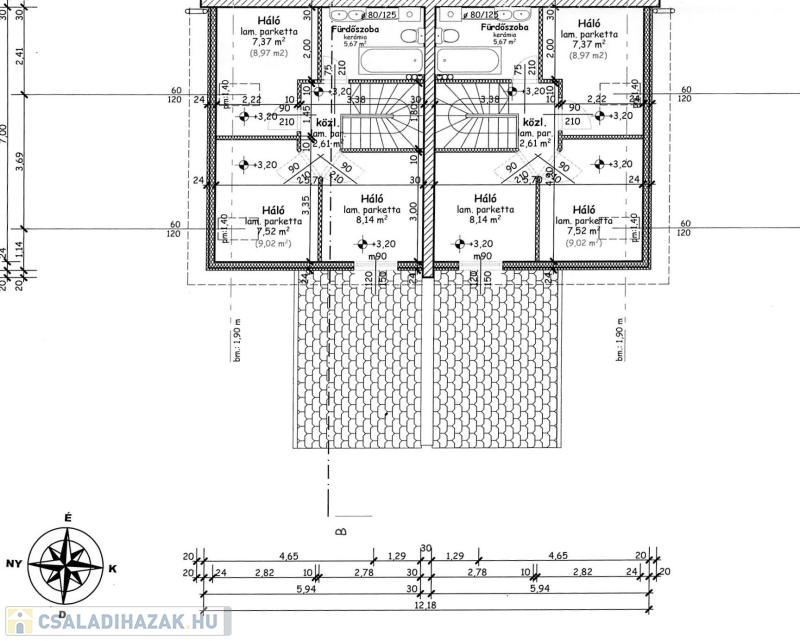
Most egy igazán különleges lehetőséget kínálunk számodra Sámsonkert városrészben. Ez az új építésű ház nem csupán egy ingatlan, hanem egy életstílus, amely tökéletesen illeszkedik a modern fiatalok igényeihez. Az ingatlan alapterülete 80 négyzetméter, amelyben négy tágas szoba és két fürdőszoba található. A terasz mérete 13,52 négyzetméter, ahol a reggeli kávédat vagy a barátaiddal eltöltött estéidet élvezheted a friss levegőn. A ház új építésű, és a megújuló hőszivattyús fűtési rendszernek köszönhetően nemcsak gazdaságos, hanem környezetbarát megoldást is kínál. A klímaberendezés pedig biztosítja, hogy a nyári hónapokban is kellemes hőmérsékletet varázsolhass otthonodba. Az ingatlan környezete csendes és biztonságos, ideális helyszín a nyugodt hétköznapokhoz és a baráti összejövetelekhez. A közlekedési lehetőségek kiválóak, hiszen autóval könnyen megközelíthető a településen található orvosi rendelő, védőnői szolgálta, számos kisbolt a közelben és kb. 2 km-re az újonnan nyílt S-Box bevásárló központ. A tömegközlekedés is jól kiépített, buszmegálló 5 perc sétára található a 4405-ös busz gyakran jár Debrecenbe.

A lakás jellemzői:
- fémszerkezet teherhordó falakkal, és hanggátló elválasztó téglafalakkal épült
- nettó lakótér 76 m2, mely magában foglal 4 lakószobát, 2 fürdőszobát és nappalit külön
- a lakásokhoz osztatlan közös megosztással került kialakításra a saját telekrész ezen ingatlanhoz okirat szerint 190 m2 csatlakozik
- a lakások külön mérő órákkal felszereltek (Villany óra, külön hőszivattyú, fúrt kút külön szivattyúval, lakásonként 10m3-es zárt szennyvíz tározó és klíma berendezés 3,5 kW kapacitással)
- a lakásokban mindenütt padlófűtés van kiépítve
- nyílászárók 3 rétegű üvegezéssel ellátott műanyag ablakok, a tetőtérben fa nyílászárók
- padlástérben 30 cm szigetlés, a homloztaon 15 cm hőszegetelés készült.
- átadás: 2026 március

Az ingatlan babaváróval és CSOK+-al vásárolható!
Az otthon start hitel feltételeinek a városrész nem felel meg.

AKCIÓ: az árat december 15-ig tett megírt szerződésnél, tudjuk tartani!


Ha szeretnél többet megtudni erről a kivételes ingatlanról, vagy kérdéseid lennének a vásárlással kapcsolatban, bátran keresd fel a hirdetésünket! Bizalommal állunk rendelkezésedre, hogy segítsünk megtalálni álmaid otthonát vagy befektetési lehetőségedet. Ne hagyd ki ezt a páratlan ajánlatot, hiszen ez a lehetőség gyorsan el fog tűnni a piacon!

Családi ház részletei

Ár: 59 900 000 Ft
Méret: 76 négyzetméter
Azonosító: 11575349
Telek: 190 négyzetméter
Ingatlan állapota: Kitűnő
Jelleg: ikerház
Építőanyag: Kérdezzen rá a hirdetőtől »
Egész szobák: 4

Egyéb jellemzők

  • Garázs
  • Kábel TV
  • Melléképület
  • Parketta
  • Pince
  • Terasz

Így keressen családi házat négy egyszerű lépésben. Csupán 2 perc, kötelezettségek nélkül!

Szűkítse a családi házak
listáját
Válassza ki a megfelelő
családi házat
Írjon a hirdetőnek
Várjon a visszahívásra