Eladó családi ház Hajdúsámson 55 000 000 Ft

Leírás

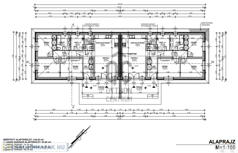
A Szűcs utca közelében új építésű ikerház eladó
Új építésű ikerházak Sámsonkertben, kedvező áron eladók!
Debrecen vonzáskörzetében, Debrecenből 4 sávos úton megközelíthető Sámsonkertben
12 db ikerház épül.
Az ingatlanokhoz 300-400 nm-es önálló telekrész tartozik, az ikerházak nettó alapterülete
83 nm, mindegyikhez 18 nm terasz tartozik.
Főbb jellemzők:
- POROTHERM 30-as tégla falazat
- 15 cm homlokzati hőszigetelés
- cserép tetőhéjazat
- 3 rétegű üvegezésű műanyag ablakok
- hőszivattyús fűtés, padlófűtésen keresztül
- nappali-amerikai konyha-étkező + 3 hálószoba
- minden lakóegység önálló házi vízművel rendelkezik

Várható átadás 2026. 12. 31.
CSOK+, 3 %-os hitel igénybe vehető!

Családi ház részletei

Ár: 55 000 000 Ft
Méret: 84 négyzetméter
Azonosító: 11582219
Telek: 300 négyzetméter
Ingatlan állapota: Kitűnő
Jelleg: ikerház
Építőanyag: Kérdezzen rá a hirdetőtől »
Egész szobák: 4

Egyéb jellemzők

  • Garázs
  • Kábel TV
  • Melléképület
  • Parketta
  • Pince
  • Terasz

Így keressen családi házat négy egyszerű lépésben. Csupán 2 perc, kötelezettségek nélkül!

Szűkítse a családi házak
listáját
Válassza ki a megfelelő
családi házat
Írjon a hirdetőnek
Várjon a visszahívásra