Eladó családi ház Hajdúsámson 39 900 000 Ft

Leírás

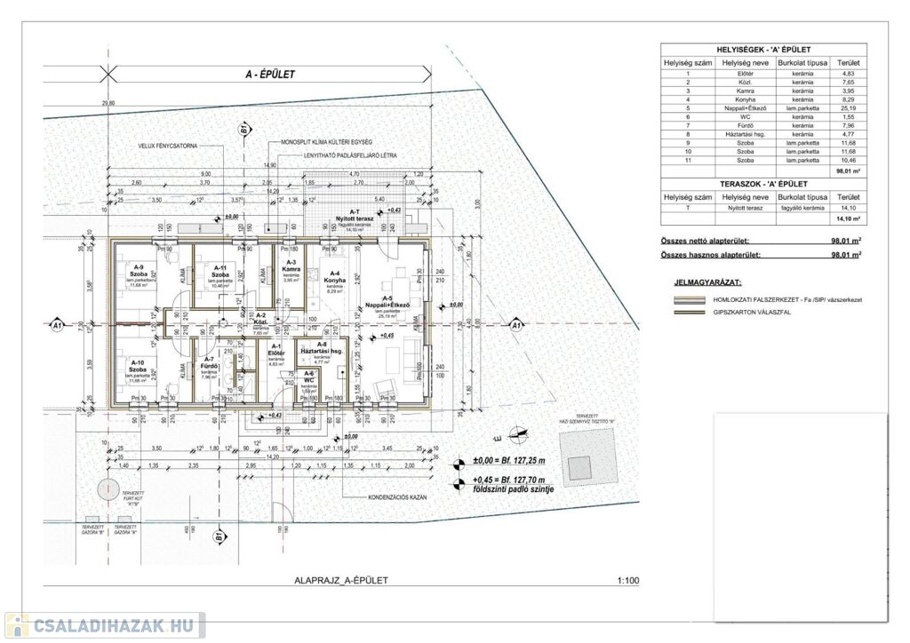
Eladó Szerkezetkész ikerház Debrecen mellett Martinka csendes, zöldövezeti részén!

Ha egy nyugodt, mégis könnyen megközelíthető otthont keres, ne keressen tovább! Ez a most épülő, szerkezetkész állapotban lévő 98 m²-es ikerház ideális választás lehet Ön és családja számára. A ház egy 400 m²-es telken helyezkedik el, ami tökéletes a pihenésre vágyóknak.

Az ingatlan három szobával, egy tágas nappalival, külön fürdőszobával és mellékhelyiséggel rendelkezik, ami kényelmes életvitelt biztosít minden lakó számára. A tervek szerint padlófűtés és a klíma szolgáltatja majd az otthon melegét és hűvösét.

Az otthon redőnyözött ablakokkal és szúnyoghálókkal lesz felszerelve, így biztos lehet benne, hogy otthonában mindig a megfelelő környezet fogadja. A tágas terasz ideális helyszín a reggeli kávé vagy esti pihenés számára. Az udvaron gépjárműbeálló lehetőséget is kialakításra kerül, így parkolási gondjai sem lesznek.


Ne hagyja ki ezt a ritka lehetőséget! Hívjon még ma, és tekintse meg személyesen ezt a remek adottságokkal rendelkező otthont Martinkán.

További információkért és megtekintésért keressen bizalommal!
TRIPSÓ TIBOR
+36 30 942 5373
Prémium ingatlanértékesítő
Városi Ingatlaniroda
Debrecen
(További képekért és információkért kérem hívjon!)

Családi ház részletei

Ár: 39 900 000 Ft
Méret: 98 négyzetméter
Azonosító: 11571712
Irodai azonosító: 453662
Telek: 400 négyzetméter
Ingatlan állapota: Szerkezetkész
Jelleg: ikerház
Építőanyag: Könnyűszerkezetes
Fűtés jellege: Egyéb
Egész szobák: 4
Nappalik: 1

Egyéb jellemzők

  • Beépíthető tetőtér
  • Csatorna
  • Garázs
  • Melléképület
  • Pince
  • Terasz

Így keressen családi házat négy egyszerű lépésben. Csupán 2 perc, kötelezettségek nélkül!

Szűkítse a családi házak
listáját
Válassza ki a megfelelő
családi házat
Írjon a hirdetőnek
Várjon a visszahívásra