Eladó családi ház Hajdúsámson 119 900 000 Ft

Leírás

Ha eleged van a tucat házakból és valami megnyerőt és egyedit szeretnél...

Figyelmedbe ajánlom ezt a minden igényt kielégítő önálló családi házat, Martinka csendes, forgalom mentes utcájában amely mind megjelenésében, mind a helyiségek méretét tekintve is kitűnik a piac kínálatából.

Általános jellemzők:
- 800 nm-es önálló telek
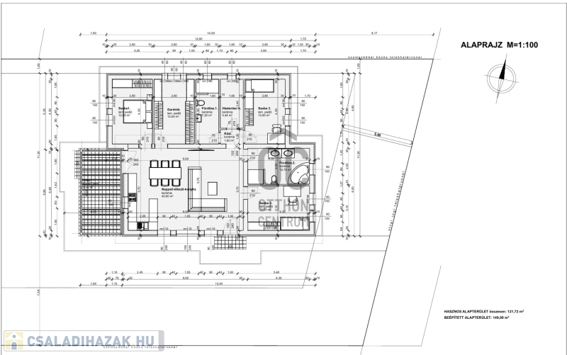
- 122 nm hasznos alapterület + 20 nm-es terasz
- 45,6 nm-es közösségi tér
- 3 db 12 nm-t meghaladó méretű szoba
- 2 fürdőszoba (1 kád, 2 zuhanyzó, 2 wc)
- háztartási helyiség
- hatalmas gardrób (akár +1 szoba)

Műszaki jellemzők röviden:
- Ytong falazat EPS homlokzati szigeteléssel
- a födémen 30 cm fújt cellulóz szigetelés (cc. 50 cm gyapottal ér fel)
- padlófűtés hőszivattyúval minden helyiségben
- betoncserép fedéssel
- még választható burkolatok, beltéri ajtók, szaniterek, stb.
- gondos tervezés, gyakorlatilag nincs benne haszontalan terület (mindössze 1,6 nm közlekedő)

Ha...
...valami egyedit szeretnél amiből nincs másik, ahol nem egy kaptafára épülnek sorra a házak...
...fontos, hogy a rezsi jelentéktelen...
...kell a hatalmas élettér, de a privát szféra se egy "lyuk" legyen...
...nem szeretnél zajban, szmogban élni, de fontos, hogy könnyen elérhető legyen Debrecen belvárosa...
...akkor ez az ingatlan neked lett tervezve.

Kérdéseiddel keress bizalommal a hét bármelyik napján.

Családi ház részletei

Ár: 119 900 000 Ft
Méret: 122 négyzetméter
Azonosító: 11602056
Telek: 800 négyzetméter
Ingatlan állapota: Kitűnő
Jelleg: családi ház
Építőanyag: Kérdezzen rá a hirdetőtől »
Egész szobák: 5

Egyéb jellemzők

  • Garázs
  • Kábel TV
  • Melléképület
  • Parketta
  • Pince
  • Terasz

Így keressen családi házat négy egyszerű lépésben. Csupán 2 perc, kötelezettségek nélkül!

Szűkítse a családi házak
listáját
Válassza ki a megfelelő
családi házat
Írjon a hirdetőnek
Várjon a visszahívásra