Eladó családi ház Hajdúsámson 99 900 000 Ft

Leírás

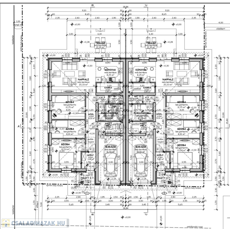
Sámsonkert-i, 120 nm-es, 3 szoba+nappalis ,összközműves ikerház eladó!

Ingatlan műszaki jellemzői:

- Debrecentől 6 km-re Sámsonkert-i projekt
- nappali (20,5 nm) plusz 3 szoba
- víz, gáz, villany és csatorna bekötve
- fűtése: gázkazán, padlófűtéssel minden helyiségben
- 5 légkamrás műanyag nyílászárók
- elektromos redőny előkészítéssel
- klíma
- homlokzati szigetelés 15cm, födém cellulóz 20cm és aljzat 12cm
- külön fürdőszoba és wc
- elkülönített háztartási helyiség
- terasz 21,35 nm
- telek 479 nm
- garázs, elektromos garázskapuval (16,5 nm)
- garázsbejáró és járda térkövezve
- teljes műszaki leírás előzetesen megtekinthető!
- burkolat választási lehetőség (6000 Ft/nm)

A projekt tervezésekor nagy hangsúlyt fektettek az ENERGIATAKARÉKOSSÁGRA.

Illetékmentesség CSOK+ os ügyfeleknek!

Rugalmas kifizetés lehetséges!

Megbízható vállalkozó, ÁRGARANCIÁVAL!

Várható átadás: 2026 június

Irodánk az ügyintézés bármely szakaszában teljeskörű segítséget biztosít, legyen az vétel vagy eladás, kiváló ügyvédi háttérrel, díjtalan és bankfüggetlen hitelszakértő segítségével.
További kérdéssel, megtekintéssel kapcsolatban várom hívását a hét minden napján!

Családi ház részletei

Ár: 99 900 000 Ft
Méret: 120 négyzetméter
Azonosító: 11600517
Telek: 479 négyzetméter
Ingatlan állapota: Kitűnő
Jelleg: ikerház
Építőanyag: Kérdezzen rá a hirdetőtől »
Fűtés jellege: Cirkó
Egész szobák: 4

Egyéb jellemzők

  • Csatorna
  • Garázs
  • Kábel TV
  • Melléképület
  • Parketta
  • Pince
  • Terasz

Így keressen családi házat négy egyszerű lépésben. Csupán 2 perc, kötelezettségek nélkül!

Szűkítse a családi házak
listáját
Válassza ki a megfelelő
családi házat
Írjon a hirdetőnek
Várjon a visszahívásra