Eladó családi ház Gyúró 149 800 000 Ft

Leírás

--- CSODÁK, EMBERI LÉPTÉKBEN ---
Ez a ház nem akar többnek látszani, mint ami. Egyszerűen, jól van kitalálva.

Közel a fővároshoz, mégis egy olyan világban, ahol az idő lassabban telik.Az ősfás, gondosan kialakított kert nem díszlet: él, változik, évszakról évszakra mást ad. Tavasszal palántázás, nyáron hosszú beszélgetések, ősszel csend, télen meghittség.

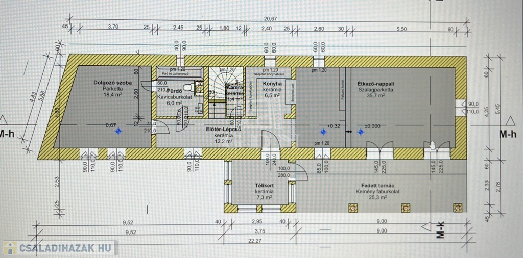
A 180 nm-es ház minden részlete kreativitással és átgondolt megoldásokkal született meg. Az eredeti épület megőrizte hagyományos építészeti értékeit, miközben 2000-ben a mai igényeknek megfelelő modern technikai megoldásokkal került felújításra és átalakításra.

A végeredmény egy olyan otthon, ahol a múlt karaktere és a jelen kényelme természetesen simul össze. A belső terek nem reprezentálni akarnak, hanem használatra hívnak. A nappali–konyha–étkező egysége a mindennapok és az együttlétek tere, míg a különálló szobák valódi elvonulást biztosítanak.

Az egyedi tervezésű, teljes üvegfelületű kisház külön történet.
Lehet alkotótér, télikert, dolgozószoba vagy egy külön világ, ahol egy pohár bor mellett egyszerűen ki lehet lépni a hétköznapokból. A kandallóval, nyitható tetővel kialakított tér tökéletesen illeszkedik a felújított, modernizált tájjellegű ház karakteréhez.

Ez az élettér egyszerre tud teret adni az együttléteknek és a visszavonulásnak.

Jöjjön el, nézze meg – és hagyja, hogy hasson.

Lokáció: dombok, tavak, lovardák, kellemes, nyugodt környezet
Közlekedés: M7 autóval 8 perc, Budapest Kelenföld 20 perc, Balaton 50perc. Budapest-Balaton kerékpárúton Etyek illetve Velence 30perc

További információért és részleteketért, hívjon bizalommal!

AMENNYIBEN NEM RENDELKEZIK A TELJES VÉTELÁRRAL, segítünk Önnek megtalálni a legjobb megoldást, akár a 3%-os hitelkonstrukcióval.

Családi ház részletei

Ár: 149 800 000 Ft
Méret: 180 négyzetméter
Azonosító: 11597488
Irodai azonosító: 382682
Cím: zöldövezet, élettér
Telek: 541 négyzetméter
Ingatlan állapota: Kitűnő
Jelleg: családi ház
Építőanyag: Kérdezzen rá a hirdetőtől »
Fűtés jellege: Cirkó
Fűtés módja: Gáz
Komfort fokozat: Dupla komfort
Kor: 50 évesnél régebbi
Szintek száma: 1 szint
Egész szobák: 4
Fél szobák: 1

Egyéb jellemzők

  • Csatorna
  • Garázs
  • Pince
  • Terasz

Térkép


Így keressen családi házat négy egyszerű lépésben. Csupán 2 perc, kötelezettségek nélkül!

Szűkítse a családi házak
listáját
Válassza ki a megfelelő
családi házat
Írjon a hirdetőnek
Várjon a visszahívásra