Eladó családi ház Gyula 88 000 000 Ft

Leírás

Több lehetőség: családi ház, apartman vagy cukrászda? Az lesz amit Ön szeretne, ebben az ingatlanban bármelyik megvalósítható, akár egyszerre is!

Gyulán a Nagyrománvároson eladóvá vált egy tágas telken található kétszintes családi ház és a mögötte évtizedeken keresztül sikeresen működtetett cukrászda.
A ház paraméterei: 1980-ban épült, beton lábazattal, tégla falazattal, beton koszorúval. A ház alapterülete 114 nm, melyben 2 fürdőszoba, tágas konyha, napfényes nappali és hálóhelyiségek is helyet kaptak, az egyedi kialakítású galériára egy nagyon igényes, szép állapotú tölgyfa lépcső vezet. Az emeleti részen egy nagy méretű terasz is helyet kapott, mely a megerősített födémszerkezetnek köszönhetően akár be is építhető. Nagyon masszív szerkezetű ingatlan, mely jól alakítható, így akár családi házként, akár apartmanként vagy vendégházként is hasznosítható, hiszen a Várfürdőtől mindössze néhány perces sétára található. A ház fűtéséről gázkazánról működtetett radiátorok gondoskodnak. Az ingatlanban a 2021-ben új kombikazáw került beszerelésre, emellett lehetőség van vegyes tüzelésű kazán beüzemelésére is. A ház áramellátása 3x25 A.
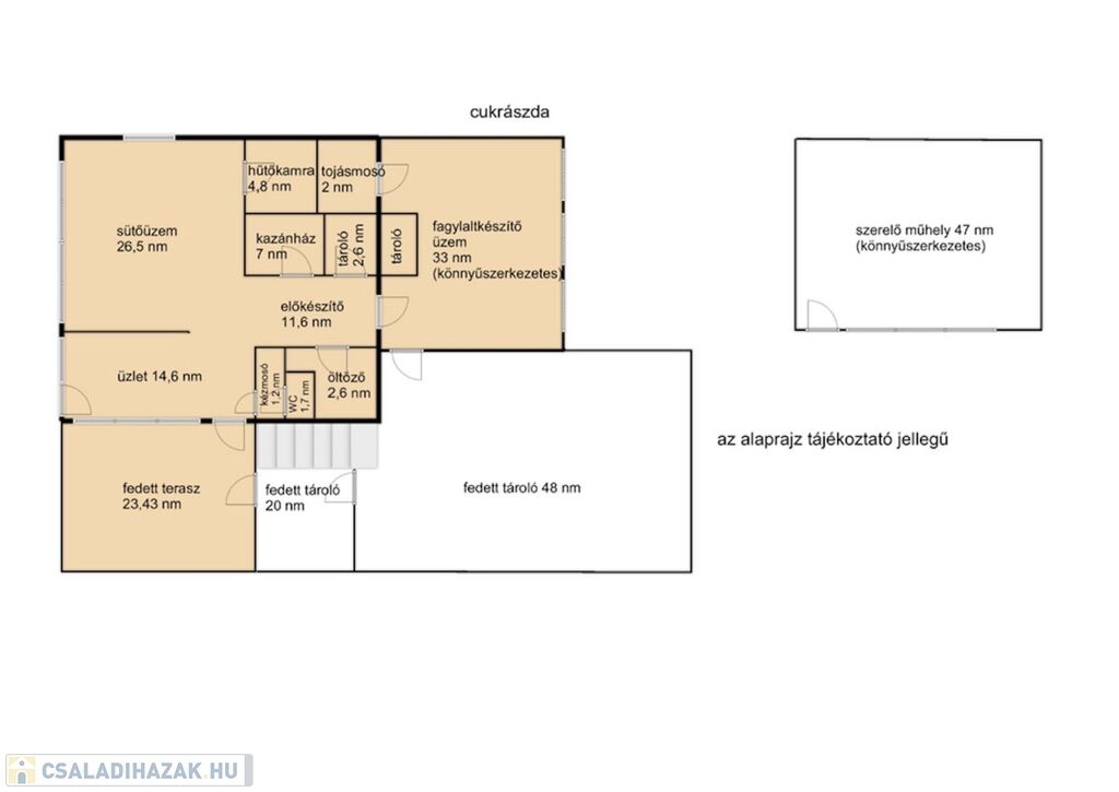
A cukrászda szintén beton lábazatú, tégla falazatú, alapterülete 248 nm, melyben az üzlet mellett, előkészítő és sütő részleg, nagy méretű, hőszigetelt hűtőkamra, tojásmosó és fagylaltkészítő műhely is helyet kapott. A cukrászda mellett fedett terasz és több nagy méretű fedett tároló is helyet kapott. Az épület betonfödémmel rendelkezik, így lehetőség van a tetőtér beépítésére, mely külső lépcsőről megközelíthető, így további cca. 60 nm beépítésére nyílik lehetőség. A cukrászdában 2024-ben lett cserélve a villanyóra, ebben az épületrészben az áramellátás 3x80 A. Emellett a vízmelegítő bojlerek áramellátása külön mérőóráról biztosított, melynek erőssége 3x25 A.
A telek alapterülete 671 nm, melyen egy fúrott kút mellett számos fedett és zárt tároló is helyet kapott, így a gépjármű tárolása is megoldott.
Vállalkozzon Békés megye egyik legszebb városában, itt minden feltétel adott hozzá!
Hívjon és nézzük meg együtt ezt a különleges adottságokkal rendelkező ingatlant!
(További képekért és információkért kérem hívjon!)

Családi ház részletei

Ár: 88 000 000 Ft
Méret: 114 négyzetméter
Azonosító: 11501376
Irodai azonosító: 658298
Erkély mérete: 30.00 négyzetméter
Telek: 671 négyzetméter
Ingatlan állapota: Átlagos
Jelleg: családi ház
Építőanyag: Tégla
Fűtés jellege: Cirkó
Egész szobák: 3
Fél szobák: 1
Nappalik: 1

Egyéb jellemzők

  • Beépíthető tetőtér
  • Csatorna
  • Garázs
  • Melléképület
  • Pince
  • Terasz

Így keressen családi házat négy egyszerű lépésben. Csupán 2 perc, kötelezettségek nélkül!

Szűkítse a családi házak
listáját
Válassza ki a megfelelő
családi házat
Írjon a hirdetőnek
Várjon a visszahívásra