Eladó családi ház Gyula 55 000 000 Ft

Leírás

Eladásra kínálom Gyula Fürdővárosában a fürdő övezeti városrészen a belvárostól mindössze 5 perc sétára lévő 1973 évben épült és 2020-évben felújított, csendes utcában található nappali plusz 2 szobás tégla falazatú, két szintes családi házat. A ház teljes egészében tégla falazatú, amelyhez egy fedett terasz is tartozik. Az ingatlan parkosított udvarának végén egy tágas melléképület található, amelybe a fűtés és a hálózati víz is be lett üzemelve, ezért az két generációs ingatlannak, vagy apartmannak is egyszerűen kialakítható. A háztól pár percre találhatunk élelmiszerboltot, iskolát, óvodát, bölcsödét, játszóteret. A fűtésről és a melegvíz ellátásról egy korszerű Westen típusú kondenzációs, kombi gázkazán, valamint egy korszerű vegyes kazán gondoskodik. Az ingatlan tető tere nem lett befejezve, de az tetszés szerint befejezheti új tulajdonosa.
Az ingatlan felújítása során részben cserélve lettek a nyílászárók hőszigetelt üveggel ellátott műanyag nyílászáróra. A ház teljes elektromos vezetéke is megfelel a mai kor követelményének (1x32 A és ipari áram). A felújítás során új hidegburkolatok és szép szalagparketta lett letéve. A fürdőszoba felújítása is megtörtént. Az ár tartalmazza a konyha bútorokat és a beépített szekrényeket.
Az ingatlan mérete és elosztása alapján tökéletes választás lehet nagycsaládosok számára is, mivel az összes helysége külön-külön megközelíthető.
Az ingatlan per-teher mentes és 1/1 tulajdonban van!
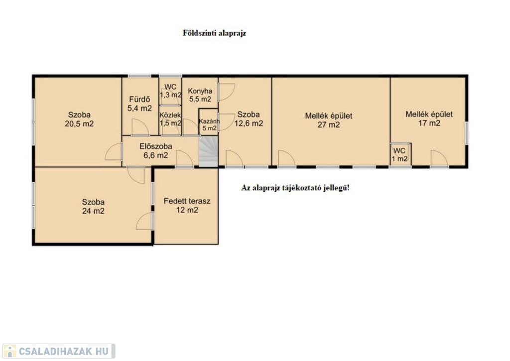
Az ingatlan hasznos lakóterülete: 145 m2.
A telek összesen: 344 m2.
Fedett terasz területe: 12 m2.
Az ingatlan belső elosztása: 1 nappali, 2 szoba, 2 konyha, 1 fürdőszoba, 2 WC, 1 közlekedő, 1 kamra, 1 kazánház, 2 fűthető melléképület.
Amennyiben ez a kiváló helyen lévő, előnyös elosztású, parkosított udvarral és lakható melléképülettel rendelkező, felújított családi ház felkeltette érdeklődését hívjon bizalommal a 0670/4574-392 telefonszámon.
(További kínálatunkat keresse a VING hivatalos weboldalán.)

Családi ház részletei

Ár: 55 000 000 Ft
Méret: 145 négyzetméter
Azonosító: 11405358
Irodai azonosító: 838942
Telek: 344 négyzetméter
Ingatlan állapota: Felújított
Jelleg: családi ház
Építőanyag: Tégla
Fűtés jellege: Cirkó
Egész szobák: 3
Nappalik: 1

Egyéb jellemzők

  • Beépíthető tetőtér
  • Csatorna
  • Garázs
  • Melléképület
  • Pince
  • Terasz

Így keressen családi házat négy egyszerű lépésben. Csupán 2 perc, kötelezettségek nélkül!

Szűkítse a családi házak
listáját
Válassza ki a megfelelő
családi házat
Írjon a hirdetőnek
Várjon a visszahívásra