Eladó családi ház Győrzámoly 82 900 000 Ft

Leírás

Ha új építésű házat keres Győr közelében, ilyen áron már alig talál.
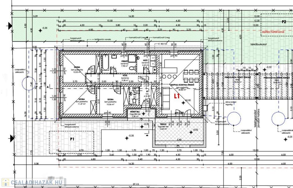
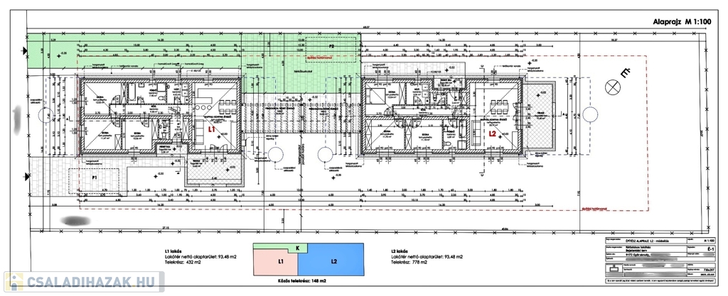
Győrzámoly csendes utcájában épülő ikerház 1. lakása most még elérhető – 432 m² saját telekhányaddal, leválasztható kertrésszel.

Most még elérhető!
Győrzámoly csendes utcájában épülő modern ház 1. lakása eladó – kialakításának köszönhetően szinte önálló családi ház, 432 m² saját telekkel.

A 93,48 m²-es, átgondolt elrendezésű otthon: amerikai konyhás nappali + 3 hálószoba, fürdő WC-vel, külön WC, háztartási helyiség, előszoba és közlekedő.

16,6 m² terasz

3,28 m² fedett bejárat

18 m² pergolás beálló

A két épület pergolával fedett kocsibeállókkal kapcsolódik, mindkét telekrész kerítéssel leválasztható. 148 m2-es közös bejáró biztosítja a kocsibeállókhoz történő bejutást.
A projekt egy közel 2000 m²-es telken valósul meg.

Ár: 82,9 millió Ft emelt szintű fűtéskész állapotban, 5% ÁFÁ-val.
A telekhányad 25 millió Ft, melyet a vételár tartalmaz.
ILLETÉKMENTES!
CSOK és kamattámogatott hitel, Otthon Start hitel igényelhető, díjmentes ügyintézéssel.

Műszaki tartalom:
– 30-as N+F tégla falazat
– 15 cm homlokzati hőszigetelés
– 3 rétegű üvegezésű nyílászárók
– 30 cm födémszigetelés
– kondenzációs gázkazán, minden helyiségben padlófűtéssel
– Terran tetőcserép

Megbízható kivitelező, referenciaházak megtekinthetők.
Kulcsrakész befejezés egyedi megállapodás alapján kérhető.
Várható átadás: 2027 tavasz.

Győr vonzáskörzetének egyik legkeresettebb településén az ilyen ár-érték arányú projektek gyorsan gazdára találnak.
Hívjon most: 20/2777237

Családi ház részletei

Ár: 82 900 000 Ft
Méret: 93 négyzetméter
Azonosító: 11598994
Irodai azonosító: 124934
Cím: Győrzámoly
Telek: 432 négyzetméter
Ingatlan állapota: Átlagos
Jelleg: családi ház
Építőanyag: Kérdezzen rá a hirdetőtől »
Fűtés jellege: Cirkó
Kor: Új építésű
Egész szobák: 4

Egyéb jellemzők

  • Terasz

Így keressen családi házat négy egyszerű lépésben. Csupán 2 perc, kötelezettségek nélkül!

Szűkítse a családi házak
listáját
Válassza ki a megfelelő
családi házat
Írjon a hirdetőnek
Várjon a visszahívásra