Eladó családi ház Győrzámoly 129 990 000 Ft

Leírás


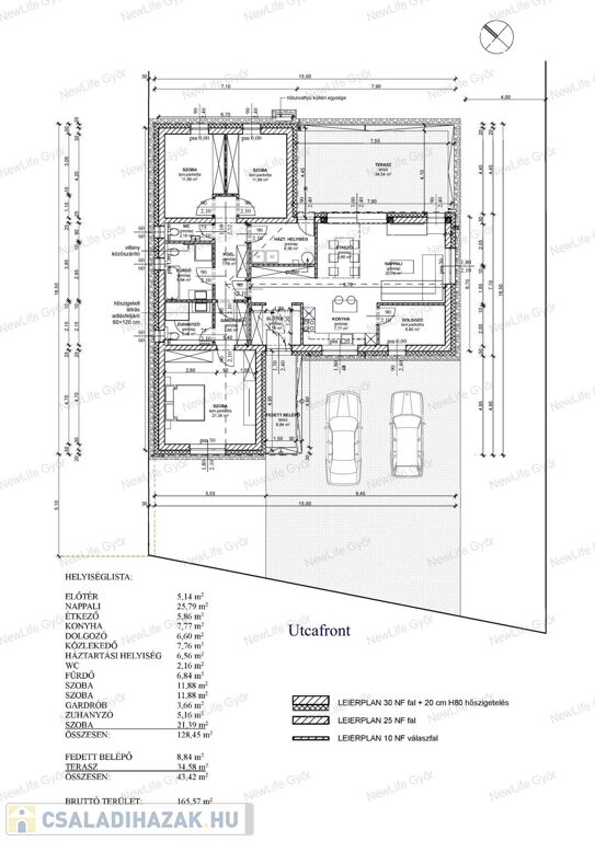
Folyamatban lévő építkezés Győrzámolyon! Az egyik legkedveltebb szigetközi településen, Győrzámolyon ajánlom megvételre ezt az 858m2-es telekre épülő 128 m2 alapterületű (+35nm terasz) 4 szobás, nappali-étkező-konyhás házat. 

 

Egy ingatlan, amely egyszerre otthon és értékálló befektetés.

 

Fontosabb műszaki adatok:

A ház 30NF falazóelemekből épül 12cm-es aljzatszigeteléssel, fafödémes (30cm födémszigetelés), a homlokzatra 20 cm vastag Drywit hőszigetelő rendszer kerül. Nyílászárói 6 légkamrás 3 rétegű hőszigetelt műanyag ablakok A fűtését és melegvíz ellátását hőszivattyú látja el padlófűtéses hőleadással.

 

 

Miért érdemes megvenni? (A teljesség igénye nélkül)

-modern stílusú ház, szép környezetben

-négy szoba + nappali

-gépesített konyhabútor

-hűtő-fűtő klma

-rejtett tokos, alumínium motoros redőnyök mindenhol

-kívül színezett nyílászárók

-okos ház előkészítés!

-2 fürdő, 3 WC

-hatalmas terasz

-sík felületű, letisztult formavilágú tetőcserép

-stb.. stb.., további információkkal kapcsolatban keressen!

 

 

 

Várható átadás és az ingatlan ára:

 

Fűtéskészen állapotban 2026 nyár, vételár: 129.990.000 Ft

Kulcsrakész állapotban 2026 ősz, vételár:  148.000.000 ft

 

A telek méretéből adódóan tökéletesen alkalmas azoknak, akik szeretik a nagy területet, akik szeretnek kicsit kertészkedni, vagy akik csak élvezni akarják a kész kertet.

 

 

Lokáció

 

A Község a megyeszékhelytől, Győrtől 10 km-re található csodálatos környezetben közvetlenül a Mosoni-Duna és az Öreg Duna szomszédságában. Győr autóval és kerékpárral is gyorsan megközelíthető a munkahely eléréséhez, valamint az esetleges bevásárlás és mindennapi ügyek intézéséhez is nagyon közel van, bár helyben is minden szolgáltató adott az általános igények kielégítésére. Valamint a hétköznapok kényelméhez hozzájárul a közeli élelmiszerüzlet, játszótér, és egyéb szolgáltatók. Gyalogtávolságon belül a háziorvosi szolgálat, gyógyszertár és állatorvosi rendelő is elérhető. A főút mellett húzódik a kerékpárút mely egész Szigetközt átszeli, így kötve össze Győrt Mosonmagyaróvárral.

 

A közelben rengeteg kikapcsolódási lehetőség található, többek között, lovarda, horgásztó, teniszpálya, gokart pálya és nem mellesleg a közeli Mosoni-Duna part és szabad strandja. Nagyon sok szép kirándulóhely található a Szigetközben, emiatt is vonzó sokaknak ez a település.

 

 

Ideális, ha:

 

✔️ egy élhető családi otthont keresel

✔️ fontos számodra a nyugodt környezet, de nem szeretnél elszigetelődni

✔️ szeretnél egy modern, minden igényt kielégítő otthont magadnak

 

Ügyfeleimnek az adásvétel teljes körű lebonyolítását vállalom.

Ügyvédi szolgáltatással, díjmentes jogi tanácsadással, bank független Otthon Start, CSOK+, Babaváró hitel, kamattámogatott és piaci hitelek ügyintézésével állok rendelkezésükre.

 

Ha szívesen megnéznéd, hívj bizalommal akár hétvégén is!

06-30/156-6513

 

Ügyfeleimnek az adásvétel teljes körű lebonyolítását vállalom.

 

Az adatok a tulajdonosok által közölt információk alapján kerültek rögzítésre.

Amennyiben a ház, vagy bármely a kínálatunkban található ingatlan felkeltette az érdeklődését, hívjon a megadott telefonszámon.

 

Ügyvédi szolgáltatással, díjmentes jogi tanácsadással, bank független Otthon Start, CSOK+, Babaváró hitel, kamattámogatott és piaci hitelek ügyintézésével állok rendelkezésükre.

Családi ház részletei

Ár: 129 990 000 Ft
Méret: 128 négyzetméter
Azonosító: 11614120
Irodai azonosító: 718800943
Telek: 858 négyzetméter
Ingatlan állapota: Kitűnő
Jelleg: családi ház
Építőanyag: Tégla
Komfort fokozat: Dupla komfort
Kor: Új építésű
Egész szobák: 5

Így keressen családi házat négy egyszerű lépésben. Csupán 2 perc, kötelezettségek nélkül!

Szűkítse a családi házak
listáját
Válassza ki a megfelelő
családi házat
Írjon a hirdetőnek
Várjon a visszahívásra