Eladó családi ház Győrzámoly 99 900 000 Ft

Leírás


Remek ajánlat! 

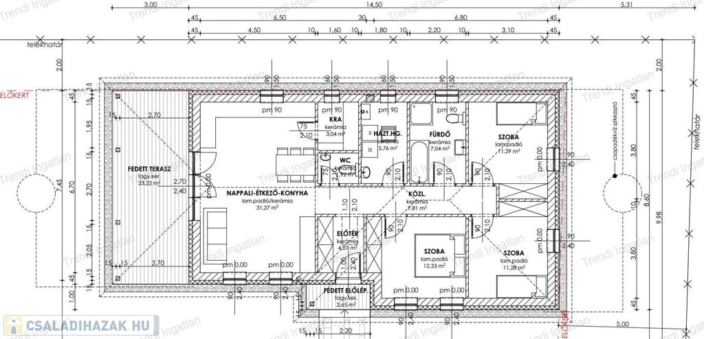
Győrzámolyon új építésű 96,01 nm-es, nappali + 3 szobás családi ház 625 nm-es telken kulcsrakész állapotban eladó. 

A kiváló elosztású házban amerikai konyhás nappali, 3 szoba, fürdőszoba, háztartási helyiség, külön WC, kamra, közlekedő, előtér található. A nappaliból nyílik 23,22 nm-es terasz. A ház belső elrendezése készültségi fokhoz mérten még változtatható.

A ház 30-as falazóelemből, 15 cm-es homlokzati szigeteléssel, 3 rétegű műanyag nyílászárókkal kerül kivitelezésre. Az ingatlan fűtését és melegvíz ellátását kondenzációs kazán biztosítja. Az ár 2 db klímát, redőnyöket és színes ereszt tartalmazza. Felár ellenében hőszivattyús fűtés, kerti csap, riasztó előkészítés, térkövezés kérhető.

Várható átadás 2026 év vége.

Az ingatlan kulcsrakész ára: 99.900.000 Ft. A kulcsrakész ár nem tartalmazza a konyhabútort.

Az ár tartalmazza a telek árát is.

Bővebb információkért forduljon hozzám bizalommal.

Hétköznap és hétvégén is várom hívását!

Díjmentes, bankfüggetlen hitelügyintézéssel állunk rendelkezésére.

A hirdetésben feltüntetett képek illusztrációk.

Családi ház részletei

Ár: 99 900 000 Ft
Méret: 96 négyzetméter
Azonosító: 11572811
Irodai azonosító: 196400802
Telek: 625 négyzetméter
Ingatlan állapota: Kitűnő
Jelleg: családi ház
Építőanyag: Tégla
Komfort fokozat: Összkomfort
Kor: Új építésű
Egész szobák: 4

Így keressen családi házat négy egyszerű lépésben. Csupán 2 perc, kötelezettségek nélkül!

Szűkítse a családi házak
listáját
Válassza ki a megfelelő
családi házat
Írjon a hirdetőnek
Várjon a visszahívásra