Eladó családi ház Győrújfalu 84 900 000 Ft

Leírás


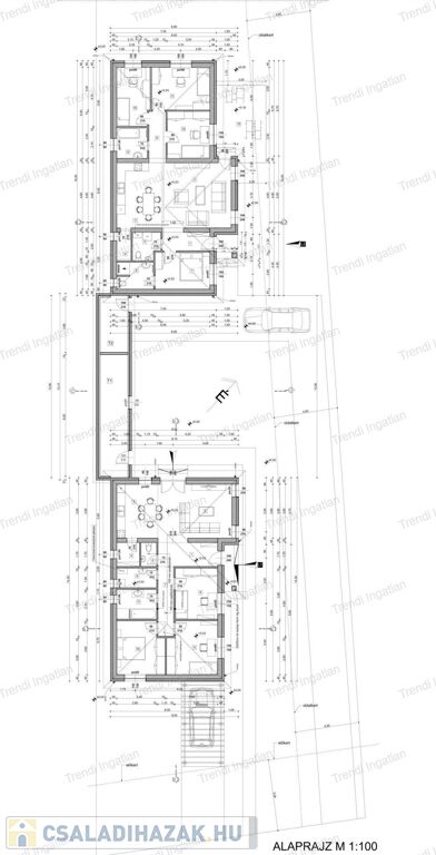
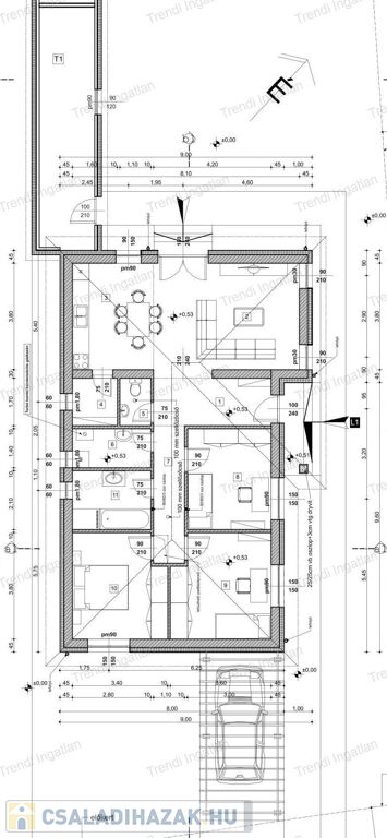
Győr szomszédságásban,Győrújfalun 93,66 nm-es nappali + 3 szobás ikerház 517 nm-es telekrésszel eladó.

Az ingatlanban amerikai konyhás nappali, 3 szoba, fürdőszoba, külön WC, kamra, háztartási helyiség, közlekedő, előtér található. A házhoz 16,98 nm-es tároló tartozik. A két ingatlan külön megközelíthető, a házakat csak a tárolók kötik össze.

A ház 30-as falazóelemből, 15 cm-es homlokzati szigeteléssel, 3 rétegű műanyag nyílászárókkal kerül kivitelezésre. Az ingatlan fűtését és melegvíz ellátását kondenzációs kazán biztosítja padlófűtéssel. Az ár tartalmazza a redőny és klíma előkészítését. Felár ellenében hőszivattyús fűtés, kerti csap, riasztó előkészítés, térkövezés kérhető. Igény esetén garázs is kérhető.

Az átadás várható ideje: 2025 év vége

Az ingatlan fűtéskész ára: 84.900.000 Ft, mely tartalmazza a telek árát is. 

Kulcsrakész befejezés kérhető. 

Ha Győr szomszédságában, kertes otthonban szeretne élni, ez a ház Önre vár!

Bővebb információkért forduljon hozzám bizalommal.

Hétköznap és hétvégén is várom hívását!

Díjmentes hitel és CSOK ügyintézéssel állunk rendelkezésére.

A hirdetésben feltüntetett képek illusztrációk.

Családi ház részletei

Ár: 84 900 000 Ft
Méret: 94 négyzetméter
Azonosító: 11563795
Irodai azonosító: 196400774
Telek: 517 négyzetméter
Ingatlan állapota: Kitűnő
Jelleg: ikerház
Építőanyag: Tégla
Komfort fokozat: Összkomfort
Kor: Új építésű
Egész szobák: 4

Így keressen családi házat négy egyszerű lépésben. Csupán 2 perc, kötelezettségek nélkül!

Szűkítse a családi házak
listáját
Válassza ki a megfelelő
családi házat
Írjon a hirdetőnek
Várjon a visszahívásra