Eladó családi ház Győrújfalu 110 000 000 Ft

Leírás

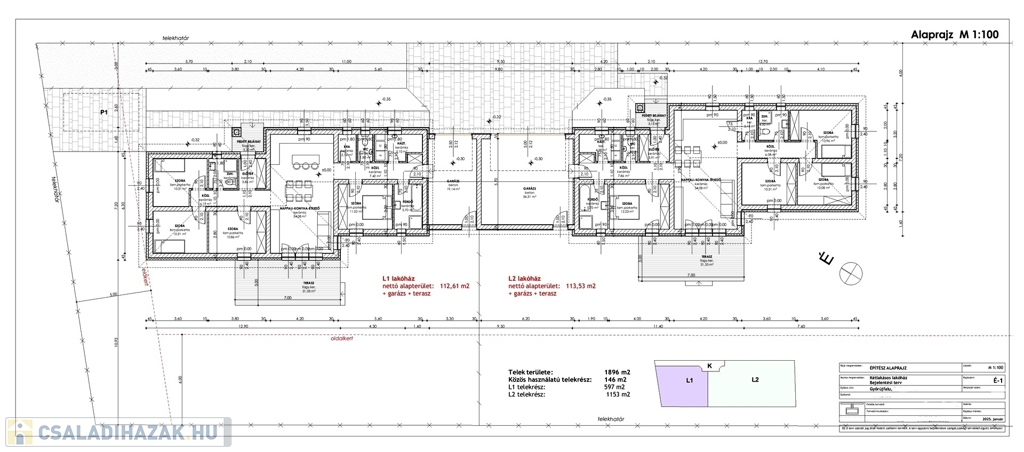
Nappali+ 4 szoba + GARÁZS!

Győrújfalu központhoz közeli, csendes utcájában épülő ikerház L1 lakását kínálom Önnek.
A két épület egy 1896 m2-es telken épül fel. A házak garázsokkal kapcsolódnak egymáshoz. Kerítéssel elválasztható a két telekrész. A garázsokhoz vezető út 146 m2 közös.

Az 597 m2 saját telekhányaddal rendelkező 112,61 m2-es ház helyiségei: amerikai konyhás nappali, 4 hálószoba, fürdőszoba+ WC, közlekedő, háztartási helyiség, WC, kamra és előszoba.
Az ingatlanhoz 21,33 m2 terasz és fedett bejárat tartozik.
Az udvaron található még egy 19,14 m2-es GARÁZS is.

Az ár fűtéskész állapotra vonatkozik 5% Áfával és tartalmazza a telekhányadot.
Megbízható kivitelező! Megtekinthető referencia házak.

Várható befejezés: 2026. tavasz

Műszaki tartalom:
- Leier 30-as N+F tégla falazat, 10 cm tégla válaszfalak
- Gealan típusú, 3 rétegű üveggel ellátott fehér hőszigetelt ablakok, Igényes, hőszigetelt bejárati ajtó
- Baumit Star EPS hőszigetelő rendszer 15 cm homlokzati szigeteléssel
- padlószerkezetbe 10 cm lépésálló hőszigetelés kerül
- fafödém 30 cm Rockwool Multirock ásványgyapot hőszigeteléssel. ,
- Terran Synus tetőcserép
- FŰTÉS, meleg víz: HŐSZIVATTYÚ, minden helyiségben padlófűtéssel
- színezett ereszcsatorna

Egyéni megbeszélés alapján értékegyeztetéssel még választható. ( Napelem, klíma, ....)

Ajánlom mindazoknak akik Győr vonzáskörzetének egyik kiemelkedően fejlődő településén, kellemes környezetben szeretnék élni életüket.
CSOK nélkül is ILLETÉKMENTES!

Hitelre lenne szüksége? Irodánk bank független tanácsadással és díjmentes hitelügyintézéssel áll rendelkezésére. Babaváró, CSOK, piaci és támogatott hitelek. Megkeressük Önnek a legkedvezőbb megoldást.

További információkért hívjon bizalommal. Válasszuk ki az Önnek legmegfelelőbb lakást közösen!
Várom hívását! 20/2777237

Családi ház részletei

Ár: 110 000 000 Ft
Méret: 113 négyzetméter
Azonosító: 11406221
Irodai azonosító: 112492
Cím: Győrújfalu
Telek: 597 négyzetméter
Ingatlan állapota: Átlagos
Jelleg: ikerház
Építőanyag: Kérdezzen rá a hirdetőtől »
Fűtés jellege: Cirkó
Kor: Új építésű
Egész szobák: 5

Egyéb jellemzők

  • Terasz

Így keressen családi házat négy egyszerű lépésben. Csupán 2 perc, kötelezettségek nélkül!

Szűkítse a családi házak
listáját
Válassza ki a megfelelő
családi házat
Írjon a hirdetőnek
Várjon a visszahívásra