Eladó családi ház Győrújfalu 110 000 000 Ft

Leírás


Nappali + 4 szobás ház garázzsal eladó!

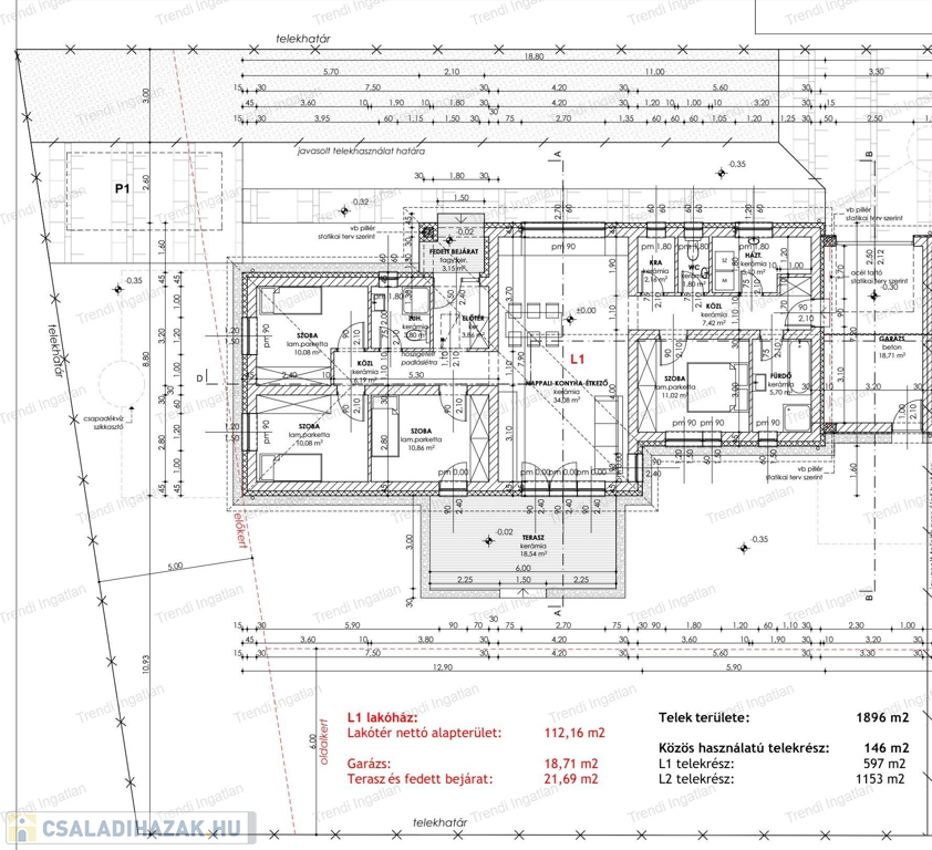
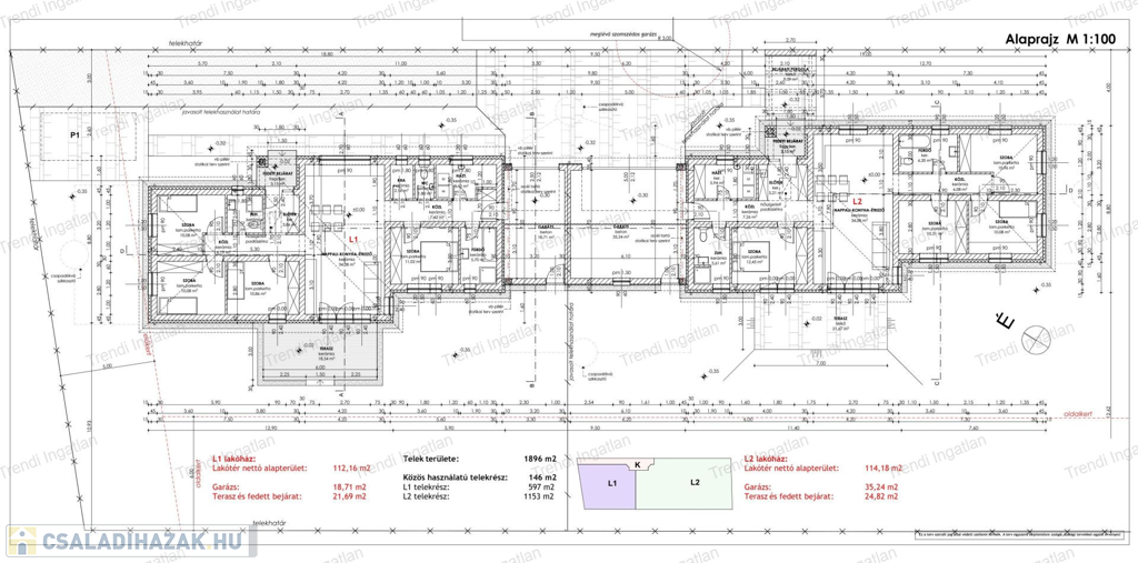
Győr szomszédságában, Győrújfalun új építésű 112,16 nm-es ikerház 597 nm-es telekrészen eladó. A két ingatlant a garázsok kötik össze.

A házban amerikai konyhás nappali, 4 szoba, 2 fürdőszoba, külön WC, háztartási helyiség, kamra, közlekedő, előtér található. A nappaliból és a hálószobából is elérhető 18,54 nm-es terasz. A közlekedőn keresztül elérhető a 18,71 nm-es garázs. A ház belső elrendezése készültségi fokhoz mérten még változtatható. 

A ház 30-as falazóelemből, 15 cm-es homlokzati szigeteléssel, 3 rétegű műanyag nyílászárókkal kerül kivitelezésre. Az ingatlan fűtését hőszivattyú biztosítja padlófűtéssel. A klíma előkészítését tartalmazza az ár. Felár ellenében kerti csap, riasztó előkészítés, térkövezés kérhető.

Fűtéskész átadás várható ideje 2026.

Az ingatlan fűtéskész ára: 110.000.000 Ft. Az ár tartalmazza a telek árát is.

Kulcsrakész befejezés kérhető. 

Ha Győr szomszédságában, kertes otthonban szeretne élni, ez a ház Önre vár!

Bővebb információkért forduljon hozzám bizalommal.

Hétköznap és hétvégén is várom hívását!

Díjmentes, bankfüggetlen hitelügyintézéssel állunk rendelkezésére.

Családi ház részletei

Ár: 110 000 000 Ft
Méret: 112 négyzetméter
Azonosító: 11543906
Irodai azonosító: 196400737
Telek: 597 négyzetméter
Ingatlan állapota: Kitűnő
Jelleg: ikerház
Építőanyag: Tégla
Komfort fokozat: Dupla komfort
Kor: Új építésű
Egész szobák: 5

Így keressen családi házat négy egyszerű lépésben. Csupán 2 perc, kötelezettségek nélkül!

Szűkítse a családi házak
listáját
Válassza ki a megfelelő
családi házat
Írjon a hirdetőnek
Várjon a visszahívásra