Eladó családi ház Győrújbarát 193 850 000 Ft

Leírás

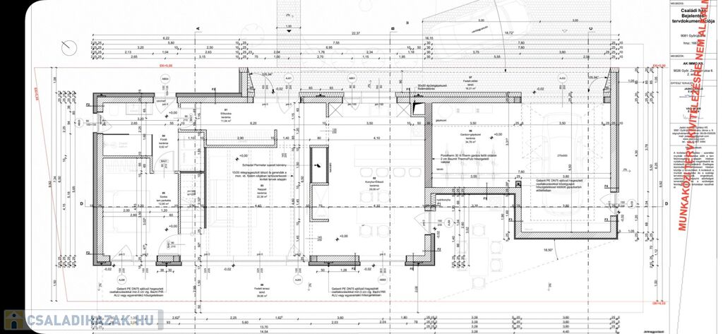
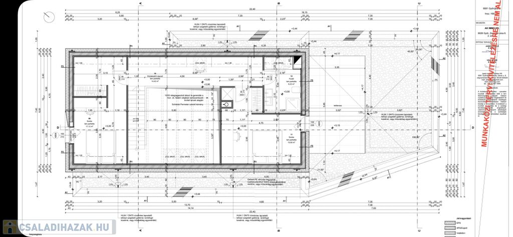
Győrújabráton ÖRÖKPANORÁMÁS 1600m2-es telken, újonnan kialakított exclusiv lakóparkjában, eladásra kínálom ezt a magas műszaki tartalommal épülő nappali + 3 hálószobás két szintes családiházat. A ház nettó alapterülete 173,35m2, ami magába foglalja a dupla beállós garázst is. A kivitelező cég, hogy a lakópark megőrizze az egységes utcaképét, minden megrendelőnek ajándékba megépíti az utcafronti kerítéseket, úszókaput. A telkeket elválasztó dróthálós kerítés megépítése is az ár részét képezi. ( felár ellenében 3D-s kerítés is választható az oldalhatárokra)

A látványterv képek az épülő ingatlant tükrözik de választható bármely más típusterv is vagy akár teljesen egyedi elképzelés is megvalósítható.

Ami a fűtéskész árban benne van:
15 m2 klinker homlokzatburkolat (a látványterveken sok esetben több van)
Bejárati ajtó oldalvilágítóval
Vakolható tokos redőnytok teríték nélkül
Mennyezeti fűtés-hűtés és padlófűtés, termosztát és szabályozás a huzamosabb tartózkodás célját szolgáló helyiségekben
NGBS fűtési automatika
Prémium hőszivattyú
Kamera kábelezés 4 helyre
Riasztó kábelezés
Kerítések: utcai vasbeton kerítés, alumínium betétekkel, 1 db úszókapuval, 1 db személyi kapuval, további kerítések drótfonatos kerítésből
Tervezés (Egyszerű bejelentési tervdokumentáció)
Emelt fűtéskész ár: 193.850.000,-
Érd: 06-70-605-0506, 06-20-408-7740

Családi ház részletei

Ár: 193 850 000 Ft
Méret: 173 négyzetméter
Azonosító: 11479906
Irodai azonosító: 116614
Cím: Győrújbarát
Ingatlan állapota: Átlagos
Jelleg: családi ház
Építőanyag: Kérdezzen rá a hirdetőtől »
Fűtés jellege: Cirkó
Kor: Új építésű
Egész szobák: 4

Egyéb jellemzők

  • Terasz

Így keressen családi házat négy egyszerű lépésben. Csupán 2 perc, kötelezettségek nélkül!

Szűkítse a családi házak
listáját
Válassza ki a megfelelő
családi házat
Írjon a hirdetőnek
Várjon a visszahívásra