Eladó családi ház Győrújbarát 152 061 000 Ft

Leírás

Győrújbaráton nappali+ 3 szobás, dupla garázsos, energiatakarékos családi ház magas műszaki tartalommal

Győrújbarát legszebb részén, 10 db különböző méretű, panorámás telek került kialakításra. Ezek egyikén kínálok Önnek egy épülő, nagy múltú, kiváló kivitelező által magas műszaki tartalommal épített önálló családi házat. Amennyiben más jellegű otthont szeretne, lehetősége van egy másik telken a saját elképzeléseit is megvalósítani. Kialakításra kerül még 5 db ikerház is.

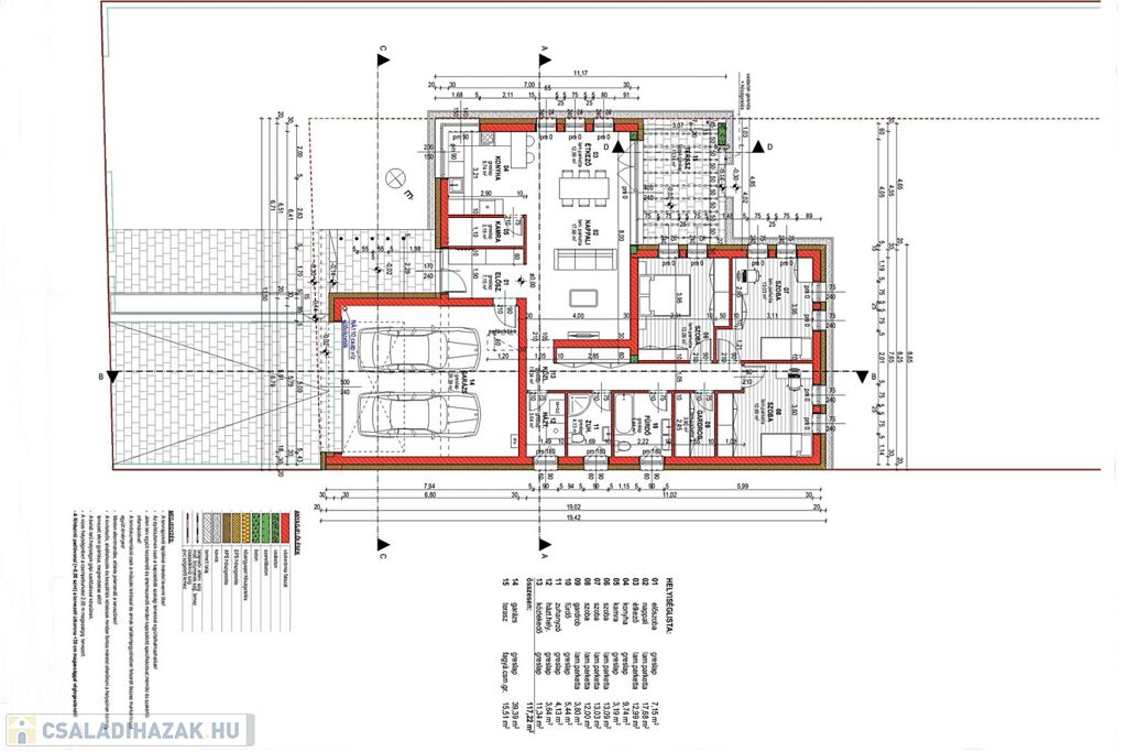
A hirdetésben szereplő ingatlan egy 934 m2-es telekre épül és nettó hasznos alapterülete: 150 m2.
Ház helyiségei: Nappali 17,68 m2, Konyha 9,74 m2, étkező 12,99 m2, 3 háló (12 m2, 13,03 m2, 13,09 m2 ), 5,44 m2 fürdő, 3,8 m2 gardrób, 3,19 m2 kamra, 3,64 m2 háztartási helyiség, 4,13m2 WC+zuhanyzó, 11,34 m2 közlekedő, 7,15 m2 előszoba. + 15.15 m2 TERASZ
39,39 m2 DUPLA GARÁZS
A házban kizárólag elismert márkák minőségi termékei és építőanyagai kerülnek beépítésre.

Műszaki tartalom:
- Főfal: 30 cm-es Heluz Family csiszolt tégla (Hőátbocsátási tényező, U: 0,25 W/m2 K)
- Válaszfal: 10 cm-es Bakonytherm tégla falazat
- Padló hőszigetelés: 16 cm AT-N100 lépésálló szigetelés
- Homlokzati hőszigetelés: 20 cm EPS AT-H80 Austrotherm vagy 15 cm Ausrotherm Grafitos hőszigetelés.
- Födém: 20 cm vastag vasbeton födémszerkezet 30 cm vastag Rockwool kőzetgyapot hőszigeteléssel
- Födém: 20 cm vastag vasbeton födémszerkezet.
- Lapostető födém szigetelése: 28-40 cm vastagságban AT-N100 lépésálló hőszigetelés készül, lejtést adóan.
- Lapostető vízszigetelése: 1,5 mm vastagságú PVC szigetelés készül, mechanikus rögzítéssel.
- 3 réteg üvegezéssel ellátott kívül színes, belül fehér műanyag, bukó-nyíló REHAU nyílászárók
- Hörmann motoros szekcionált garázskapu távirányítóval
- Külső vakolható redőnytok vagy zsaluzia előkészítés, elektromos lehetőség biztosítása
- meleg víz 300 literes, a tervezett hőszivattyúval fűtött vízmelegítő berendezéssel
- FŰTÉS: geotermikus energián alapuló DAIKIN levegő/víz HŐSZIVATTYÚ padlófűtéssel, fürdőszobában 1 db törölközőszárító
- HŰTÉS A rendszert úgy lett kialakítva, hogy a felületfűtési rendszerek alkalmasak legyenek megfelelő szabályozás mellett passzív hűtés (felület temperálás) megvalósítására.
Négy helyiség kivételével mindenhol mennyezeti hűtés kerül kivitelezésre, az épületgépész tervek
szerinti módon. (kivételek: a garázs, fürdő, zuhanyzó, gardrób)
- H tarifás mérő 3x20 Amper valamint nappali mérő által 3x20 Amper kerül biztosításra
- Riasztó rendszer alapszerelés készítése.

Az ÁR tartalmazza a telket és az emelt szintű, fűtéskész állapotot.
Kivitelező vállalja a KULCSRAKÉSZ befejezést, medence és kertépítést is.

Győrújbarát egy dinamikusan fejlődő település, ahol jó nevű iskola, több óvoda, böcsöde is megtalálható. Boltok, éttermek, posta, benzinkút, orvosi rendelő is a lakosság rendelkezésére állnak.

CSOK, kamattámogatott és piaci hitelek, Babaváró, illetékmentesség. Ingyenes, bankfüggetlen hitel ügyintézés és tanácsadás. Megtaláljuk az Önnek legkedvezőbb megoldást!

Jöjjön el, nézzük meg együtt!

Időpont-egyeztetés kizárólag telefonon! Várom megtisztelő hívását!
20/2777237

Családi ház részletei

Ár: 152 061 000 Ft
Méret: 150 négyzetméter
Azonosító: 11483016
Irodai azonosító: 116733
Cím: Győrújbarát
Telek: 934 négyzetméter
Ingatlan állapota: Átlagos
Jelleg: családi ház
Építőanyag: Kérdezzen rá a hirdetőtől »
Fűtés jellege: Cirkó
Kor: Új építésű
Egész szobák: 4

Egyéb jellemzők

  • Terasz

Így keressen családi házat négy egyszerű lépésben. Csupán 2 perc, kötelezettségek nélkül!

Szűkítse a családi házak
listáját
Válassza ki a megfelelő
családi házat
Írjon a hirdetőnek
Várjon a visszahívásra