Eladó családi ház Győrság 96 000 000 Ft

Leírás

Győrságon tágas nappalival + 4 hálószobával, 2 fürdőszobás új építésű önálló családi ház eladó

Egy jól átgondolt tervezésű, igényes kivitelezésű, modern családi házra vágyik? Ezt nézze meg!

Győrtől 15 km-re, a rohamosan fejlődő, kellemes település, Győrság új építésű részén épült fel a kínált önálló családi ház, amely kívülről már elkészült.
A ház egy 728 m2-es telken 3 oldalról már körbe kerített, füvesített telken helyezkedik el.

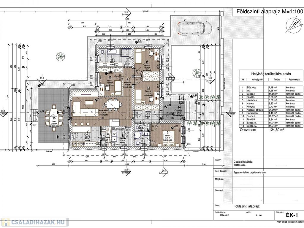
A 124,8 m2-es ház helyiségei: tágas amerikai konyhás nappali, kamra, 3 hálószoba, 1 szülői háló saját fürdőszobával, fürdőszoba, WC, háztartási helyiség, közlekedő,, szélfogó.
A házhoz tartozik egy 27,97 m2-es épített TERASZ is, ami igény esetén befedhető.

Megbízható, számos referenciával rendelkező kivitelező.

Az ár emelt szintű fűtéskész állapotra vonatkozik és tartalmazza a telekhányadot is valamint 5% Áfát.

A ház jelenleg a képeken látható állapotban van. A villany- és vízvezetékek szerelése is a vevők igényei alapján készül el, amelyet a hirdetett ár tartalmaz.
A kulcsrakész befejezés az Ön igényei alapján fog elkészülni.
???? KULCSRAKÉSZ ÁR – VÁLASZTHATÓ FŰTÉSI RENDSZERREL
✅ 113,5 millió Ft – kondenzációs gázkazánnal
✅ 124 millió Ft – korszerű hőszivattyús rendszerrel
Várható átadás 2026. nyár.

Műszaki tartalom:
- A teherhordó falazatok POROTHERM 30 N+F téglából készültek
- válaszfalak 10 cm POROTHERM N+F kerámia válaszfallap
- aljzatban lépésálló hőszigetelés 12,0 cm
- 15 cm homlokzati szigetelés DRYVIT hőszigetelő homlokzatbevonattal, aképeken látható bézs színekben
- 15+20 cm ásványgyapot hőszigetelés (Knauf Insulation)
- kívül dió, belül fehér színű műanyag nyílászárók 3 rétegű üveggel
- szeglemezes tetőszerkezet
- 15 cm függesztett gipszkarton fém vázszerkezet,. impregnált tűzgátló gipszkarton burkolattal
- BRAMAC RÓMAI NOVO beton tetőcserép, barna színben
- kívül műkő ablakpárkányok
- Tetővel harmonizáló színű, színes ereszcsatornák és lefolyók porfestett kivitelben,
- RIELLO Kondenzációs Combi gázkazán PADLÓFŰTÉSSEL ( VÁLASZTHATÓ HŐSZIVATTYÚS RENDSZER is)
- LEIER LSK 20 kémény beépítve, így kandalló is elhelyezhető a nappaliban
- Minden ablakon rejtett tokos alumínium REDŐNY
- felár ellenében szellőztető rendszer is kiépíthető

A rohamosan fejlődő településen iskola, óvoda, bolt, étterem is üzemel.
Az M1 autópálya pár perc alatt elérhető, így az Ipari Park is nagyon könnyen megközelíthető. .

Amennyiben hitelre van szüksége ingyenes tanácsadással és teljes körű ügyintézéssel állunk rendelkezésére.
Az ingatlan megvásárlásához minden családtámogatási kedvezmény igénybe vehető!
Megkeressük Önnek a legkedvezőbb megoldást!

Hívjon mielőbb! További információk kizárólag telefonon!
20/2777237

Családi ház részletei

Ár: 96 000 000 Ft
Méret: 125 négyzetméter
Azonosító: 11599505
Irodai azonosító: 125005
Cím: Győrság
Telek: 728 négyzetméter
Ingatlan állapota: Átlagos
Jelleg: családi ház
Építőanyag: Kérdezzen rá a hirdetőtől »
Fűtés jellege: Cirkó
Kor: Új építésű
Egész szobák: 5

Egyéb jellemzők

  • Terasz

Így keressen családi házat négy egyszerű lépésben. Csupán 2 perc, kötelezettségek nélkül!

Szűkítse a családi házak
listáját
Válassza ki a megfelelő
családi házat
Írjon a hirdetőnek
Várjon a visszahívásra