Eladó családi ház Győrság 69 900 000 Ft

Leírás

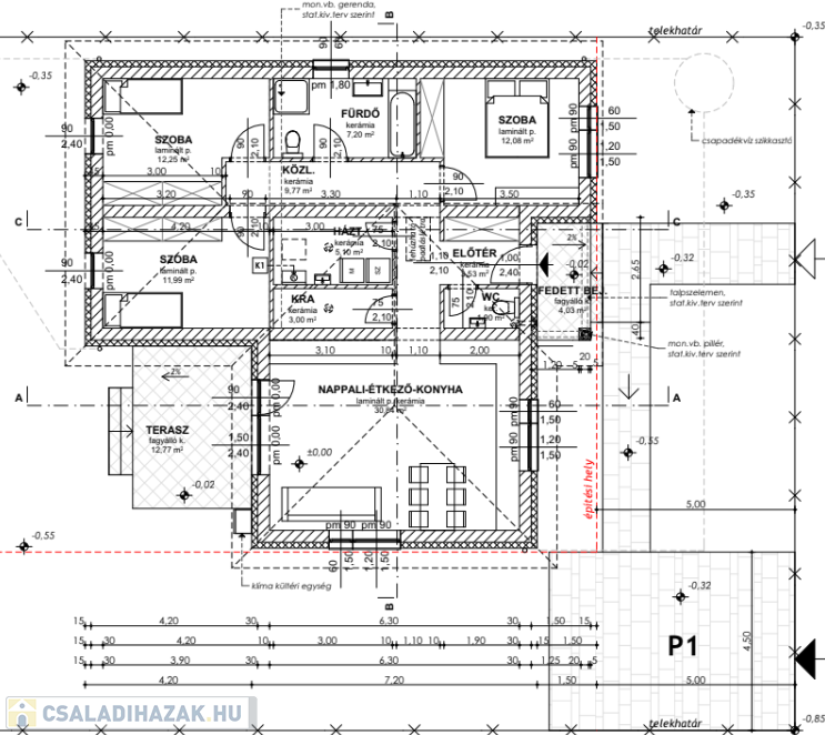
Győrságon, új építésű környezetben eladó ez a családi ház, mely önálló 710 nm-es telken áll.
A telek szélessége 17,5 m.

Az ingatlan N 97,66 nm, tartozik hozzá a 12,7 nm-es terasz.
Emelt szint szintű szerkezetkész állapotban kerül átadásra.
Ára: terasszal együtt 72,9 m Ft.
Terasz nélkül pedig, a fent feltüntetett ár: 69,9 m Ft.

30-as téglafalazattal 15 cm szigeteléssel készül, a födémre 30 cm szigetelés kerül.
Energetikai besorolás: A
A tető: barna színű cserép.
Fűtés: hőszivattyú, hőleadás padlófűtéssel.
Nyílászárók: 3 rétegűek.

Kulcsra kész állapot külön megegyezés alapján kérhető.


Az ingatlan várható átadása: 2026. év vége.

Személyre szabott, bank-semleges hiteltanácsadással várom Ügyfeleimet!

Várom hívását!
Vajda Zsuzsa +362021433887

Családi ház részletei

Ár: 69 900 000 Ft
Méret: 98 négyzetméter
Azonosító: 11583451
Ingatlan állapota: Épülő
Jelleg: családi ház
Építőanyag: Tégla
Fűtés jellege: Hőszivattyú
Komfort fokozat: Összkomfort
Kor: Új építésű
Szintek száma: Földszintes
Egész szobák: 4
Nappalik: 1

Egyéb jellemzők

  • Beépíthető tetőtér
  • Csatorna
  • Garázs
  • Melléképület
  • Padlás
  • Pince
  • Terasz

Így keressen családi házat négy egyszerű lépésben. Csupán 2 perc, kötelezettségek nélkül!

Szűkítse a családi házak
listáját
Válassza ki a megfelelő
családi házat
Írjon a hirdetőnek
Várjon a visszahívásra