Eladó családi ház Győrság 59 900 000 Ft

Leírás


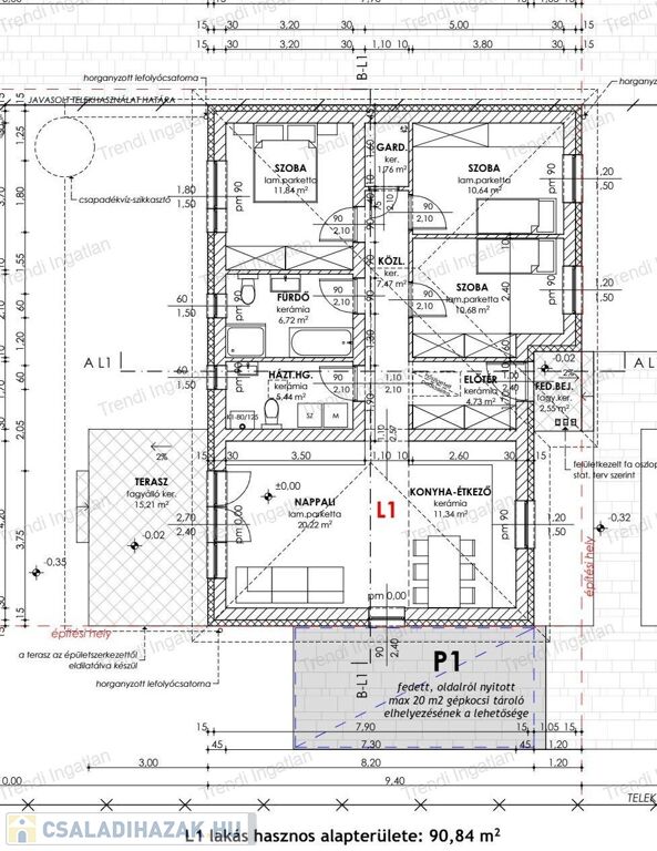
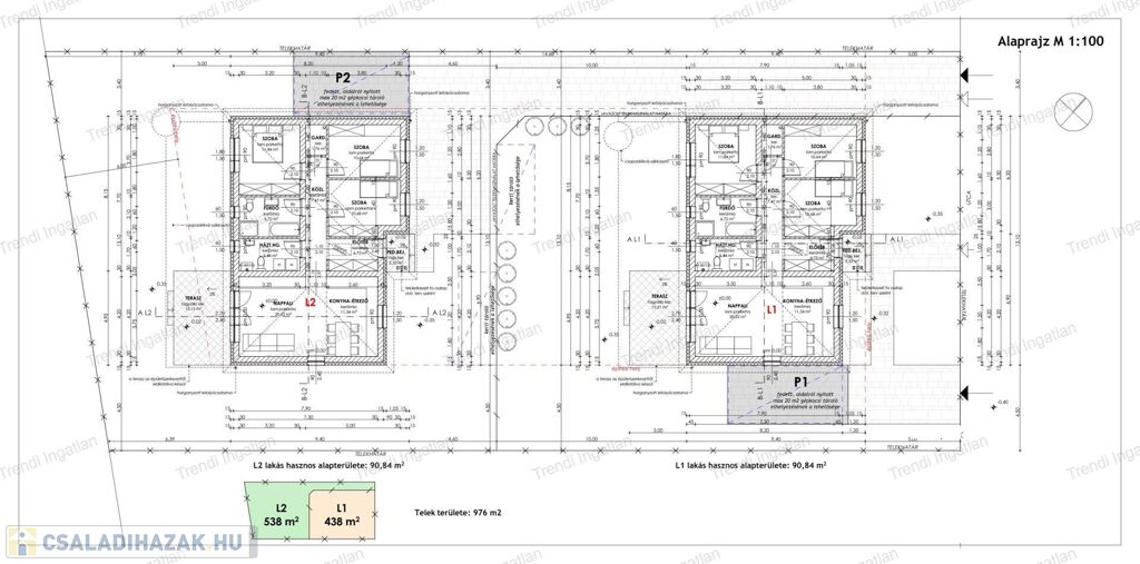
Győrságon új építésű 90,84 nm-es nappali + 3 szobás ikerház 438 nm-es telekrészen eladó. A két ház önállóan megközelíthető, nincs közös fal.

A remek elosztású házban amerikai konyhás nappali, 3 szoba, fürdőszoba, háztartási helyiség, előtér, gardrób, közlekedő található. A nappaliból 15,21 nm-es terasz nyílik.

A ház 30-as falazóelemből, 15 cm-es homlokzati szigeteléssel, 3 rétegű műanyag nyílászárókkal kerül kivitelezésre. Az ingatlan fűtését és melegvíz ellátását hőszivattyú biztosítja padlófűtéssel. Felár ellenében kerti csap, klíma- és riasztó előkészítés, terasz, térkövezés kérhető.

Fűtéskész átadás várható ideje: 2026 ősz

Az ingatlan fűtéskész ára: 59.900.000 Ft. Kulcsrakész befejezés kérhető.

Az ár tartalmazza a telek árát is.

Bővebb információkért forduljon hozzám bizalommal.

Hétköznap és hétvégén is várom hívását!

Díjmentes, bankfüggetlen hitelügyintézéssel állunk rendelkezésére.

A hirdetésben feltüntetett képek illusztrációk.

Családi ház részletei

Ár: 59 900 000 Ft
Méret: 91 négyzetméter
Azonosító: 11573125
Irodai azonosító: 196400804
Telek: 438 négyzetméter
Ingatlan állapota: Kitűnő
Jelleg: ikerház
Építőanyag: Tégla
Komfort fokozat: Összkomfort
Kor: Új építésű
Egész szobák: 4

Így keressen családi házat négy egyszerű lépésben. Csupán 2 perc, kötelezettségek nélkül!

Szűkítse a családi házak
listáját
Válassza ki a megfelelő
családi házat
Írjon a hirdetőnek
Várjon a visszahívásra