Eladó családi ház Győrság 54 900 000 Ft

Leírás

KIVÉTELES LEHETŐSÉG! Saját otthon ELÉRHETŐ ÁRON, ne hagyja ki! Hívjon mielőbb, ne maradjon le róla!

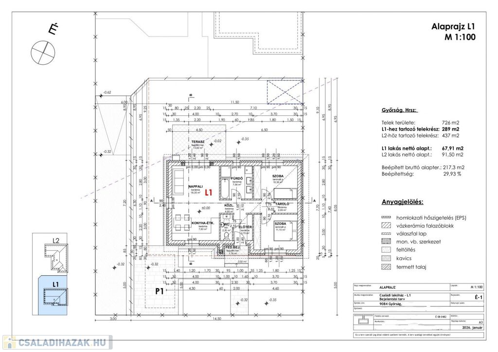
Győrság új parcellázású, csendes utcájában épülő ikerház L1 lakását kínálom Önnek.
A két épület egy 726 m2-es nagyon szép panorámás telken épül fel. A házak teljesen elkülönülnek egymástól, közös faluk nincs. Kerítéssel elválasztható a két telekrész.

A 289 m2 saját telekhányaddal rendelkező 67,91 m2-es ház helyiségei: amerikai konyhás nappali, 2 hálószoba, fürdőszoba, WC, közlekedő, tároló, előszoba.
Az ingatlanhoz 13,82 m2 terasz és fedett bejárat tartozik.

Az ár emelt szintű fűtéskész állapotra vonatkozik 5% Áfával és tartalmazza a telekhányadot.
Megbízható kivitelező! Megtekinthető referencia házak.

Várható befejezés: 2026. év vége.

Műszaki tartalom:
- Leier 30-as N+F tégla falazat, 10 cm tégla válaszfalak
- Gealan típusú, 3 rétegű üveggel ellátott fehér hőszigetelt ablakok, Igényes, hőszigetelt bejárati ajtó
- Baumit Star EPS hőszigetelő rendszer 15 cm homlokzati szigeteléssel
- padlószerkezetbe 10 cm lépésálló hőszigetelés kerül
- fafödém 30 cm Rockwool Multirock ásványgyapot hőszigeteléssel. ,
- Terran Synus tetőcserép
- kondenzációs gázkazán minden helyiségben padlófűtéssel
- Klíma

Kulcsrakész befejezés igény szerint, kedvező áron!

Az ikerház másik L2 lakása nappali + 3 szoba, 91,5 m2 64.900.000 forint.

Egyéni megbeszélés alapján értékegyeztetéssel még választható. ( Napelem, klíma, hőszivattyú.)

Ajánlom mindazoknak akik Győr vonzáskörzetének egyik kiemelkedően fejlődő településén, kellemes környezetben szeretnék élni életüket.
CSOK nélkül is ILLETÉKMENTES!

Hitelre lenne szüksége? Irodánk bank független tanácsadással és díjmentes hitelügyintézéssel áll rendelkezésére. Babaváró, CSOK, piaci és támogatott hitelek. Megkeressük Önnek a legkedvezőbb megoldást.

További információkért hívjon bizalommal. Válasszuk ki az Önnek legmegfelelőbb lakást közösen!
Várom hívását! 20/2777237

Családi ház részletei

Ár: 54 900 000 Ft
Méret: 68 négyzetméter
Azonosító: 11611157
Irodai azonosító: 126091
Cím: Győrság
Telek: 289 négyzetméter
Ingatlan állapota: Átlagos
Jelleg: családi ház
Építőanyag: Kérdezzen rá a hirdetőtől »
Fűtés jellege: Cirkó
Kor: Új építésű
Egész szobák: 3

Egyéb jellemzők

  • Terasz

Így keressen családi házat négy egyszerű lépésben. Csupán 2 perc, kötelezettségek nélkül!

Szűkítse a családi házak
listáját
Válassza ki a megfelelő
családi házat
Írjon a hirdetőnek
Várjon a visszahívásra