Eladó családi ház Győrladamér 115 990 000 Ft

Leírás


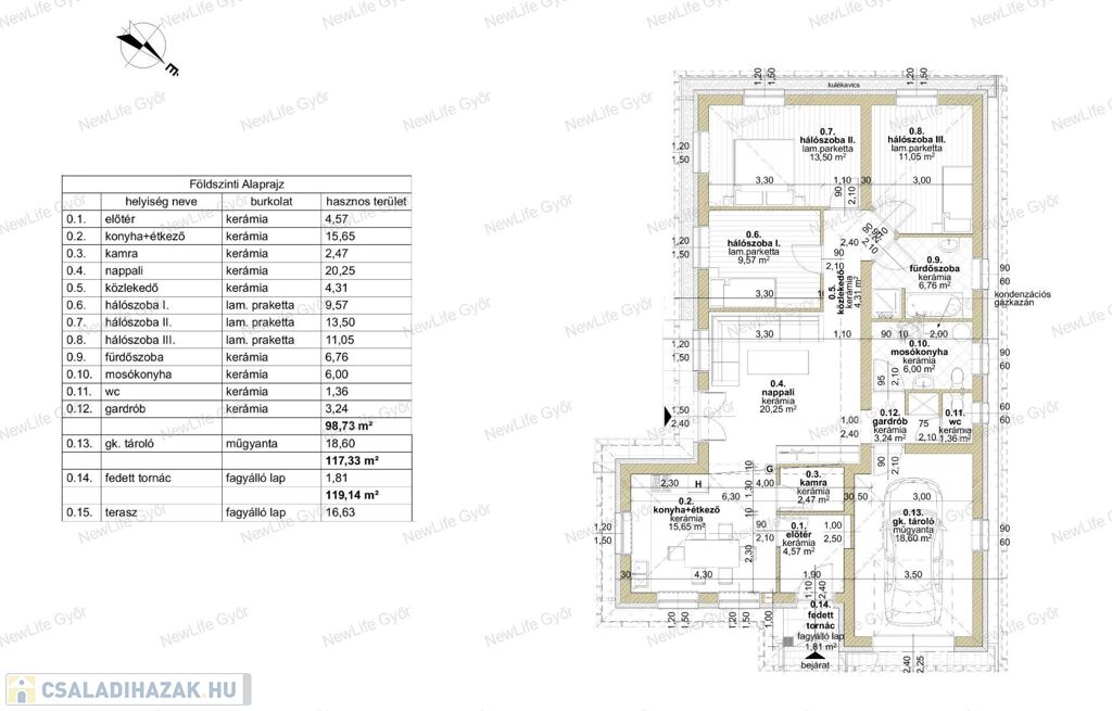
Győrladaméron, családi házas övezetben, megbízható, igényes kivitelezőtől kínálom megvételre ezt az 501 m2-es telekre épülő 127 m2 alapterületű 3 hálószoba+ nappali-étkező-konyhás újépítésű házat, 18nm-es garázzsal és 16m2-es terasszal.



A ház 30-as falazóelemekből épült, a homlokzatra 15 cm vastag hőszigetelő rendszer kerül. A tető fafödémes, 30cm-es födémszigeteléssel. A nyílászárók 3 rétegű hőszigetelt műanyag ablakok. A fűtését kondenzációs gázkazán látja majd el. Az ingatlan kulcsrakészen, hűtő-fűtő klímával kerül átadásra.

 

Ár: 115.990.000Ft kulcsrakész állapotban, ami tartalmazza a telekárat és a közművek díját is.

 

A telek mérete ideális – pont akkora, hogy szép és élhető legyen, mégis könnyen karbantartható.

 

Környezet és elhelyezkedés? Első osztályú!



Győrladamér a Szigetköz szívében található, csupán 10 km-re Győrtől, mégis messze a város zajától. A környéken lovarda, horgásztó, szabadstrand, és végtelen mennyiségű kirándulóhely vár. A Szigetköz tele van felfedeznivalóval!



A településen belül boltok, játszóterek, orvosi rendelő, posta, állatorvosi rendelő és egyéb szolgáltatók mind könnyedén elérhető – autó nélkül is!

 

A közeli kerékpárút összeköti a települést Győrrel és Mosonmagyaróvárral, így akár biciklivel is elintézhető a bevásárlás vagy a munkába járás.

 

Ez a ház ideális választás, ha:

✔️ egy élhető családi otthont keresel

✔️ fontos számodra a nyugodt környezet, de nem szeretnél elszigetelődni

✔️ szeretnél azonnal költözni, felújítási, vagy építkezési munkák nélkül

 

 

Az ingatlan szinte azonnal költözhető – ne maradj le róla!

 

Tökéletes választás családosoknak, természetkedvelőknek vagy akár azoknak is, akik csak végre hazatalálnának.



Ne halogasd! Hívjon, és nézze meg személyesen ezt a hangulatos otthont – akár hétvégén is szívesen megmutatom!



Vegye igénybe a 2026-ban igényelhető családtámogatási lehetőségeket amennyiben szükség van rá. Spóroljon meg milliókat az illetékfizetés elengedésével, valamint a kedvezményes hitel lehetőséggel!

 

Ügyfeleimnek az adásvétel teljes körű lebonyolítását vállalom.



Amennyiben a ház, vagy bármely a kínálatunkban található ingatlan felkeltette az érdeklődését, hívjon a megadott telefonszámon.

 

Ügyvédi szolgáltatással, díjmentes jogi tanácsadással, bank független Otthon Start, CSOK+, Babaváró hitel, kamattámogatott és piaci hitelek ügyintézésével állok rendelkezésükre.

 

Családi ház részletei

Ár: 115 990 000 Ft
Méret: 127 négyzetméter
Azonosító: 11600026
Irodai azonosító: 718800805
Telek: 501 négyzetméter
Ingatlan állapota: Kitűnő
Jelleg: családi ház
Építőanyag: Tégla
Komfort fokozat: Dupla komfort
Kor: Új építésű
Egész szobák: 4

Így keressen családi házat négy egyszerű lépésben. Csupán 2 perc, kötelezettségek nélkül!

Szűkítse a családi házak
listáját
Válassza ki a megfelelő
családi házat
Írjon a hirdetőnek
Várjon a visszahívásra