Eladó családi ház Győr 97 500 000 Ft

Leírás


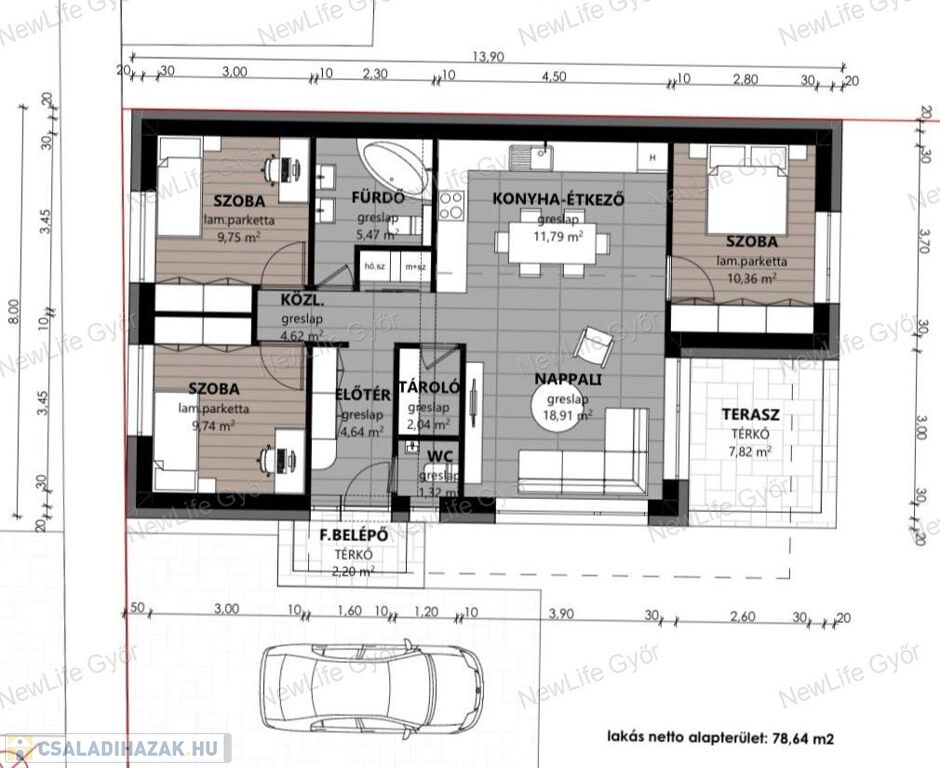
Győr egyik kedvelt, nyugodt részén ajánlom megvételre ezt a 78,64 m² hasznos alapterületű, modern elosztású családi házat.

 

Fontosabb műszaki adatok:

A ház 30NF falazóelemekből épül 12cm-es aljzatszigeteléssel, fafödémes (30cm födémszigetelés), a homlokzatra 20 cm vastag Drywit hőszigetelő rendszer kerül. Nyílászárói 3 rétegű hőszigetelt műanyag ablakok A fűtését és melegvíz ellátását hőszivattyú látja el padlófűtéses hőleadással.

 

Az ingatlan helyiségei:

-3 külön nyíló szoba

-amerikai konyhás nappali

-előszoba

-fürdőszoba

-külön WC

-tároló

 

A nappaliból közvetlen kijárat nyílik a teraszos kertkapcsolatra, amely tökéletes helyszíne lehet a pihenésnek és a családi kikapcsolódásnak.

 

Fontosabb jellemzők:

-modern, praktikus elrendezés

-világos, jól kihasználható terek

-közvetlen kertkapcsolat

-térkövezett kocsibeálló az udvarban

-csendes, nyugodt környezet

-kiváló infrastruktúra és megközelíthetőség

 

 

Várható átadás és az ingatlan ára:

 

Ár: 97.500.000Ft fűtéskész állapotban 2026 nyarán

(Igény esetén kulcsrakész befejezés is kérhető!)

 

 

Egy ingatlan, amely ideális otthon és remek befektetési lehetőség egyaránt.



További információkért, műszaki tartalomért és aktuális készültségi állapotért kérem, keressen bizalommal!

 

 

Lokáció

Az ingatlan Győr egyik csendes, mégis jól megközelíthető városrészében található. A környéket nyugodt lakókörnyezet jellemzi, ugyanakkor a mindennapi élethez szükséges szolgáltatások – üzletek, közlekedési lehetőségek – könnyen elérhetők (M85-ös elkerülő, M1-es autópálya felhajtó). Ideális választás azok számára, akik szeretnék ötvözni a városi kényelmet a nyugodt otthoni környezettel.

 

Ideális, ha:

✔️ egy praktikus, modern és könnyen fenntartható otthont keresel

✔️ fontos számodra a kertkapcsolat

✔️ csendes környezetben szeretnél élni, mégis közel a városhoz

✔️ befektetési lehetőséget keresel Győrben

 

Ügyfeleimnek az adásvétel teljes körű lebonyolítását vállalom.

 

Ha szívesen megnéznéd, hívj bizalommal akár hétvégén is!

06-30/156-6513

 

Az adatok a tulajdonosok által közölt információk alapján kerültek rögzítésre.

 

Ügyvédi szolgáltatással, díjmentes jogi tanácsadással, bank független Otthon Start, CSOK+, Babaváró hitel, kamattámogatott és piaci hitelek ügyintézésével állok rendelkezésükre.

Családi ház részletei

Ár: 97 500 000 Ft
Méret: 78 négyzetméter
Azonosító: 11607074
Irodai azonosító: 718800919
Telek: 301 négyzetméter
Ingatlan állapota: Kitűnő
Jelleg: családi ház
Építőanyag: Tégla
Kor: Új építésű
Egész szobák: 4

Így keressen családi házat négy egyszerű lépésben. Csupán 2 perc, kötelezettségek nélkül!

Szűkítse a családi házak
listáját
Válassza ki a megfelelő
családi házat
Írjon a hirdetőnek
Várjon a visszahívásra