Eladó családi ház Győr 94 700 000 Ft

Leírás

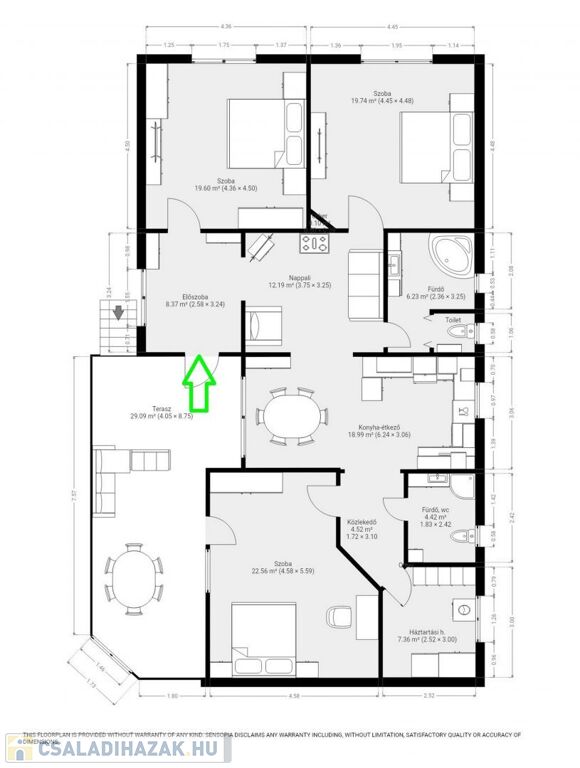
Győr-Gyirmóton, csendes utcában eladó egy 517 m²-es telken fekvő, 118 m²-es, nappali + 3 szobás, két fürdőszobás családi ház.
A házhoz tartozik egy 29 m²-es terasz, 18 m²-es garázs, 15 m²-es könnyűszerkezetes gépkocsibeálló, valamint egy 31 m²-es tároló.
Felújított gépészet, klíma, vízteres kandalló, riasztó rendszer!
Ár: 94.700.000 Ft
Érd.: 06-20/9-966-669

Győr egyik kedvelt városrészében, Gyirmóton, csendes, beépült utcában kínálom megvételre ezt az 517 m²-es telken elhelyezkedő, 118 m² lakóterületű, kiváló elosztású családi házat.

Az ingatlan nappali–étkező–konyha + 3 szobás kialakítású, emellett két fürdőszobával rendelkezik, így ideális választás akár családok számára is.
A házhoz tartozik:
29 m²-es terasz
18 m²-es garázs
15 m²-es könnyűszerkezetes gépkocsibeálló
31 m²-es tároló
Műszaki tartalom:
Az ingatlan két ütemben épült:
az első rész a 70-es években
majd 2001-ben teljes felújításon és bővítésen esett át
A felújítás során:
új tetőszerkezet és födémszigetelés készült
teljes gépészet (víz, szennyvíz, fűtés, elektromos hálózat) megújult
burkolatok és konyhabútor cseréje is megtörtént
Fűtés és komfort:
2021-ben cserélt kombi gázkazán
alternatív megoldásként 16 kW-os vízteres kandalló
2022-ben telepített hűtő-fűtő klíma
műanyag nyílászárók (2 rétegű üvegezés)
6 cm-es Dryvit homlokzati szigetelés
riasztórendszer
A ház praktikus elrendezésének, jó állapotának és a többféle fűtési megoldásnak köszönhetően kényelmes, fenntartható otthont biztosít új tulajdonosának.
Az alaprajz a fotók között megtekinthető.
Ár: 94.700.000 Ft
Érd.: 06-20/9-966-669

Családi ház részletei

Ár: 94 700 000 Ft
Méret: 148 négyzetméter
Azonosító: 11611598
Irodai azonosító: 126145
Cím: Győr
Telek: 517 négyzetméter
Ingatlan állapota:
Jelleg: családi ház
Építőanyag: Kérdezzen rá a hirdetőtől »
Fűtés jellege: Cirkó
Egész szobák: 4

Egyéb jellemzők

  • Terasz

Így keressen családi házat négy egyszerű lépésben. Csupán 2 perc, kötelezettségek nélkül!

Szűkítse a családi házak
listáját
Válassza ki a megfelelő
családi házat
Írjon a hirdetőnek
Várjon a visszahívásra