Eladó családi ház Győr 249 000 000 Ft

Leírás

A klasszikus értékek és a modern kényelem találkozása egy időtlen eleganciájú otthonban. Minden négyzetmétere a gondosságot, a minőséget és a nyugalmat sugározza:
35 M2 DUPLA GARÁZS, 45 M2 UDVARI KÖZMŰVES ÉPÜLET, FEDETT-FŰTÖTT MEDENCE, FEDETT TERASZ, 145 M2 PINCESZINTI EXCLUSIVE ÉLETTÉR, CSALÁDI SZAUNA, MOZISZOBA, ALTERNATÍV FŰTÉS, KAMERÁS RIASZTÓRENDSZER...

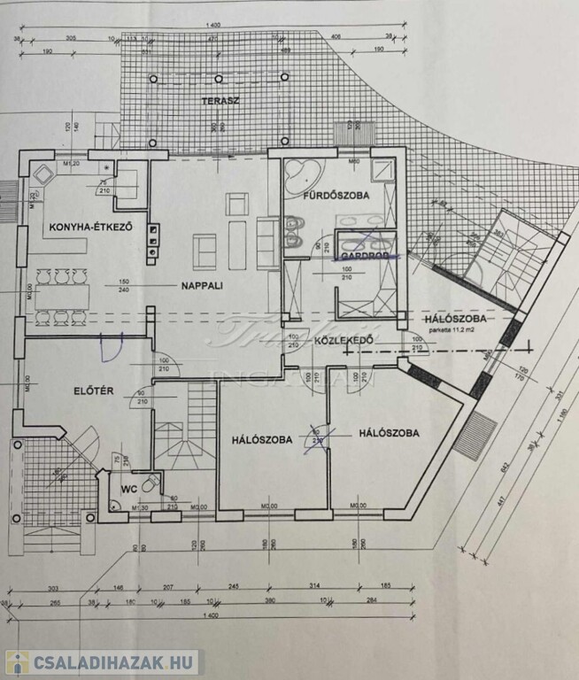
Győr-Kisbácsán nyugodt környezetben, 1331 m2-es intim-parkosított telken eladó egy 2000-ben kimagasló minőségben megépített, igényesen karbantartott, minden részletében átgondolt 175 m2 lakóterű, nappali és 3 szobás, étkező-konyhás klimatizált családi ház, amely kényelmet, biztonságot és luxust kínál egyben. Az épület alatti 145 m2-es pince kikapcsolódásra, sportolásra, hobbi célokra, rendezvények lebonyolítására kíválóan alkalmas.

A ház kamerás riasztórendszerrel és ipari árammal felszerelt. A kertben automata öntözőrendszer és fúrt kút gondoskodik a zöld környezet könnyű fenntartásáról. A nagy térköves bejáró egy 35 m²-es dupla garázshoz vezet, valamint a telken található egy 45 m²-es, közművesített zárt pavilon, amely akár vendégházként vagy külön lakrészként is használható.

A hátsó udvar igazi kikapcsolódási központ: fedett, fűtött, 8×4 méteres medence várja a pihenni vágyókat, távirányítós kapuk, fedett terasz és parkosított környezet teszik teljessé a kényelmet.

A fűtésről kondenzációs gázkazán ill. villanykazán gondoskodik radiátoros hőleadással, a nappaliban pedig egy hangulatos kandalló teremti meg az otthon melegét. A márvány és tömörfa burkolatok, valamint a tömörfa beltéri ajtók a minőségi kivitelezésről árulkodnak. A Miele beépített gépekkel felszerelt konyha a legmagasabb elvárásoknak is megfelel / sütő, főzőlap, mikro, gőzpároló, kávégép, szagelszívó, ételmelegítő fiók, mosogatógép, borhűtő /Az ingatlanhoz tartozik egy 145 m²-es, 2,9 méter belmagasságú pince, amely a lakótérből közvetlenül megközelíthető. Itt szauna, WC, moziszoba, billiárd és több pihenésre kialakított helyiség található – tökéletes tér a kikapcsolódásra vagy baráti összejövetelekre.

Az ingatlan főfalai 38-as téglából épültek, 10 cm-es hőszigeteléssel ellátva, a tetőn hódfarkú agyagcserép biztosít időtálló megoldást. A külső műanyag nyílászárók egyedileg készültek, redőnnyel és szúnyoghálóval szerelve, így minden évszakban komfortos lakóteret nyújtanak.

Az ingatlan tehermentes, igény szerint bútorzattal együtt is eladó.

Ez a ház nem csupán egy otthon, hanem egy életstílus – ahol minden részlet a kényelmet, a minőséget és a harmóniát szolgálja.

A TRADÍCIÓ INGATLANIRODA AZ ALÁBBI SZOLGÁLTATÁSOKKAL ÁLL AZ ÜGYFELEK RENDELKEZÉSÉRE:
- LAKOSSÁGI ÉS IPARI INGATLANOK ÉRTÉKESÍTÉSE ÉS BÉRBEADÁSA
- DÍJMENTES PÉNZÜGYI TANÁCSADÁS, HITELÜGYINTÉZÉS, LAKÁSHITELEK, ÁLLAMI TÁMOGATÁSOK / CSOK, ÁFA / , BABAVÁRÓ HITEL, SZEMÉLYI KÖLCSÖN, LAKÁSTAKARÉK, BIZTOSÍTÁS
- JOGI HÁTTÉR, ADÁSVÉTELI SZERZŐDÉSEK KÉSZÍTÉSE KEDVEZŐ FELTÉTELEKKEL
- ENERGETIKAI TANÚSÍTVÁNY KÉSZÍTÉSE
- INGATLAN ÉRTÉKBECSLÉS
AMENNYIBEN GYŐRI, ILL. GYŐR KÖRNYÉKI, ELADÓ VAGY KIADÓ INGATLANNAL RENDELKEZIK, KÉREM HÍVJON!

Családi ház részletei

Ár: 249 000 000 Ft
Méret: 175 négyzetméter
Azonosító: 11579285
Irodai azonosító: 123194
Cím: Győr
Telek: 1331 négyzetméter
Ingatlan állapota: Kitűnő
Jelleg: családi ház
Építőanyag: Kérdezzen rá a hirdetőtől »
Fűtés jellege: Cirkó
Egész szobák: 6

Egyéb jellemzők

  • Terasz

Így keressen családi házat négy egyszerű lépésben. Csupán 2 perc, kötelezettségek nélkül!

Szűkítse a családi házak
listáját
Válassza ki a megfelelő
családi házat
Írjon a hirdetőnek
Várjon a visszahívásra