Eladó családi ház Győr 189 000 000 Ft

Leírás


Új építésű házak Pinnyéd új utcájában Pinnyéd csendes, újonnan kialakított és közművesített zsákutcájában új építésű luxus házak eladók.

A házak a legmagasabb minőséget képviselő anyagokkal, a mai modern technológiák által kerül kivitelezésre.

A kiváló hő és hangszigetelést 3 rétegű műanyag ablakok és a 20 cm vastagságú homlokzatszigetelés fogja biztosítani, amivel a Porotherm falazat lesz ellátva.

A fűtésről és hűtésről hőszivattyú gondoskodik, a hőleadás padlófűtéssel, a hűtés pedig mennyezethűtéssel történik.

Ezek kombinációja egy teljeskörű, modern klímamegoldást nyújt, amelyek hosszútávon garantálják a kényelmet és az alacsony üzemeltetési költségeket.

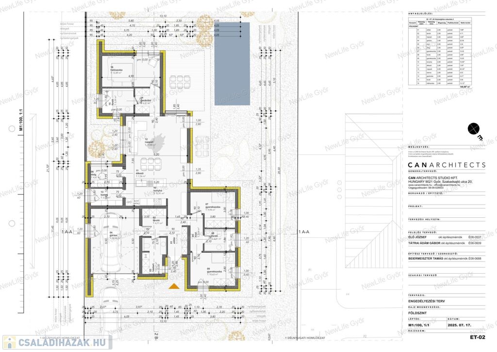
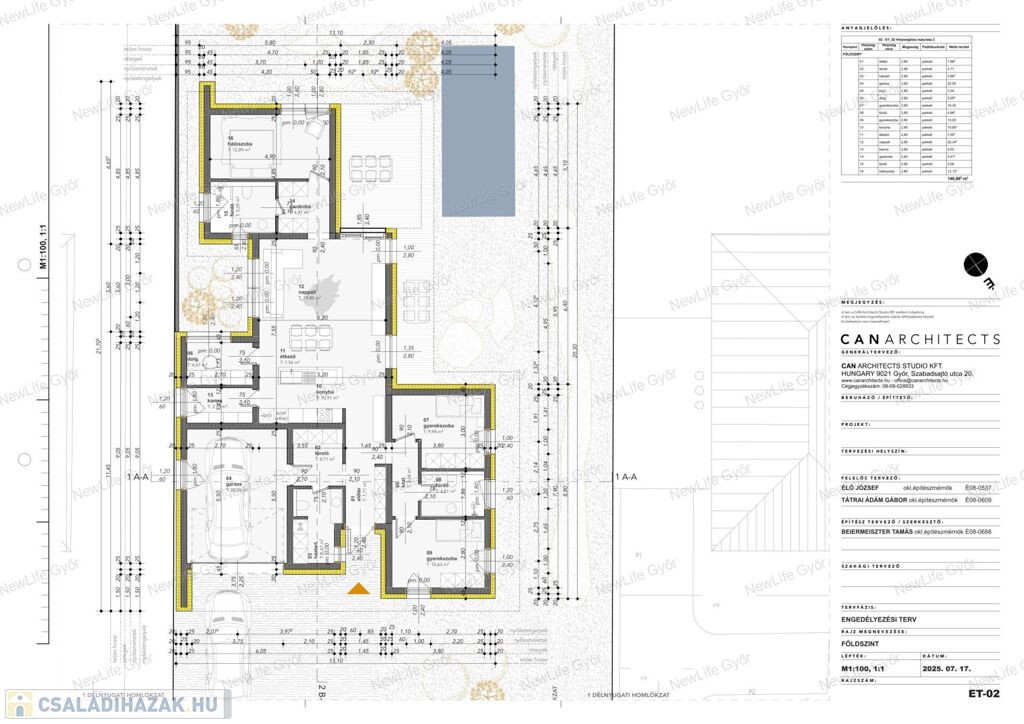
Elosztása:

Előtér 7,88 nm

Tároló 4,71 nm

Háztartási helyiség 5,67 nm

Garázs 22,55 nm

Közlekedő 3,34 nm

Félszoba 5,05 nm

Szoba1 10,32 nm

Fürdőszoba 4,96 nm

Szoba2 10,93 nm

Konyha 10,9 nm

Étkező 7,56 nm

Nappali 20,3 nm

Kamra 4,03 nm

Gardrób 4,41 nm

Fürdőszoba 5,09 nm

Szoba3 13,12 nm

Összesen: nettó: 140,88 nm

Az ingatlanhoz tartozik továbbá egy fedett terasz, valamint medence, ami a hőszivattyú segítségével fűthető.

Napelemes rendszer kérhető, amennyiben a leendő tulajdonos arra igényt tart.

A hirdetésben szereplő tervdokumentáció tájékoztató jellegű, a ház paramétereitől és gépészeti felszereltségétől el lehet térni, így természetesen az ár is változhat.

Az ár emeltszintű fűtéskész állapotra vonatkozik, de igény esetén kulcsrakész befejezés is kérhető.

Győr-Pinnyéd valóban egy kifejezetten kedvelt, családias kertváros, amely a Rábca bal partján fekszik. Népszerűségét elsősorban a természetközeli elhelyezkedésének köszönheti.

Amennyiben szeretne egy exkluzív, prémium minőségű családi ház tulajdonosa lenni, mindezt egy idilli környezetben, keressen bizalommal!

Még 8 db házra van lehetőség előszerződni, ne maradjon le!

Családi ház részletei

Ár: 189 000 000 Ft
Méret: 141 négyzetméter
Azonosító: 11600506
Irodai azonosító: 718800807
Telek: 650 négyzetméter
Ingatlan állapota: Kitűnő
Jelleg: családi ház
Építőanyag: Tégla
Komfort fokozat: Luxus komfort
Kor: Új építésű
Egész szobák: 4
Fél szobák: 1

Így keressen családi házat négy egyszerű lépésben. Csupán 2 perc, kötelezettségek nélkül!

Szűkítse a családi házak
listáját
Válassza ki a megfelelő
családi házat
Írjon a hirdetőnek
Várjon a visszahívásra