Eladó családi ház Győr, Nagybácsa, 129 500 000 Ft

Leírás

Győrben keresi új otthonát?
Szeretném felhívni figyelmét, erre a remek elrendezésű, nappali+ 3 szobás, nagy teraszos család házra Bácsa egyik csendes kis utcájában, ahol a nyüzsgő napok után kipihenheti magát, mégis könnyen bekapcsolódhat a városi forgatagba.

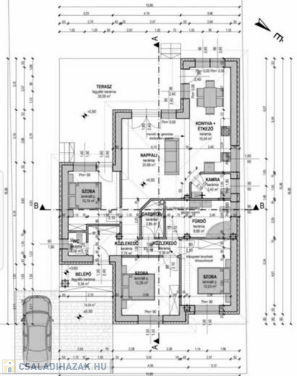
AZ INGATLAN: N 104 nm + 34 nm terasz.
Telek területe: 519 nm.
ELOSZTÁSA: közlekedő, nappali-étkező-konyha, kamra, 3 szoba, gardróbszoba, fürdőszoba, terasz.

Az ingatlan 2018-ban épült 38-as Porotherm téglából+ 15 cm külső szigeteléssel, a födémen 35 cm szigeteléssel.

A nyílászárók 3 rétegűek, 6 légkamrásak, így a rezsiköltség rendkívül alacsony. A gondos tervezésnek köszönhetően, minden napszakban éri napsütés az ingatlant. Reggel a hálószobák, majd a déli oldalon a szülői háló, utána pedig estig a nappali és az étkező úszik fényárban. A nappaliból és a szülői hálóból is megközelíthető a 34 nm-es L alakú tágas, jól kihasználható terasz.
A konyha mellett helyet kapott a kamra/spejz is, valamint egy gardróbszoba is kialakításra került, mely a közlekedőből nyílik és rengeteg holmit képes elnyelni.
A szülői hálóban található gardróbszekrény egy kis helyiséget rejt, ahol igény szerint WC kézmosó könnyedén kialakítható.
Mindegyik szoba tágas, nagy méretű jól bútorozható.

NYÍLÁSZÁRÓK:
3 rétegű műanyagok, külső felületén antracit, belül fehérek, bukó-nyíló kivitelben.
Aluredőnyökkel, szúnyoghálóval felszereltek, a nappali-és az étkező ablakai automata mozgatásúak.

FŰTÉS:
Saunier Duval gázkazánnal történik, a hőleadás padlófűtéssel, a szobákban pedig radiátorokkal.
A tágas nappaliban található egy fa tüzeléses kandalló is, mely nemcsak látványként használható.
A nappaliban található egy 3,5 KW teljesítményű hűtő-fűtő klíma, mely egy külső rendszerről is irányítható.

Az 519 nm-es telek 3 oldalról körbe kerített, füves, szépen gondozott. A ház mögött található egy 17 nm nagyságú, faház/ tároló. Nyáron a medence nem csak hideg, meleg vízzel is feltölthető. A terasz tavasztól őszig jól kihasználható, külső dugaljakról, hangulatvilágításról is gondoskodtak a Tulajdonosok.
A bejárat mellett murvás gépkocsibeálló került kialakításra, ahol több gépkocsi is kényelmesen elfér.
Az ingatlan riasztóval védett.

Szeretné megtekinteni? Telefonáljon!

Személyre szabott, bank-semleges hiteltanácsadással várom Ügyfeleimet!
Vajda Zsuzsa 36/202143387

Családi ház részletei

Ár: 129 500 000 Ft
Méret: 104 négyzetméter
Azonosító: 11583340
Városrész: Nagybácsa
Telek: 519 négyzetméter
Ingatlan állapota: Kitűnő
Jelleg: családi ház
Építőanyag: Tégla
Fűtés jellege: Cirkó
Fűtés módja: Gáz
Komfort fokozat: Összkomfort
Kor: 6-10 éves
Elhelyezkedés: Udvari
Szintek száma: Földszintes
Bútorozott: Részben bútorozott
Egész szobák: 4
Nappalik: 1

Egyéb jellemzők

  • Beépíthető tetőtér
  • Csatorna
  • Garázs
  • Kábel TV
  • Melléképület
  • Padlás
  • Pince
  • Terasz

Így keressen családi házat négy egyszerű lépésben. Csupán 2 perc, kötelezettségek nélkül!

Szűkítse a családi házak
listáját
Válassza ki a megfelelő
családi házat
Írjon a hirdetőnek
Várjon a visszahívásra