Eladó családi ház Gyöngyöshalász 59 900 000 Ft

Leírás

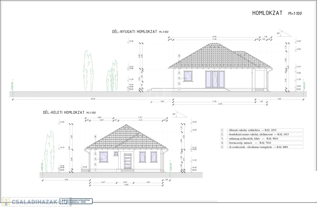
Gyöngyöshalászon a frissen parcellázott övezetben a Toldi utcával párhuzamos utcában, 800m2-es telken 3 szoba + nappalis, amerikai konyhás, nettó 94,5 m2 hasznos lakótérrel rendelkező, új építésű önálló családi ház eladó.

A nyitóképen látható ingatlant a kivitelező azonos tervek alapján építette, azonban ez a ház már új tulajdonosra talált. A kivitelező több, ugyanezen terv szerint megvalósult ingatlant is épített Gyöngyöshalászon, melyeket referenciaként szívesen megmutatunk.

Csok plusz, otthon start elérhető!

Az ingatlan 30-as Nútféderes tégla falazóelemből épül, fa födémmel.
A tető héjazata antracit betoncserép lesz, a homlokzatok 10cm Grafitos EPS, a padló 10cm Austrotherm AT-N100-as, a vízszintes födém 30cm Ásványgyapot szigeteléssel lesz ellátva.

Hat légkamrás 3 rétegű evegekkel szerelt nyílászárók kerülnek beépítésre.

A fűtést 10kw-os monoblockos hőszivattyús rendszer fogja ellátni, padlófűtéssel. A használati melegvízről hőszivattyús bojler gondoskodik.


A műszaki tartalom választható az alábbi költségkereten belül:

-hidegburkolat:4000.- Ft./m2-ig
-melegburkolat:4000.- Ft./m2-ig
-csaptelepek:25.000.- Ft./db
-kád vagy zuhany: 50.000.- Ft.
-beltéri ajtók:60.000.- Ft./db


Elektromos kiépítés:
-Konnektorok szobákban: 3 db
-Konnektorok nappaliban 4db + internet és kábeltv kiállás
-Konnektorok konyhában: 6db
-Világítás helyiségenként 1-1 db
-Kábeltévé: Előkészítés


Magasabb árú tatalom is választható a különbség finanszírozásával.

Riasztó előkészítés és kapu mozgató elektronika előkészítés is készül.

Kérésre szívesen küldünk komplett tervdokumentációt, műszaki leírást.


Várható átadás 2026 második negyedév.

INGYENES hitel tanácsadás, CSOK Plusz ügyintézés!
BANKFÜGGETLEN hitelcentrumunk az összes elérhető bank és hitelintézet ajánlatát versenyezteti az Ön kedvéért, ráadásul DÍJMENTESEN.

- Egyedi, bankfiókban nem elérhető kamat- és díjkedvezmények
- Hitelképesség vizsgálat
- Idő, energia és pénz megtakarítás
- Teljes hivatali ügyintézés

Amennyiben hirdetésem felkeltette az érdeklődését vagy egyéb információra van szüksége hívjon bizalommal!

Családi ház részletei

Ár: 59 900 000 Ft
Méret: 95 négyzetméter
Azonosító: 11609732
Irodai azonosító: 379856
Cím: Toldi utca
Telek: 800 négyzetméter
Ingatlan állapota: Kitűnő
Jelleg: családi ház
Építőanyag: Tégla
Fűtés jellege: Geotermikus
Fűtés módja: Hőszivattyú
Komfort fokozat: Összkomfort
Kor: Új építésű
Szintek száma: Földszintes
Egész szobák: 4

Egyéb jellemzők

  • Csatorna
  • Garázs
  • Pince
  • Terasz

Térkép


Így keressen családi házat négy egyszerű lépésben. Csupán 2 perc, kötelezettségek nélkül!

Szűkítse a családi házak
listáját
Válassza ki a megfelelő
családi házat
Írjon a hirdetőnek
Várjon a visszahívásra