Eladó családi ház Gyömrő 109 900 000 Ft

Leírás

Gyömrőn a kastélydomb lakóparkban csendes, nyugodt környezetben, eladásra kínálok egy nappali + 2 hálószobás, Gardróbos, teraszos, új építésű, hőszivattyús ikerházi lakást, amely a korszerű technológia és a prémium kivitelezés tökéletes ötvözete.


A lakások 2 x Porotherm 30-as téglafallal kapcsolódik közte 5 cm-es szigeteléssel, így a lakások közt az áthallás kizárt!!!

Az építkezés folyamatosan halad, így ön végig követheti épülő ingatlanja építését, referenciaházak a közelben megtekinthetők.

Ez az otthon a legmodernebb technológiával épült, levegő-víz hőszivattyúval, amely garantálja az alacsony fenntartási költségeket, padlófűtéssel maximalizálja a komfortérzetet.

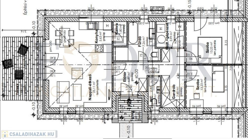
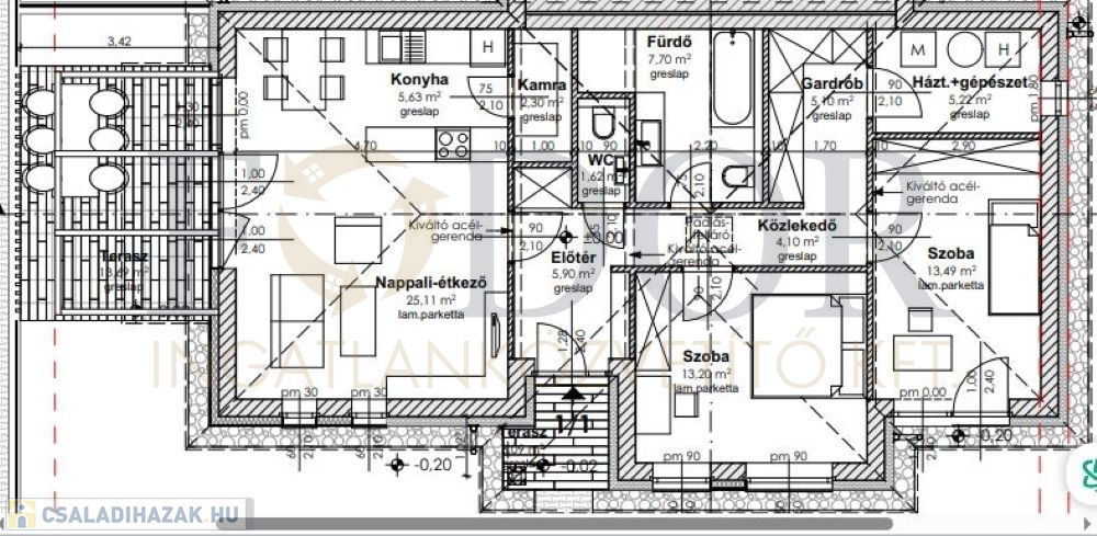
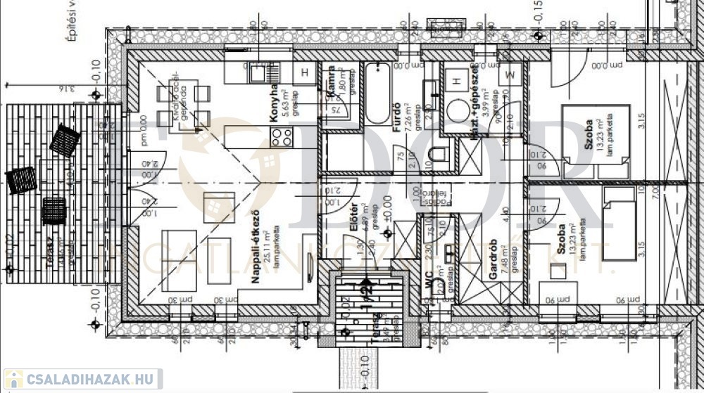
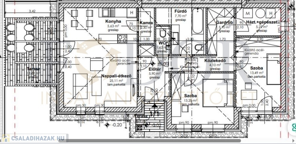
A lakások élhető, világos terekkel rendelkeznek. Az amerikai konyhás nappali mellett kettő hálószoba található, 1 fürdőszoba Wc-vel, külön Wc, valamint egy praktikus kamra is helyet kapott a házban.

Az ikerház egymás mögött helyezkedik el egy 1290 m²-es telken, amely kerítéssel megosztott, így mindkét lakáshoz saját, privát kert tartozik.

A lakások Társasházi alapító okirattal kerülnek átadásra.

A hirdetésben feltüntetett alaprajz a leendő vásárló igényei szerint módosítható: akár három szobás, nappali-konyha elrendezés is kialakítható a kérésére!


Az ingatlan paraméterei:
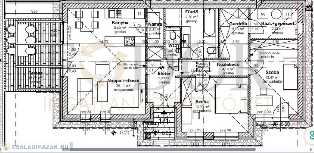
1. lakás (utcafront felőli) Elrendezését lásd az alaprajzon!!!
• Alapterület: 89.5 m²
• Telekterület: 155 m²
• Terasz: 18.49 m²
• Vételár: 104.900.000 MFt

Az ingatlan paraméterei:
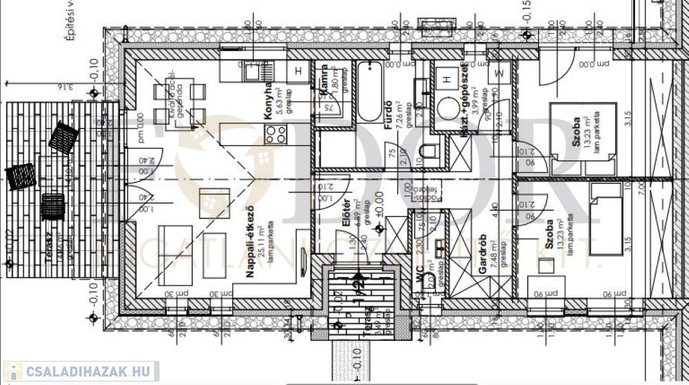
2. lakás (udvar felőli) Elrendezését lásd az alaprajzon!!!
• Alapterület: 86.7 m²
• Telekterület: 262 m²
• Terasz: 18.49 m²
• Vételár: 109.900.000 MFt



Műszaki tartalom:
• A fűtés és a meleg víz biztosítása Midea Concept 8 KW-os levegő-víz hőszivattyúval (beépített 190 literes HMV tartállyal) történik.

• 30 cm-as főfalak 16 cm szigeteléssel
• Hőszigetelt, fehér, 3 rétegű üvegezésű nyílászárók elektromos redőnnyel
• Vasbeton sávalap, fafödém 30 cm-es kőzetgyapot szigeteléssel.

További extrák:
• Elektromos kapu + motor az árban
• Kerítéssel leválasztott, privát telekterület
• Külső ablakpárkányok mészkőből készülnek


Elhelyezkedés és környezet:
Az ingatlan egy csendes mellékutcában található, ugyanakkor minden fontos kiszolgáló egység – iskola, óvoda, piac és tömegközlekedés – pár perc sétára elérhető.

Az ingatlan kulcsrakész állapotban kerül átadásra.

Várható átadás: 2026 2.-3. negyedév.

Megbízható, precíz kivitelező által épített, exkluzív otthon, amely minden igényt kielégít.

Hívjon most a részletekért, és tekintse meg személyesen!

TANÁCSADÁSSAL, SZÁMOS BANK AJÁNLATÁVAL ÉS AZ ÚJ CSOK PLUSZ FOLYÓSÍTÁSÁVAL VÁRJA ÜGYFELEIT!

Családi ház részletei

Ár: 109 900 000 Ft
Méret: 87 négyzetméter
Azonosító: 11569289
Irodai azonosító: 343050
Telek: 155 négyzetméter
Ingatlan állapota: Kitűnő
Jelleg: ikerház
Építőanyag: Tégla
Komfort fokozat: Összkomfort
Kor: Új építésű
Egész szobák: 3

Egyéb jellemzők

  • Terasz

Így keressen családi házat négy egyszerű lépésben. Csupán 2 perc, kötelezettségek nélkül!

Szűkítse a családi házak
listáját
Válassza ki a megfelelő
családi házat
Írjon a hirdetőnek
Várjon a visszahívásra