Eladó családi ház Gyermely 29 900 000 Ft

Leírás

Eladó családi ház panorámás telken!

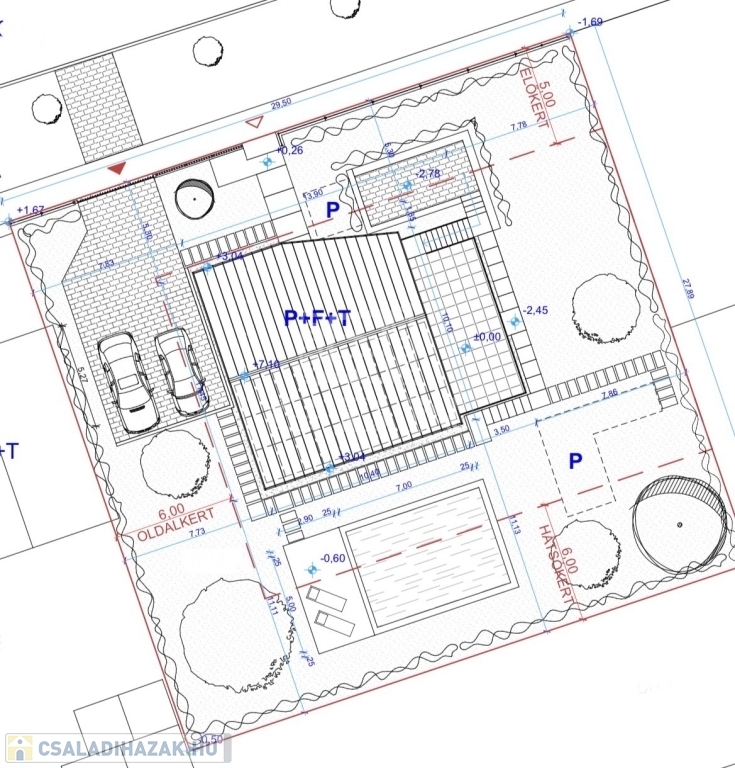
Megvételre kínálunk Budapesttől 40 km távolságra, M1-es autópálya zsámbéki leágazásától 10 km-re, a nyugalom és béke érzését nyújtó Gyermely település központjában egy nettó 125 nm alapterületű, építés alatt álló, önálló családi házat 822 nm-es telken.

A munkálatokat 15 évvel ezelőtt megkezdték, az új tervek 2 éve készültek, aminek már elkezdték a munkálatait, családi okokból nem fejezték be, a terveket mellékeltük a hirdetésben.

Amivel segítjük az Ön ingatlan vásárlását:
- ingyenes hitelügyintézés (CSOK és Babaváró és egyéb hitel
ügyintézése is)
- jogi háttér,
- földhivatali ügyintézés,
- energetikai tanúsítvány ügyintézése,
- a vevő számára ingyenes az ingatlanközvetítés.

Várom szíves megkeresését.

Családi ház részletei

Ár: 29 900 000 Ft
Méret: 125 négyzetméter
Azonosító: 11601020
Irodai azonosító: 392888
Cím: Központban
Telek: 822 négyzetméter
Ingatlan állapota: Épülő
Jelleg: családi ház
Építőanyag: Tégla
Fűtés jellege: Egyéb
Komfort fokozat: Összkomfort
Kor: 1-5 éves
Szintek száma: 1 szint
Egész szobák: 5
Fél szobák: 2

Egyéb jellemzők

  • Csatorna
  • Garázs
  • Pince
  • Terasz

Térkép


Így keressen családi házat négy egyszerű lépésben. Csupán 2 perc, kötelezettségek nélkül!

Szűkítse a családi házak
listáját
Válassza ki a megfelelő
családi házat
Írjon a hirdetőnek
Várjon a visszahívásra