Eladó családi ház Gyenesdiás 675 000 000 Ft

Leírás


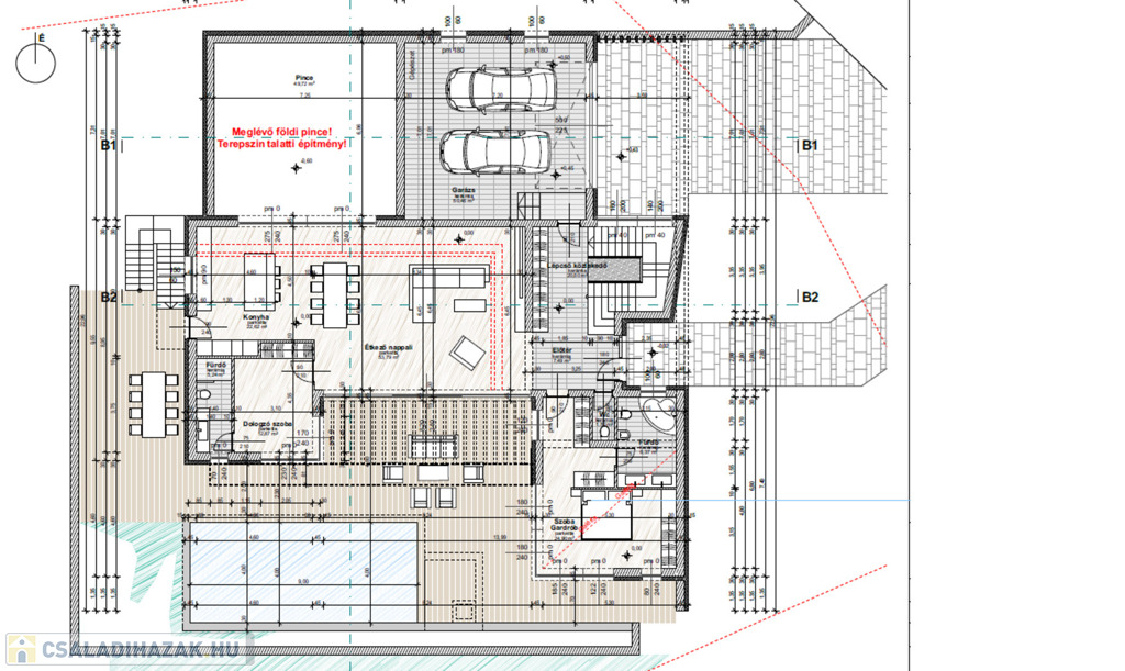
Emeleti elhelyezkedés: Földszinten Épület emeleteinek száma: 2 Állapota: átlagos Komfort besorolása: Luxus komfortos Építési éve: 2026 Alapterülete: 353 m2 Telekterülete: 1 m2 Szobák száma: 4szoba Közművek: Gáz, Víz, Villany, Csatorna Vízellátás: Vezetékes víz, Közelben Áramellátás: Telekhatáron, Közelben Homlokzat állapot: átlagos Építési mód: Tégla Parkolási lehetőség: Garázsban Napelem: Van Energetikai besorolás: Nincs adat

Extrák: Különnyíló szobák, Étkező, Pince, Energetikai tanúsítvány
Eladó exkluzív balatoni luxusvilla páratlan panorámával

Képzelje el, hogy minden nap a Balaton lélegzetelállító látványára ébred ebben a modern, luxus színvonalú otthonban.

A villa 4 tágas hálószobát kínál, hatalmas üvegfelületekkel, amelyek természetes fényárban fürdetik a belső tereket. A napfényes teraszról vagy a saját, kristálytiszta vizű medencéből gyönyörködhet a tó végtelen kékségében.

A ház különlegessége a privát borospince exkluzív borélményekhez, valamint a szauna, amely a teljes feltöltődést biztosítja. A kényelmes kocsibeálló gondoskodik arról, hogy autói biztonságban legyenek.

Ez az ingatlan nem csupán egy ház – hanem egy életstílus, melyet kevesek engedhetnek meg maguknak. A gondosan tervezett kert és a prémium építészeti megoldások minden részlete a tökéletes harmóniát és eleganciát tükrözi.

Ha Ön a nyugalom, a luxus és a Balaton legszebb panorámájának szerelmese, ne keressen tovább – ez a villa Önre vár!

További információért keressen vagy írjon
0620441-5764
malics.mate@kingcity.hu

A képek látványtervek! Az alaprajz tájékoztató jellegű, építés alatt van még az ingatlan további kérdés esetén keressen bizalommal!

Családi ház részletei

Ár: 675 000 000 Ft
Méret: 353 négyzetméter
Azonosító: 11588060
Cím: Bem József utca
Telek: 1 négyzetméter
Ingatlan állapota: Átlagos
Jelleg: családi ház
Építőanyag: Tégla
Komfort fokozat: Luxus komfort
Kor: 1-5 éves
Szintek száma: Földszintes
Egész szobák: 4

Egyéb jellemzők

  • Csatorna
  • Garázs

Térkép


Így keressen családi házat négy egyszerű lépésben. Csupán 2 perc, kötelezettségek nélkül!

Szűkítse a családi házak
listáját
Válassza ki a megfelelő
családi házat
Írjon a hirdetőnek
Várjon a visszahívásra