Eladó családi ház Gyál 95 900 000 Ft

Leírás

Eladó egy új építésű, különálló, földszintes családi ház Gyál zöldövezeti részén, amely ideális választás mindazok számára, akik csendes és barátságos környezetben keresik álomotthonukat.

Ez a modern ingatlan két kényelmes hálószobával rendelkezik, és a tágas, saját kertje mellett egy fedett gépkocsibeállót is magában foglal, biztosítva a kényelmet és a praktikumot a mindennapokban.

Főbb jellemzők:
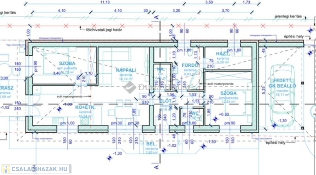
1. Nettó hasznos lakótér: 80,5 négyzetméter, amely elegendő teret biztosít a család mindennapi életéhez.
2. Fedett gépkocsibeálló: 18,11 négyzetméter a biztonságos és kényelmes parkoláshoz, valamint egy 15,99 négyzetméteres terasz, amely ideális a családi és baráti összejövetelekhez.
3. Telek mérete: 435 négyzetméter, ami bőséges helyet kínál a szabadidős tevékenységekhez.

Műszaki jellemzők:
- Az épület főfalazata 30 cm-es Porotherm téglából készült, amely kiváló hőszigetelő képességet biztosít.
- A ház homlokzatán 15 cm-es hőszigetelés található, míg a födém 30 cm-es szigeteléssel rendelkezik, ami hozzájárul az energiahatékony fenntartáshoz.

Az építkezés várhatóan 2026 nyarán fejeződik be, így még lehetőség van az egyéni igények szerinti hideg- és melegburkolatok, ajtók, valamint szaniterek kiválasztására, hogy a ház minden részlete megfeleljen az Ön ízlésének.

Ne hagyja ki ezt a remek lehetőséget, hogy egy modern és környezetbarát otthon tulajdonosa legyen Gyál hangulatos zöldövezetében.

A közelben számos kényelmi lehetőség elérhető, mint például sportpályák, iskolák és bevásárlóközpontok, amelyek mind hozzájárulnak a mindennapi élet kényelméhez. Emellett Budapest csupán 10 perc autóútra található, így a főváros nyújtotta lehetőségek is könnyedén elérhetők.

Forduljon hozzám bizalommal a további részletekért és a megtekintés időpontjának egyeztetéséért!

Családi ház részletei

Ár: 95 900 000 Ft
Méret: 81 négyzetméter
Azonosító: 11548580
Irodai azonosító: HZ074985-4980524
Cím: 81 nm-es ház eladó Gyál
Telek: 435 négyzetméter
Ingatlan állapota: Épülő
Jelleg: családi ház
Építőanyag: Tégla
Fűtés jellege: Villany
Fűtés módja: Hőszivattyú
Kor: Új építésű
Szintek száma: Földszintes
Egész szobák: 3

Térkép


Így keressen családi házat négy egyszerű lépésben. Csupán 2 perc, kötelezettségek nélkül!

Szűkítse a családi házak
listáját
Válassza ki a megfelelő
családi házat
Írjon a hirdetőnek
Várjon a visszahívásra