Eladó családi ház Gyál 95 900 000 Ft

Leírás

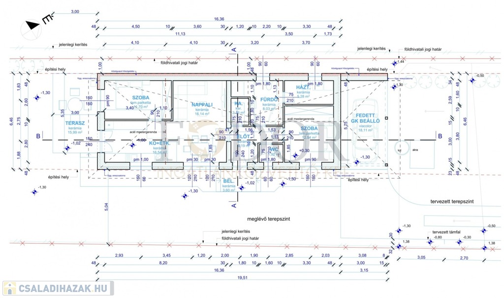
Új építésű földszintes családi házak eladók Gyál egyik legcsendesebb utcájában – várható átadás 2026-ban!
Gyál csendes, kertvárosi részén kínálunk megvételre két különálló, modern stílusú, Amerikai-konyhás nappali + 2 hálószobás földszintes családi házat, saját kerttel és fedett gépkocsibeállóval. Tökéletes választás lehet családoknak, pároknak, de akár befektetésnek is.
1. Utca felőli épület jellemzői:
• Összterület: 126,18 m²
• Nettó hasznos lakótér: 80,41m²
• Tartozik hozzá fedett gépkocsibeálló 19,39 m² és terasz 16,36m²
• Telekterület 384,81 m2
2. Udvar felőli épület jellemzői:
• Összterület: 125,32 m²
• Nettó hasznos lakótér: 80,50 m²
• Szintén tartozik hozzá fedett beálló 18,11 m²és terasz 15,99 m²
• Telekterület 269 m2
3. Telek hátsó felében egy önálló új melléképület is kivitelezésre kerül. Ezt saját részre építi a kivitelező.
Exrták:
3 rétegű, hőszigetelt nyílászárók redőnyökkel és
szúnyoghálókkal
1 db invertres hűtő-fűtő klíma a nappaliban
riasztó és elektromos kapu előkészítés
A házak egy 1119 m²-es osztott telken épülnek, mindegyik ingatlanhoz saját, telekrész tartozik.
Az ingatlanok teljesen különállóak, nem ikerházaz – tehát nincs közös fal, így a csend és a privát szféra garantált!
Az építkezés folyamatban van, a befejezés várható ideje 2026 II. negyedév. Az építkezés bizonyos szakaszáig lehetőség van burkolatok, szaniterek, beltéri ajtók egyedi kiválasztására – így új otthona valóban az Ön igényeihez igazodhat.
Főbb műszaki jellemzők:
• 30 cm-es Porotherm tégla főfalazat
• 15 cm homlokzati hőszigetelés
• 30 cm födémszigetelés
• Korszerű, energiatakarékos kivitelezés

A környék nyugodt, családi házas övezet, mégis minden fontos szolgáltatás könnyen elérhető. Kiváló választás mindazoknak, akik modern, földszintes otthonra vágynak saját kerttel és valódi nyugalommal. Érdeklődjön még ma, és kísérje végig új otthona születését – a tervezéstől a kulcsátadásig!
Irodánk díjmentes hitelügyintézéssel, CSOK Plusz tanácsadással és banki partneri háttérrel segíti Önt a vásárlás minden lépésében!

Családi ház részletei

Ár: 95 900 000 Ft
Méret: 80 négyzetméter
Azonosító: 11585916
Irodai azonosító: 346610
Telek: 435 négyzetméter
Ingatlan állapota: Kitűnő
Jelleg: családi ház
Építőanyag: Kérdezzen rá a hirdetőtől »
Kor: Új építésű
Egész szobák: 3

Egyéb jellemzők

  • Garázs
  • Terasz

Így keressen családi házat négy egyszerű lépésben. Csupán 2 perc, kötelezettségek nélkül!

Szűkítse a családi házak
listáját
Válassza ki a megfelelő
családi házat
Írjon a hirdetőnek
Várjon a visszahívásra