Eladó családi ház Gyál 249 900 000 Ft

Leírás

Eladó egy két szintes, luxus kivitelű családi ház Gyálon!

Gyál egyik kedvelt részén kínálunk megvételre egy modern, tágas otthont, amely ideális választás nagycsaládosoknak és mindazoknak, akik a fényes, nagy tereket részesítik előnyben.

Telek mérete: 750 m²
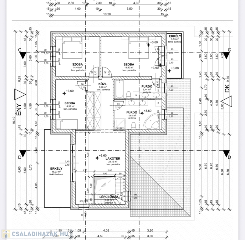
Hasznos alapterület: nettó 264 m² (bruttó 285,79 m²)
Szintek száma: 2
Szobák száma: 4 hálószoba + nappali az alsó és felső szinten is
Fürdőszobák: 4 fürdő + külön WC
Terasz: 21,2 m²
Erkélyek: 16,23 m² és 7,53 m²

Helyiségek elosztása:
• Konyha: 12,96 m²
• Nappali: 58,95 m² + 23,15 m²
• Háztartási helyiség: 5,04 m²
• Előszoba: 8,7 m²
• Gardrób: 6,4 m²
• Szobák: 14,58 m²; 14,4 m²; 19,8 m²; 14,4 m²
• Közlekedő: 8,48 m²
• Fürdőszobák: 11,61 m²; 7,68 m²; 6,75 m²; 5,44 m²

Műszaki tartalom:
• 30-as Leier falazat 15cm grafitos szigeteléssel, lábazat 10cm XPS szigeteléssel
• Belső falak 10 cm Leier téglából
• 20 cm kőzetgyapot födémszigetelés
• Hőszivattyús rendszer + padlófűtés
• 3 rétegű, energiatakarékos nyílászárók
• Klíma nappaliban illetve minden szobában
• Elektromos kapu, napelem-előkészítés
• Beépített kamerarendszer és riasztó



Finanszírozás és átadás:
• Már 30% önerővel lefoglalható
• Várható átadás: 2025. december 31.
• Teljes körű segítség: független hitelszakértő és megbízható ügyvédi háttér

Kivitelező:

A házat egy megbízható, tapasztalt kivitelező építi, aki számos referenciamunkával rendelkezik a környéken. A korábbi projektek személyesen is megtekinthetők, így az érdeklődők saját szemükkel győződhetnek meg a minőségről.

Elérhető vagyok a nap bármely szakaszában, akár hétvégén is !

Családi ház részletei

Ár: 249 900 000 Ft
Méret: 264 négyzetméter
Azonosító: 11568337
Irodai azonosító: 387749
Cím: Vecsési utca
Telek: 750 négyzetméter
Ingatlan állapota: Kitűnő
Jelleg: családi ház
Építőanyag: Tégla
Fűtés jellege: Geotermikus
Fűtés módja: Hőszivattyú
Komfort fokozat: Összkomfort
Kor: Új építésű
Szintek száma: 1 szint
Egész szobák: 6

Egyéb jellemzők

  • Csatorna
  • Garázs
  • Pince
  • Terasz

Térkép


Így keressen családi házat négy egyszerű lépésben. Csupán 2 perc, kötelezettségek nélkül!

Szűkítse a családi házak
listáját
Válassza ki a megfelelő
családi házat
Írjon a hirdetőnek
Várjon a visszahívásra