Eladó családi ház Gyál 159 900 000 Ft

Leírás

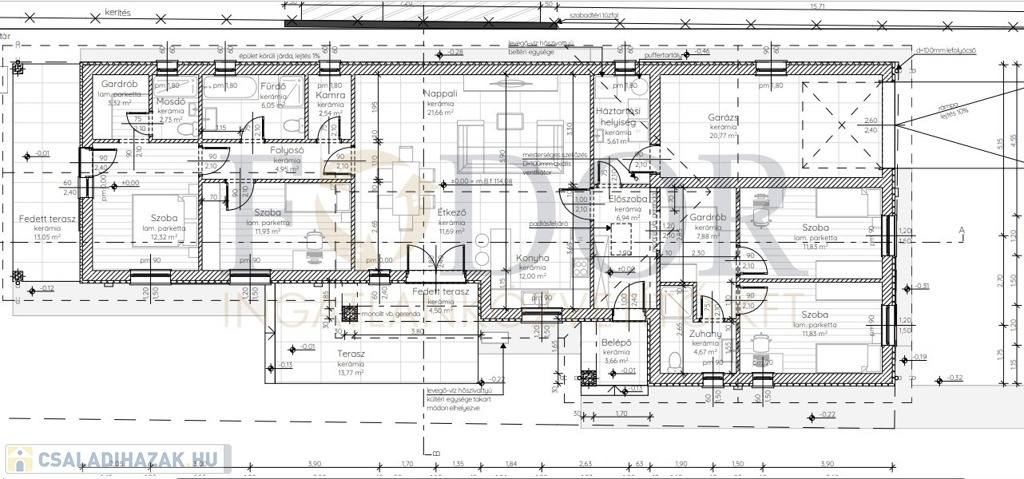
Új építésű, prémium családi házak Gyálon – nappali + 4 hálószoba, magas műszaki tartalommal!

Gyálon, két különböző helyszínen kínálunk eladásra modern, energiatakarékos, nappali + 4 hálószobás önálló családi házakat!
Az építkezés 2025 februárjában indul, így már az alapoktól nyomon követheti új otthona megvalósulását.
A belső elrendezés igény szerint módosítható, hogy tökéletesen az Ön elképzeléseihez igazodjon.

Főbb adatok

700 m² telek

158,72 m² összterület (138 m² lakótér + 20,77 m² garázs)

Nappali + 4 hálószoba

3 fürdőszoba (kádas és zuhanyzós)

45 m²-es nappali, dupla terasz (összesen 26 m²)

Szülői háló saját fürdővel, gardróbbal és teraszkapcsolattal

Műszaki tartalom / extrák

Viablokk tégla falazat, A / A+ energetikai besorolás

Immergas hőszivattyú, helyiségenként vezérelhető padlófűtés + mennyezeti hűtés-fűtés

Elektromos redőnyök, szúnyoghálók, prémium nyílászárók

8 cm homlokzati, 25 cm mennyezeti szigetelés

Elektromos autótöltés és kapu előkészítés

Riasztó- és kamerarendszer

Garázs elektromos szekcionált ajtóval

Klíma- és vízlágyító előkészítés

Kivitelezés

Megbízható, tőkeerős vállalkozó által épített házak, kizárólag tapasztalt szakemberekkel.
Teljes tervdokumentáció és referenciaház megtekinthető irodánkban!

Várható átadás: 2026. II. negyedév
Helyszín: Gyál – két különböző, választható lokáció
Irodánkban kényelmes környezetben ismerheti meg a terveket, és ingyenes hitelügyintézést, tanácsadást, CSOK Plusz ügyintézést biztosítunk.

Prémium minőség – modern technológia – személyre szabható otthon!
Ne maradjon le, válassza ki most új otthona helyszínét!

Az alaprajz és a leírás tájékoztató jellegű.



Családi ház részletei

Ár: 159 900 000 Ft
Méret: 158 négyzetméter
Azonosító: 11562013
Irodai azonosító: 329989
Telek: 700 négyzetméter
Ingatlan állapota: Kitűnő
Jelleg: családi ház
Építőanyag: YTONG
Komfort fokozat: Dupla komfort
Kor: Új építésű
Egész szobák: 5

Egyéb jellemzők

  • Garázs
  • Terasz

Így keressen családi házat négy egyszerű lépésben. Csupán 2 perc, kötelezettségek nélkül!

Szűkítse a családi házak
listáját
Válassza ki a megfelelő
családi házat
Írjon a hirdetőnek
Várjon a visszahívásra