Eladó családi ház Gyál 149 900 000 Ft

Leírás

ÚJ ÉPÍTÉSŰ PRÉMIUM CSALÁDI HÁZ GYÁL KÖZPONTJÁBAN!
Ha modern, minőségi otthont keresel, ami energiatakarékos, kényelmes és minden szempontból jövőálló, akkor megtaláltad!
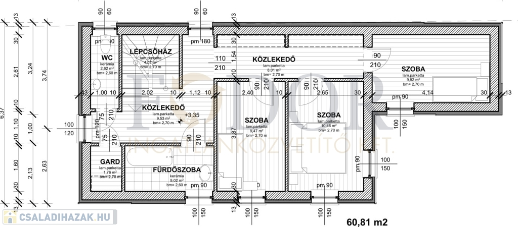
Eladó egy nettó 161 m²-es, letisztult, oldalhatárra épített, új építésű 2 szintes családi ház egy 449 m²-es saját telken, Gyál egyik legjobb, központi elhelyezkedésű részén.
A ház prémium műszaki tartalommal, tágas terekkel, nagy kerttel és igazi családi otthonra tervezett elrendezéssel készül.
Amerikai konyhás nappali + 4 külön nyíló szoba, dupla komfort, önálló garázs 27, 44 m2, terasz 13, 82 m2, modern gépészet – minden adott egy élhető, elegáns és hosszú távon fenntartható otthonhoz.
Várható átadás: 2026. I. negyedév
Főbb műszaki paraméterek
• Porotherm 30-as falazat, 15 cm hőszigeteléssel
• Lábazaton 12 cm XPS szigetelés
• 10 cm-es tégla válaszfalak
• 3 rétegű nyílászárók (kívül antracit, belül fehér)
• Elektromos redőnyök és szúnyoghálók
• Hőszivattyús padlófűtés + fürdőben elektromos törölközőszárító radiátor
• Nappaliban 1 db klíma, további szobákban klíma előkészítés
• Hő- és hangszigetelt, elektromos szekcionált garázskapu + 2 db elektromos kapu
• Viakolorral burkolt autóbeálló
• Riasztó- és kamerarendszer előkészítés
• Külső homlokzati LED világítás
• 3×25 A villamos teljesítmény
• Napelem előkészítéssel
• Teljes műszaki dokumentáció irodánkban elérhető
Jelenlegi készültségi szint (2025.11.14): Emeleti falazás elkészült.
Az ár kulcsrakész állapotra értendő – a burkolatok, beltéri ajtók és szaniterek választhatók.
Környék és elhelyezkedés
A lokáció kiváló: iskola, óvoda, boltok, szolgáltatások és tömegközlekedés pár perc sétára elérhetők.
A telek osztatlan közös, ügyvédi megosztással.
INGYENES HITEL- ÉS CSOK ÜGYINTÉZÉS!
Irodánk díjmentes hitelügyintézéssel, személyre szabott pénzügyi tanácsadással és az új CSOK program teljes körű ügyintézésével áll rendelkezésre.

Családi ház részletei

Ár: 149 900 000 Ft
Méret: 161 négyzetméter
Azonosító: 11579913
Irodai azonosító: 345335
Telek: 449 négyzetméter
Ingatlan állapota: Kitűnő
Jelleg: családi ház
Építőanyag: Tégla
Komfort fokozat: Összkomfort
Kor: Új építésű
Egész szobák: 5

Egyéb jellemzők

  • Garázs
  • Terasz

Így keressen családi házat négy egyszerű lépésben. Csupán 2 perc, kötelezettségek nélkül!

Szűkítse a családi házak
listáját
Válassza ki a megfelelő
családi házat
Írjon a hirdetőnek
Várjon a visszahívásra