Eladó családi ház Gyál 140 000 000 Ft

Leírás

Gyálon az Ady Iskola közelében, a piac térnél eladó 562 m2-es telken
160 m2-es családi ház, 70 m2 pincével, 60 m2-es melléképülettel.
Az ingatlan lakótere jelenleg fsz 80m2, emelet 80m2.
A tetőtér beépítésével (60 m2)tovább bővíthető.
A lépcső a tetőtérig kiépített.
Pince 70 m2, külső lejáratú, gépkocsi beálló és tároló található benne.
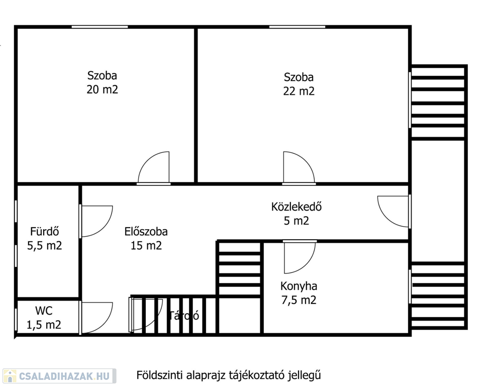
Fsz: 80 m2 fedett belépőről a közlekedőbe vezet, 2 szoba, előtér-lépcsőház,a lépcső alatt tároló,konyha, fürdő,külön WC.
Emelet: 80 m2 előtér, 3 szoba, fürdő, külön WC,lépcsőház.
2 szobához erkély is tartozik 5 m2.
Tetőtere kb. 60 m2 beépíthető.
Az ingatlan tégla falazatú, beton födémes, cserép héjalással, műanyag nyílászáróit 2022-ben építették be.
Az udvarban tégla falazatú 60 m2 szerelőaknás műhely-garázs, héjazata cserép.
Kézmosó-WC-öltöző helyiséggel rendelkezik.
Bejárata előtt a tető bővítve lett 20 m2-es fedett teraszhoz.
Alkalmas lehet önálló lakás átalakítására is.
250 m-en belül piactér, Iskola, DM,PEPCO, SPAR,üzletsor, buszmegálló.
Az ingatlan tehermentes, rövid távon birtokba vehető.
(További képekért és információkért kérem hívjon!)

Családi ház részletei

Ár: 140 000 000 Ft
Méret: 160 négyzetméter
Azonosító: 11392951
Irodai azonosító: 590560
Erkély mérete: 5.00 négyzetméter
Telek: 562 négyzetméter
Ingatlan állapota: Átlagos
Jelleg: családi ház
Építőanyag: Tégla
Fűtés jellege: Cirkó
Egész szobák: 5

Egyéb jellemzők

  • Beépíthető tetőtér
  • Csatorna
  • Garázs
  • Melléképület
  • Pince
  • Terasz

Így keressen családi házat négy egyszerű lépésben. Csupán 2 perc, kötelezettségek nélkül!

Szűkítse a családi házak
listáját
Válassza ki a megfelelő
családi házat
Írjon a hirdetőnek
Várjon a visszahívásra