Eladó családi ház Gyál 129 900 000 Ft

Leírás

AZONNAL KÖLTÖZHETŐ!

Eladó Gyál városközponthoz közeli csendes utcában, egy 130 nm nettó lakóterű nappali + 3 hálószobás családi ház, pince szinten + 80 nm-es garázs + tároló helyiségekkel, 541 nm-es telekkel.


*Főbb jellemzők:*

- pince szint: szerelőaknás garázs, több helyiségből álló tároló, WC
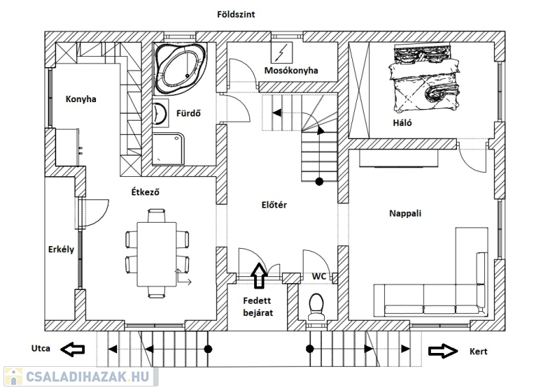
- földszint: hatalmas előszoba, elszeperált konyha – étkező, nappali, szülői háló, WC, mosókonyha, és egy nagyméretű fürdőszoba káddal és zuhanyzóval
- emelet: előtér, 2 nagyméretű szoba, dolgozó sarok, WC

*Műszaki paraméterek:*

-A ház 1990-ben épült 30-as téglából, rajta 10 cm dryvit szigeteléssel. Ablakok műanyagok, redőnnyel és szúnyoghálóval felszerelve. Tetőszerkezet fából készült cserép fedéssel.

-Az épület fűtéséről kondenzációs gáz cirkó gondoskodik radiátoros hőleadókkal. A nappaliban és a fenti hálószobában 1-1 klíma biztosítja a ház hűtését. A melegvizet egy vadonat új 120 literes villanybojler adja. Az ingatlan fűtésköltsége alacsony, köszönhetően a jó szigetelésnek és a jó minőségű ablakoknak.
-A ház riasztóval védett.

-Villamosság: szuterén szinten 380 V ipari áram külön mérőórával. Lakó szinten 1x32 A.

A telek 541 nm-es, ami minimum 4 autónak biztosít kényelmes parkolást a térkövezett udvarban. A kert többi részén medencének kialakított burkolt terület, egy szaletli és füves rész lett kialakítva.


*Ideális választás:* - Nagy családoknak, akiknek fontos a tágas tér, azoknak a családoknak akik egy helyen oldanák meg a lakhatásukat és vállalkozásukat. Kitűnő választás cégeknek irodának, illetve raktározási céllal.


Összességében az ingatlan szerkezete kitűnő állapotban van, egy tisztasági festés után, illetve igény szerinti kisebb modernizálást követően azonnal költözhető.

-Köszönöm, hogy időt szánt hirdetésemre, sikeres ingatlanvásárlást kívánok!
További kérdéseivel keressen bizalommal a hét minden napján!

Családi ház részletei

Ár: 129 900 000 Ft
Méret: 210 négyzetméter
Azonosító: 11542887
Cím: Gyál Városközpont
Telek: 541 négyzetméter
Ingatlan állapota:
Jelleg: családi ház
Építőanyag: Kérdezzen rá a hirdetőtől »
Szintek száma: 3 szint
Egész szobák: 4

Egyéb jellemzők

  • Csatorna
  • Garázs
  • Kábel TV
  • Melléképület
  • Parketta
  • Pince
  • Terasz

Így keressen családi házat négy egyszerű lépésben. Csupán 2 perc, kötelezettségek nélkül!

Szűkítse a családi házak
listáját
Válassza ki a megfelelő
családi házat
Írjon a hirdetőnek
Várjon a visszahívásra