Eladó családi ház Gyál 130 000 000 Ft

Leírás

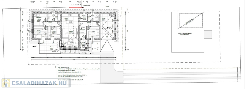
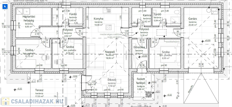
Egyszintes családi ház rendkívül magas műszaki tartalommal! Gyál központjához közel, csendes, új építésű, 123 m2-es, nappali + 4 szobás, 2 fürdőszobás, dél-nyugati tájolású családi ház 640 m2-es telekrésszel 2026 nyári eleji átadással kulcsrakészen eladó. Csúcstechnológiájú Daikin hőszivattyú biztosítja a padlófűtést, a mennyezet hűtést-fűtést és a meleg vizet. A nappaliban egy inverteres hűtő-fűtő klíma is kialakításra kerül. Elektromos alumínium redőnyök szúnyoghálóval. Riasztó. Elektromos kapu, garázsajtó. H tarifa. 1x32A és 3x20A. Referenciaház megtekinthető. A fotókon egy rövidesen átadásra kerülő ingatlan látható. Az ingatlant csak irodánk kínálatában találja.

Összközműves aszfaltozott, széles utca. Közelben iskola, óvoda, szolgáltató egységek, üzletek. Jó tömegközlekedés.

Vasbeton sávalap, 30 cm-es Porotherm tégla főfalak 12 cm-es dryvit hőszigeteléssel. Műanyag homlokzati nyílászárók 3 rétegű üveggel. Fa födém 30 cm. kőzetgyapot hőszigeteléssel. Bramac cserép héjalás. Festés, burkolás, szaniterek, belső ajtók választhatók. A hideg, meleg burkolatokat 6000 Ft./m2 árig, a belső ajtókat 75000 Ft./db. árig tartalmazza a vételár. Mosdó csaptelep: 25 ezer Ft., mosdó: 25. ezer Ft., Kádtöltő csaptelep: 40 ezer Ft., Fürdőkád: 100 ezer Ft., Zuhany csaptelep szett: 40 ezer Ft. Zuhanykabin épített zuhanyhoz: 200 ezer Ft., WC csésze: 25 ezer Ft. (beépített tartályos wc-k kerülnek kialakításra)

Magyarország piacvezető hitelközvetítője által egyedi kamatkedvezményekkel és bankfüggetlen, díjmentes hitelügyintézéssel is segítjük vásárlását. Hívjon bizalommal!

Családi ház részletei

Ár: 130 000 000 Ft
Méret: 130 négyzetméter
Azonosító: 11563737
Telek: 640 négyzetméter
Ingatlan állapota: Kitűnő
Jelleg: családi ház
Építőanyag: Kérdezzen rá a hirdetőtől »
Szintek száma: 1 szint
Egész szobák: 5

Egyéb jellemzők

  • Csatorna
  • Garázs
  • Kábel TV
  • Melléképület
  • Parketta
  • Pince
  • Terasz

Így keressen családi házat négy egyszerű lépésben. Csupán 2 perc, kötelezettségek nélkül!

Szűkítse a családi házak
listáját
Válassza ki a megfelelő
családi házat
Írjon a hirdetőnek
Várjon a visszahívásra