Eladó családi ház Gyál 126 990 000 Ft

Leírás

Új építésű ,energiatakarékos 4 szobás ikerház eladó Gyál csendes zöldövezeti részén!

Gyál egyik kedvelt ,nyugodt utcájában kínálunk eladásra egy új építésű , nettó 137 m2-es modern ,energiatakarékos ikerházat, amely kétszintes kialakítású saját garázzsal és kertkapcsolattal rendelkezik.
A ház ideális választás azoknak a családoknak ,akik nyugodt ,biztonságos környezetben szeretnének élni, modern technológiával felszerelt , értékálló otthonban.
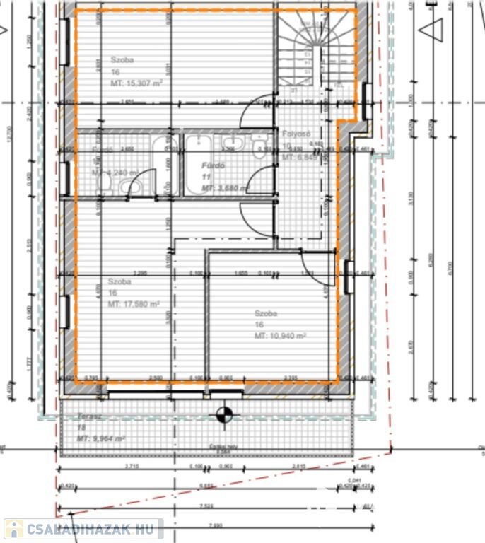
A házban 4 tágas szoba, egy világos nappali, valamint 3 elegáns fürdőszoba biztosítja a család minden tagjának kényelmét. Az amerikai stílusú konyha prémium anyagok felhasználásával készül, így ideális helyszíne lehet a közös családi étkezéseknek.

A házhoz tartozik egy hangulatos terasz és saját kertrész, amely tökéletes helyszíne lehet a pihenésnek vagy baráti összejöveteleknek. Továbbá az elektromos garázskapuval ellátott garázs lakótérkapcsolattal, valamint az optikai internet kábel biztosítja a gyors és megbízható kapcsolatot.
Főbb adatok
Lakótér: 137 m2
Telek : 574 m2 , a lakásokhoz tartozó szeparált kert 201 m2
Garázs: saját, közvetlen lakáskapcsolattal
Energetikai besorolás: A+
Kivitelezés: prémium minőség, kulcsrakész átadás
Várható átadás: 2025. december
Műszaki tartalom és felszereltség:
- Monolit vasbeton lemezalap, vízzáró rendszerrel
- Falazat hő és hangszigetelt 30 cm Leier külső falazat, Silka hanggátló elválasztó fallal
- Homlokzati hőszigetelés: 12 cm dryvit rendszer
- Földrengésbiztos födémrendszer: 25 cm vastag monolit vasbeton födém, az emelet feletti zárófödém is monolit vasbeton szerkezettel készül.
- Tetőtér szigetelése 20 cm üveggyapot a födémen
- Tetőszerkezet: Bramac betoncserép fedéssel, bádogozás korrózió mentes színezett alumínium lemez,
- Nyílászárók: 3 rétegű üvegezésű, kívül aranytölgy-belül fehér színű műanyag ablakok
- belső ajtók CPL fóliás felülettel, utólagosan szerelhető tokkal, katalógusból választható színben és ajtólappal, belső párkányok műanyag, külső párkányok alumíniumból készülnek.
- Bejárati ajtó : MABISZ minősítésű biztonsági ajtó
- Fűtés-hűtés: korszerű monoblokkos hőszivattyús rendszer, padlófűtéssel és fal-coil egységekkel
- Árnyékolástechnikai előkészítés: vakolható redőnyszekrények, hőszigetelt alumínium redőny, színe megegyezik az ablakok külső színével, szúnyoghálóval
- Válaszfalak: 10 cm Porotherm/ Leier ,Silka hanggátló tégla elválasztó falak
- Választható burkolatok , belső ajtók, szaniterek a műszaki tájékoztató szerint
- A lakásban a festés színe fehér.
- Az épület bejáratánál kaputelefon kerül felszerelésre, amely a beszélgetésen kívül az elektromos ajtózár működtetést is biztosítja a lakásból.
- A használati melegvíz ellátása a levegő-víz hőszivattúval fűtött közvetett tárolóval..
- A hőszivattyú a lakások fűtéséről gazdaságosan gondoskodik a padló fűtésnek köszönhetően. A fürdőkben elektromos törölközőszárító radiátor kerül elhelyezésre.
- A fűtéshez/ hűtéshez kiegészítő oldalfali fan cool is kapcsolódik a hálókban és a nappaliban.
Igény esetén felár ellenében helyiségenkénti vezérlés és okos otthon rendszer alakítható ki.
- A riasztó előkészítése minden lakáshoz biztosított.
- Lakásonként önálló villanyóra
- LED világítás , redőnymotor előkészítés
- Elektromos garázskapu,
-Optikai internetkábel előkészítés
- Saját parkosított kert használati megosztással,
- 6 cm vastag térkő burkolat, kocsibeállóval

Ez az ingatlan ideális választás mindazoknak, akik csendes környezetben, mégis a település központjához közel keresik új otthonukat. Ne hagyja ki ezt a kivételes lehetőséget, tekintse meg személyesen is!

További információkért és megtekintési időpont egyeztetésért keressen bizalommal!
(További képekért és információkért kérem hívjon!)

Családi ház részletei

Ár: 126 990 000 Ft
Méret: 137 négyzetméter
Azonosító: 11572552
Irodai azonosító: 817483
Telek: 574 négyzetméter
Ingatlan állapota: Kitűnő
Jelleg: ikerház
Építőanyag: Tégla
Fűtés jellege: Hőszivattyú
Egész szobák: 5
Nappalik: 1

Egyéb jellemzők

  • Beépíthető tetőtér
  • Csatorna
  • Garázs
  • Melléképület
  • Pince
  • Terasz

Így keressen családi házat négy egyszerű lépésben. Csupán 2 perc, kötelezettségek nélkül!

Szűkítse a családi házak
listáját
Válassza ki a megfelelő
családi házat
Írjon a hirdetőnek
Várjon a visszahívásra