Eladó családi ház Gyál 119 500 000 Ft

Leírás

Kizárólag a Fodor Ingatlaniroda kínálatában!
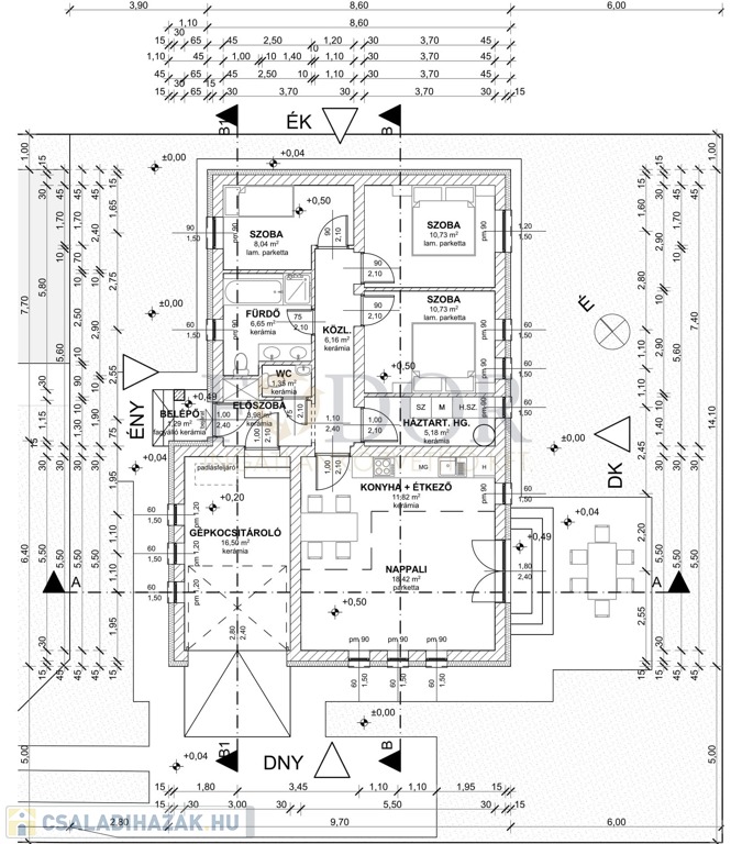
Eladó új építésű, prémium minőségű családi ház Gyál legkeresettebb részén – egy modern, földszintes, hőszivattyús, magas műszaki tartalommal rendelkező ingatlan. Az ingatlan 99,37 m2-es alapterülettel, amerikai konyhás nappalival, +3 hálószobával, fürdőszobával + külön wc-vel és garázzsal minden igényt kielégítő extra szolgáltatásokkal várja új tulajdonosát.
A ház hasznos lakóterülete 82,87 m2, a tágas amerikai konyhás nappali mellett 3 külön bejáratú hálószoba és egy fürdőszoba biztosítja a kényelmes, családbarát elrendezést. A ház a telek hátsó részén helyezkedik el, egy 3,35 méter széles, 24,73 méter hosszú nyélen, így átmenő forgalomtól mentes, teljesen privát területet biztosít a lakóknak. Az ingatlanhoz tartozó telek összesen 455 m2. Kertvárosi környezet, nyugodt, ahol a környéken kedves szomszédok és kiváló infrastruktúra várja a lakókat. Az ingatlanhoz 2-3 autó számára parkolóhely biztosított a telek belső területén, elektromos kapu és kiállás segíti a kényelmes bejárást. Az ingatlanok osztatlan közös tulajdonban kerülnek értékesítésre hivatalos ügyvéd által ellen jegyezve, telekhasználati megállapodással amik jogutódokra kiterjednek.
Műszaki paraméterek:
Az épület 30 cm-es Porotherm téglából, 15 cm-es Dryvit szigeteléssel készült, így biztosítva a kiváló hőszigetelést.
A ház fűtése Levegő-víz hőszivattyúval történik, mely padlófűtéses rendszert biztosít az egész házban. A fürdőszobában kiegészítő törölközőszárítós radiátor is található.
A lakás hűtése Amerikai-konyhás nappaliban 1 db inverteres hűtő-fűtő klímával megoldott.
A külső nyílászárók 6 légkamrás, 3 rétegű, fehér színű műanyag ablakok, mindegyik redőnnyel és szúnyoghálóval felszerelve, az elektromos motorizálású alumínium redőny pedig a teraszajtókon található.
A kivitelező megbízható és tőkeerős, hosszú évek óta dolgozik az ingatlanpiacon, minőségi anyagokkal és szakképzett munkásokkal, így biztosítva a legmagasabb szintű minőséget és precizitást. Az épület teljes körű riasztórendszerrel van ellátva, a legmodernebb biztonsági megoldásokkal.
A ház kulcsrakész állapotban eladó, a burkolatok, szaniterek és beltéri ajtók a vevő igényei szerint választhatóak.
Bővebb információkért és személyes megtekintésért keressen bizalommal!
Várható átadás: 2026. I. negyedév.
Műszaki leírás:
30 cm-es főfal + 15 cm homlokzati szigetelés
Vasbeton sávalap
Fehér, műanyag tokos, 3 rétegű, 6 légkamrás thermo üvegezésű külső nyílászárók
Műanyag redőnyök és helységenként 1 db szúnyogháló
Levegő-víz hőszivattyú
Antracit színű betoncserép
Főbb jellemzők:
Tágas amerikai konyhás nappali
3 külön hálószoba
1 fürdőszoba / 2 WC
455 m2 saját telekrész
kertkapcsolatos nappali
Elektromos kapu előkészítés és hőszigetelt szekcionált garázsajtó+motor az árban
Teljes riasztórendszer kezelőegységgel
Kiváló infrastruktúra: Minden fontos szolgáltatás és közlekedési lehetőség pár perces sétára elérhető!
IRODÁNK INGYENES HITEL ÜGYINTÉZÉSSEL, TANÁCSADÁSSAL, SZÁMOS BANK AJÁNLATÁVAL ÉS AZ ÚJ CSOK FOLYÓSÍTÁSÁVAL VÁRJA ÜGYFELEIT

Családi ház részletei

Ár: 119 500 000 Ft
Méret: 99 négyzetméter
Azonosító: 11563020
Irodai azonosító: 336964
Telek: 455 négyzetméter
Ingatlan állapota: Kitűnő
Jelleg: családi ház
Építőanyag: Tégla
Komfort fokozat: Összkomfort
Kor: Új építésű
Egész szobák: 4

Egyéb jellemzők

  • Garázs
  • Terasz

Így keressen családi házat négy egyszerű lépésben. Csupán 2 perc, kötelezettségek nélkül!

Szűkítse a családi házak
listáját
Válassza ki a megfelelő
családi házat
Írjon a hirdetőnek
Várjon a visszahívásra